Preprint
Article

This version is not peer-reviewed.

Evaluation of Horizontal Shear Performance of Composite Girders using Separable Shear Connectors

A peer-reviewed article of this preprint also exists.

Submitted:

11 October 2024

Posted:

11 October 2024

You are already at the latest version

Abstract
The increased volume of heavy vehicles and the use of de-icing agents on concrete bridge decks have accelerated their deterioration. Concurrently, the demand for rapid replacement of these structures and research interest in prefabricated bridges have increased. Traditionally, horizon-tal shear connections between girders and precast decks have utilized rebar stirrup shear con-nectors. Although effective for initial construction, this method complicates the dismantling of aged decks because the rebar connectors are fully embedded within the girders. The removal of concrete decks requires cutting, whereas composite decks atop girders must be demolished us-ing breakers. This process generates dust, noise, and vibrations, raising environmental concerns and causing delays in urban demolition projects due to public complaints. This study introduces an embedded separable shear connector that minimizes deck breaking and facilitates easy rein-stallation by allowing simpler separation of the deck from the girder. Horizontal shear and flexural tests on composite girders and comparisons with various design codes were conducted to evaluate this innovative connector. The results show that the proposed connector provides superior horizontal shear strength relative to traditional methods and satisfies modern ductility design criteria. Simulations confirmed that the decks could be easily separated and reassembled, maintaining shear strength under initial construction conditions.
Keywords: 
;  ;  ;  ;  

1. Introduction

The increased traffic volume of heavy vehicles, combined with the use of de-icing agents on bridge structures during winters, significantly accelerates the deterioration and aging of concrete decks. Considering the maintenance and life cycle costs (LCC) of bridges, adopting modular construction techniques to replace these aged decks efficiently is imperative. Recently, research interest in prefabricated bridges has surged. Most studies on precast concrete decks have focused on addressing usability issues, such as cracking and leakage at longitudinal joints (e.g., prestressing or loop joints) between decks. However, research on applying prefabricated part-assembly concepts to horizontal shear connections between concrete girders and decks is limited.
In composite bridges featuring concrete decks, shear connectors contribute to resisting the horizontal shear caused by bending moments, which is essential for the composite action between the girder and the deck. Generally, girder bridges possess U-shaped shear reinforcements as shear connectors. Despite extensive research on their performance-enhancing effects on damaged and aged decks, the rapid aging and damage of these structures necessitate replacing the deck before the girders. In particular, if complications arise during deck replacement, the entire bridge must be demolished and reconstructed, including girders with a sufficient remaining lifespan. Addressing the recurring replacement of damaged and aged decks throughout the service life of girders can significantly extend the overall lifespan of bridges and enhance their economic efficiency.
The replacement of an aged cast-in-place concrete deck with a precast deck is a typical approach in bridge repair or renovation (Figure 1). The first step in the removal process involves cutting and removing the deck between girders using wheel saws or diamond wire saws. Subsequently, the composite deck atop the girders, which is bonded by shear connectors, is dismantled using breakers or waterjet equipment. The demolition process is more challenging for precast decks integrated through high-strength nonshrink mortar via shear pockets than that for cast-in-place decks. In addition, the use of breakers to demolish concrete decks generates considerable noise and fine dust, exacerbating the environmental damage in urban settings. The extended duration required for construction work prolongs the period of traffic control until reinstallation is complete, causing significant inconvenience and economic losses to the public. In this process, shear connectors are frequently bent by the impact of breakers, complicating their reuse. Consequently, all rebar shear connectors must be cut and new ones must be installed atop the girders using chemical anchors. Damage to the shear connectors can be minimized by using water-jet equipment for the deck demolition. However, this method is time-consuming, increases costs, and leads to environmental pollution owing to the substantial volume of concrete sludge produced by extensive water use. Therefore, separable shear connectors that facilitate the easy separation and replacement of the deck from the girder must be developed to enhance the reconstructability of aged decks.
In this study, a new type of embedded demountable shear connector that can easily separate and replace aged concrete slabs was developed and experimentally verified. The remainder of the paper is organized as follows. Section 2 summarizes the horizontal shear strength design standards of representative countries and analyzes the study cases of existing researchers on horizontal shear tests and horizontal shear strength evaluation related to precast concrete slab composite girders. In Section 3, horizontal shear tests were performed on the developed embedded demountable shear connector, and the test results are compared with those from the existing rebar shear connector method. The findings confirmed that the horizontal shear strength of the developed shear connector satisfied the relevant design standards. Finally, in Section 4, prestressed concrete (PRC) composite girders using the developed shear connector were manufactured, and bending tests were performed. Consequently, the experiments confirmed that compared to the existing rebar shear connector method, the developed shear connector had equivalent or improved performance in both flexural strength and horizontal shear strength.

2. Analysis of Design Standards and Literature

2.1. Design Standards for Horizontal Shear Strength of Composite Concrete Members

In composite concrete bridges comprising girders and precast decks, bending caused by overburden loads generates horizontal shear forces at the interface between two components cast at different times (Figure 2). Consequently, the design of these composite members aims to ensure adequate resistance to the relative displacements due to bending. Design standards across various countries offer equations for the horizontal shear strength that depend on the roughness of the interface between concrete members cast at different intervals (Table 1). Shear connectors, typically specified as U-shaped stirrup rebars, are embedded within concrete girders to facilitate this interaction.

2.2. Literature Survey

Numerous researchers, including Loov and Patnaik [5], have evaluated the horizontal shear strength of composite concrete beams and decks. Based on the results of composite beam tests, Loov and Patnaik [5] developed horizontal shear strength equations for both normal and lightweight concretes. Based on beam tests with high-strength concrete and other specimens, Kahn and Mitchell [6] stated that the existing design codes underestimated the shear strength of high-strength concrete. They formulated modified equations better suited for one-time casting, surface roughness, and construction joint conditions.
Menkulasi [7] conducted horizontal shear tests on the joints of precast members by varying the type of filler, haunch height, and shear connector shape. According to the experimental results, the study proposed design equations tailored for rough joint surfaces. Suh et al. [8] designed and tested composite beams to devise a rational method for evaluating and designing the horizontal shear strength of composite concrete members. Their tests considered the type of member, area ratio of members to cast-in-place concrete, and spacing of the shear rebar. They reevaluated the experimental results obtained from prior research, assessed the accuracy of existing design standards based on the horizontal shear-strength test results for various member types, and introduced improved horizontal shear-strength equations.
Kim and Lee [9] applied the stress-field theory in experiments designed to induce horizontal shear failure in composite beams to delineate the ultimate limit state of beams newly cast over existing reinforced concrete girders. They proposed a method to calculate the shear strength considering the tensile enhancement effect of concrete and variations in the maximum compressive strength under axial stress conditions.
In bridges using precast deck composites with girders, a bedding layer is invariably formed. However, the equations proposed by earlier researchers have failed to consider the impact of this bedding layer. For example, Chung et al. [10] assessed the bond strength at the precast-deck–girder interface by conducting direct shear tests. They evaluated the bond strength at the interface of the composite section by considering the surface conditions, shear connector shapes, and reinforcement volume. Their analysis focused on the bond strength variations influenced by surface conditions and bedding layer thickness. Notably, they compared studs (which are inseparable) with traditional rebar shear stirrups.
Several researchers [11,12,13] have investigated separable shear connectors using bolted connections for composite structures comprising steel girders and concrete decks. However, studies on separable shear connectors for girders and precast concrete decks remain limited.

3. Evaluation of Horizontal Shear Performance

3.1. Structural Characteristics of Embedded Separable Shear Connectors

The proposed embedded separable shear connector comprised a nut anchor embedded within the girder, a hollow U-shaped component, and a stud bolt designed to handle actual shear forces (Figure 3). Initially, the nut anchor was pre-embedded in the girder, the hollow U-shaped component was threaded, and the stud bolt was fastened. This action coupled the U-shaped component and embedded nut via bolt tension. Subsequently, after placing the deck, a nonshrink mortar was poured to fully integrate the deck with the U-shaped component.
The deck dismantling process involved drilling the deck surface to a specified depth, removing only the stud bolts, and reversing the construction order. This procedure disengages the connection between the deck and the girder, facilitating straightforward dismantling. Thus, the stud bolt bears the actual shear strength, while the U-shaped component enables the dismantling process. When the stud bolt is tightened, a compressive force is introduced on the U-shaped component, causing the tapered surfaces of the nut anchor and the U-shaped component to wedge tightly. This configuration eliminates tolerance and prevents initial slippage after integration, even under horizontal shear forces. A detailed finite element analysis and further evaluation of horizontal shear tests for this embedded separable shear connector can be found in [14,15].

3.2. Fabrication of Horizontal Shear Specimens and Horizontal Shear Tests

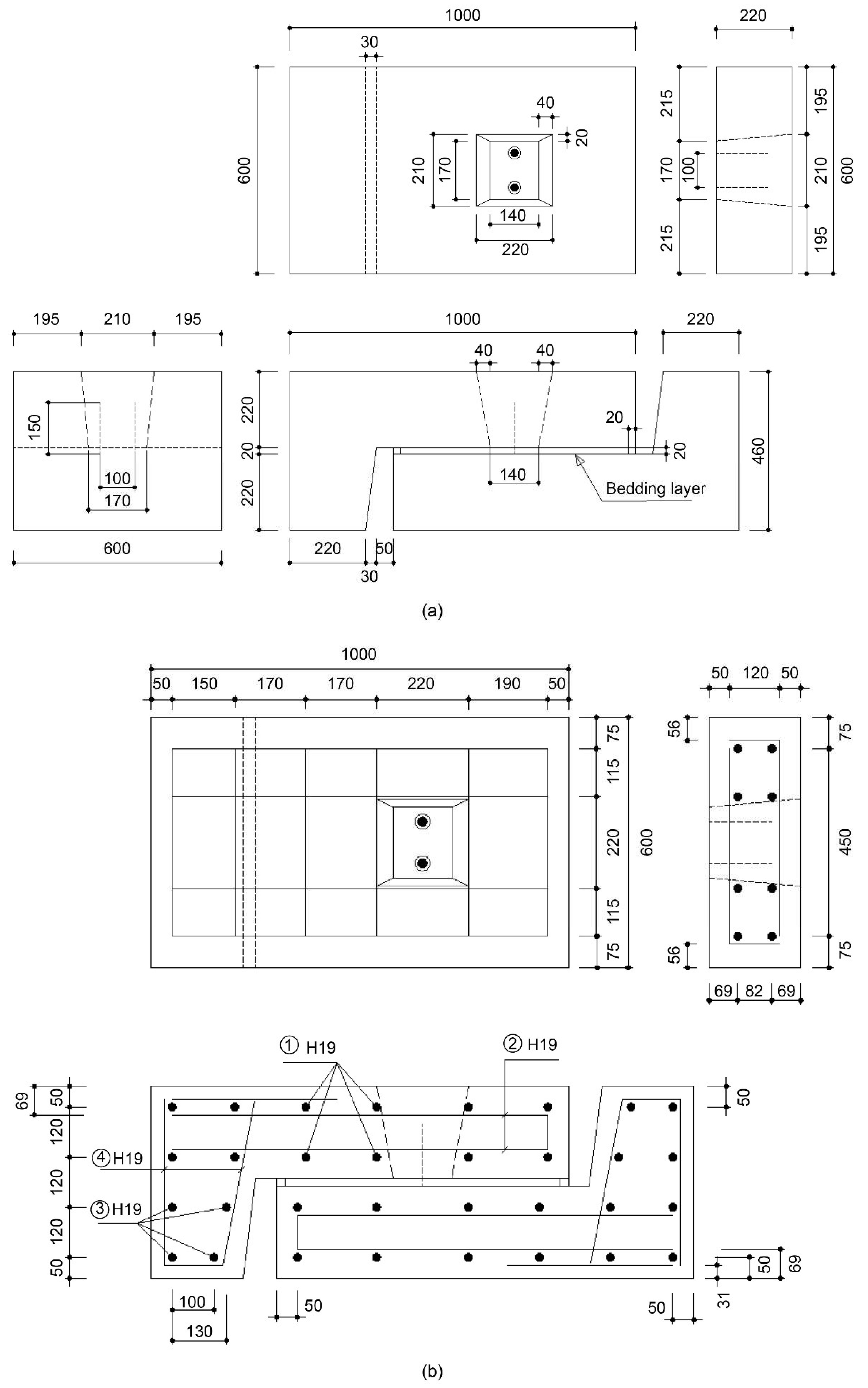
The horizontal shear specimens were constructed according to the specifications in Figure 4. Precast members were fabricated, and composite action was achieved by pouring nonshrink mortar through shear pockets in the upper precast deck members. The dimensions (length × width × thickness) of the specimens were 1,000 mm × 600 mm × 220 mm, with a bedding layer thickness of 20 mm. Figure 5 and Table 2 show that the shear connectors tested in the horizontal shear experiments are categorized into rebar (rebar type) and embedded separable (DY type) shear connectors. The M-DY specimens grouped and fixed several shear connectors by applying a steel plate to the top-surface embedment of the girder concrete, whereas the S-DY specimens utilized shear connectors individually. Each type comprised three specimens, all sharing identical dimensions, rebar arrangements, and material properties for the girders and concrete decks.
The diameters of the rebar shear connectors and stud bolts in the specimens were consistently 22 mm. The connectors were arranged in a 2 × 1 pattern, totaling 2 connectors/specimen. The design strengths of the precast decks and nonshrink mortar were 40 and 60 MPa, respectively. However, the actual compressive strengths of the test specimens were 51.2 and 53.8 MPa, indicating marginal deviations.
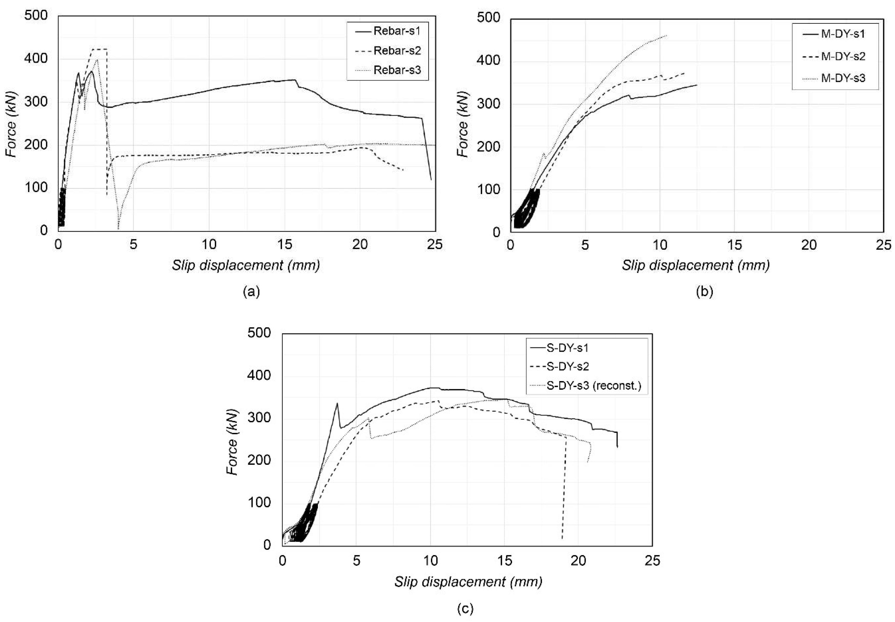
Yield   strength   ( M P a Tensile   strength   ( M P a The loading procedure adhered to the testing methods suggested in Eurocode-4 Annex B [3] and was executed using an actuator for horizontal shear tests on the plane. For specimens s1 and s2, repeated loading at a rate of 50 kN/min in cycles ranging from 5%–40% (12.5–100 kN) times the expected ultimate load (250 kN) was applied until failure under monotonically increasing displacement control. For the remaining specimens, monotonically increasing displacement controls were employed until failure without repeated loading at 1.0 mm/min. Figure 6 overviews the horizontal shear test specimen setup (1,000 kN actuator). The sensor arrangement is detailed in Figure 6. To measure the slip displacement, two sensors were positioned on each side of the concrete deck at the locations of the shear connectors, and strain gauges were installed on both the shear connectors and the concrete, as illustrated in Figure 7.

3.3. Analysis of Horizontal Shear Test Results

The load–slip displacement graphs for each specimen are depicted in Figure 8. Table 3 summarizes the failure loads, slip displacements, and failure modes of each specimen. Failure load was defined as the maximum load observed on the load-slip displacement curve, with the maximum slip displacement being the slip at the load corresponding to 90% of this maximum. The initial slip displacement was recorded over 25 repeated loading cycles, and the total slip displacement was defined as the difference between the maximum and initial slip displacements.
Based on the average values for specimens of each model listed in Table 3, the ultimate strength of the M-DY model is 394.1 kN, which is very close to the 391.4 kN for the Rebar model. In contrast, the S-DY model exhibited a value of approximately 10% lower at 353.9 kN. The model experienced a significant increase in relative slip owing to the pull-out failure of the rebar shear connectors. The M-DY model showed an average slip of 11.4 mm due to the failure of only the shear connectors without damage to the deck concrete. Figure 9 shows the failure photographs of each model. The behaviors of all six specimens within each model group were consistent, both Rebar and M-DY. However, the S-DY model demonstrated cracking in the girder concrete and pull-out of the embedded nut part, likely owing to insufficient confinement and a short embedding depth, resulting in inadequate anchorage strength. The degrees of slip in the DY-type specimens were generally lower than those in the rebar-type specimens. Nevertheless, all the values exceeded the relative slip of 6 mm required for studs under the ductile design criteria of Eurocode-4. The overall failure modes indicated that failure occurred in the girder concrete due to the inadequate confinement of the embedded shear connectors, leading to the pull-out of either the embedded rebar shear connectors or the nuts of the separable shear connectors. This issue is further addressed in the flexural tests of the composite girders.

3.4. Review of Reconstructability of Precast Decks

This section analyzes the experimental results for the dismantling and reinstallation of the deck using an embedded separable-stud bolt (DY stud). Figure 10 displays the reassembly simulation and failure photographs of S-DY-s3, which visualize the deck dismantling and reinstallation processes. In the S-DY model, the s3 specimens were designed to facilitate the separation of the precast deck by pouring mortar only up to the bottom of the T-sleeve head during the composite action, thereby facilitating bolt dismantling. Initially subjected to repeated loadings of up to 180 kN (one cycle), the stud bolts were dismantled and reassembled, and loading was applied until failure in a phased manner (reloading). The load–slip displacement behavior is illustrated in Figure 8(c).
The ultimate load of S-DY-s3 was 345.7 kN, which is approximately 97.7% of the average ultimate load of S-DY at 353.9 kN. This confirms the presence of adequate horizontal shear strength even after reinstallation. Therefore, when deploying the proposed separable stud bolts in actual field conditions, no reduction in strength is anticipated because a new nonshrink mortar will be employed to install a new deck. Although using a limited number of specimens reduces the reliability of the results, the proposed embedded separable shear connectors achieve the intended performance for detachment and reconstructability to a certain extent.

3.5. Evaluation of Horizontal Shear Strength

The horizontal shear strength results for each specimen were compared with various design standards, as detailed in Table 4 and Figure 11. The overburden load used to calculate the friction resistance included the self-weight of the concrete girder members and the weight of the steel blocks used during the experiment. Interface conditions were applied under the ‘smooth’ conditions in Table 1. The specimens were fabricated according to the KDS standards. Additionally, most fabrication criteria satisfied the AASHTO and ACI-318, except EC2. Cases that did not meet certain standards involve pull-out phenomena in the girders owing to the insufficient embedding strength of the shear connectors, which reduces the horizontal shear strength.

4. Verification of Flexural Tests on Composite Girders

4.1 Fabrication of Composite Girder Specimens

Flexural tests were conducted to assess the applicability and performance of composite girders on a larger scale. The specifications for the girder (longitudinal length × width × height) were 9.6 m × 0.45 m × 0.65 m, and those for the precast deck (longitudinal length × width × thickness) were 9 m × 1.2 m × 240 mm. To eliminate the effect of the longitudinal joints between decks, the entire deck was constructed from a single structure without longitudinal joints, focusing solely on the shear connection between the girder and the deck. Detailed drawings of the girder and composite girder specimens are displayed in Figure 12. As listed in Table 5, the specimens were fabricated in three sets of each type: one with conventional U-shaped rebar shear connectors (Rebar_F) and two with the separable shear connectors developed in this study (DY_F) and (DY_H). The number of shear connectors for each specimen type, Rebar_F, DY_F, and DY_H, were 74, 48, and 20, respectively, tailored to the design conditions. Models Rebar_F and DY_F were designed to induce flexural failure by applying 100% of the required quantity of rebar and shear connectors, whereas specimen DY_H was equipped with approximately 42% of the required shear connectors to induce horizontal shear failure at the interface.

4.2. Flexural Test and Result Analysis

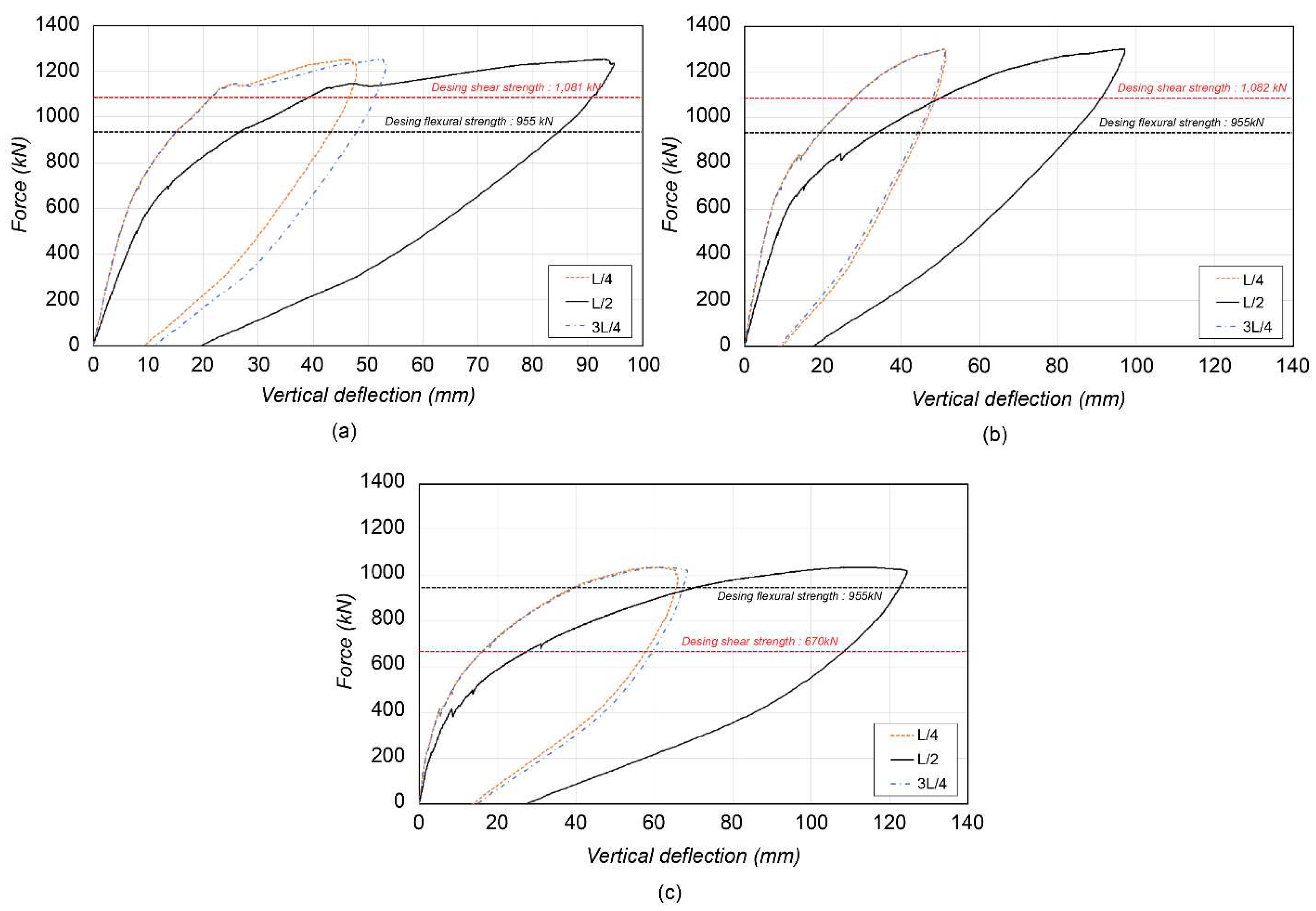
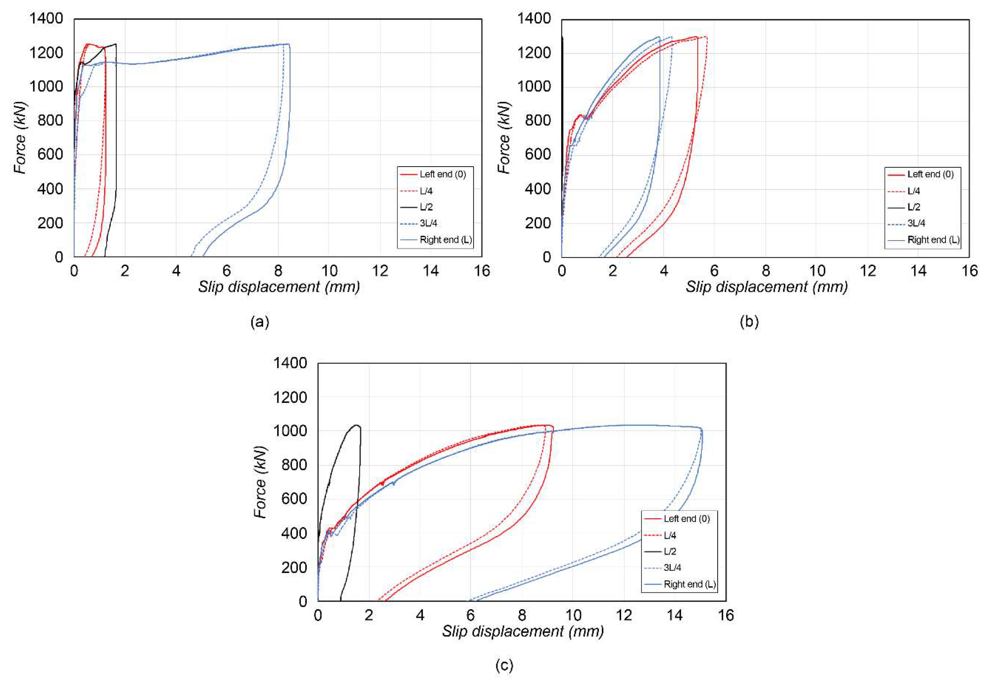
Flexural tests on the composite girders were conducted at Myongji University Hybrid Structure Testing Center (South Korea) using a line load applied at the center of a span of 9.0 m. The test was carried out in the displacement control mode, specifically monitoring the central vertical deflection with a continuous, monotonically increasing control speed of 1.4 mm/s (5,000 kN, UTM). The specimen and sensor arrangement are illustrated in Figure 13. Displacement meters were positioned at L/4, L/2, and 3L/4 along the span to measure the vertical deflection and relative slip at the girder–deck interface, with additional meters at both ends to exclusively monitor the relative slip at the interface.
Figure 13 shows the test setup for the DY_F specimen secured with only stud bolts. Figure 14 shows that flexural cracks propagated to the deck, which led to the crushing of the top of the concrete deck. While DY_F and DY_H exhibited consistent overall flexural behavior, diagonal cracks developed from the interface at the ends, where the shear connectors were installed and extended toward the girder. This was attributed to the relatively higher horizontal shear stress on the end shear connectors, resulting in fewer shear connectors and wider spacing than those in the other specimens. As illustrated in Figure 14, DY_H, which had only 42% of the required shear connectors, exhibited numerous transverse cracks at the girder top surface, indicating simultaneous shear failure owing to an insufficient number of shear connectors.
Table 6 summarizes the maximum load, vertical deflection, and relative horizontal slip measurements at the interface for each specimen. The relative slip was quantified as the absolute value of the deformation between the top surface of the girder and the bottom surface of the deck at the same cross section. All specimens exhibited more than 30% of the design flexural strength and 16–94% more horizontal shear strength than expected. Specifically, the horizontal shear strength of DY_F, which utilized the same number of shear connectors, increased by approximately 4% over the Rebar_F specimen. Specimen DY_H specimen was designed with approximately 42% fewer shear connectors than DY_F, leading to simultaneous flexural and horizontal shear failures. Despite the significant reduction in the number of shear connectors, the ultimate load resistance remained comparable.
The DY_F specimen exhibited 32.7% less relative slip than the Rebar_F specimen, while the DY_H specimen, with fewer shear connectors, demonstrated significantly larger slip, reaching up to 15.03 mm, indicating increased horizontal shear deformation at the interface. Figure 15 shows that the shear and flexural strengths of all the specimens surpass their corresponding designed values. The Rebar_F and DY_F specimens show similar maximum loads and maximum deformation, whereas the DY_H specimen shows a relatively large deflection due to shear deformation. This result is attributed to an increase in the relative slip owing to the shear deformation in the shear connector between the girder and slab. Figure 16 confirms a significant increase in the relative slip in the DY_H specimen.
Consequently, the separable shear connectors developed in this study exhibited superior horizontal shear performance, achieving equal or improved results with approximately 35.1% fewer connectors than traditional rebar shear connectors. This reduction allows for a wider spacing of shear connectors, enhancing the design and construction efficiency of shear pockets in precast decks. However, at the ends, where fewer connectors are placed, diagonal cracks may extend to the girder, suggesting that denser spacing should be considered. The flexural test confirmed that the improvements in the embedded anchor part of the DY stud connected to the girder reinforcement effectively prevented the pull-out phenomenon observed in the horizontal shear test specimens.

5. Conclusions

This study introduced an embedded separable shear connector to streamline the removal and replacement of aged or damaged decks of composite bridges with girders and decks. The efficacy of this method and that of the conventional rebar shear connector approach was assessed using horizontal shear tests. The results were evaluated against various design standards. Flexural tests on the composite girders provided key insights, leading to the following conclusions.
  • The average shear failure strength of the separable shear-connector model M-DY was 394.1 kN, approximately 1% more than the 391.4 kN observed in conventional rebar shear-connector specimens, confirming equal or superior shear strength performance. Meanwhile S-DY, without an embedded component at the girder top, such as with the M-DY specimens, exhibited approximately 10% less strength. To reduce costs effectively, models such as S-DY should incorporate a sufficient embedding depth to prevent pull-out failures. This approach was validated using composite girder specimens with no observed pull-out phenomenon.
  • Regarding slip displacement, the DY specimens underwent a displacement of 11.40 mm, approximately 55% less than the 20.71 mm observed in the Rebar specimens. Meanwhile, the Rebar specimens displayed larger slips owing to pull-out failures caused by insufficient embedding depth and anchorage. Conversely, the DY specimens exhibited smaller slip. Nevertheless, both exceeded the requirements and satisfied the ductile design conditions of the standard.
  • The horizontal shear strength of the dismantled and reassembled specimens was 345.7 kN, approximately 97.7% of the average horizontal shear strength 353.9 kN observed in the general specimens (S-DY), indicating sufficient horizontal shear strength. Although the experiment used a retained bedding layer for reattachment, in practical scenarios, the existing deck would be replaced with a new one, and the composite action would be restored using a nonshrink mortar, suggesting that the actual outcomes could surpass those achieved in the experiment.
  • Most M-DY and S-DY specimens with demountable shear connectors satisfied the shear strength requirements of the AASHTO LRFD, ACI-318, and KDS standards, except for the EC2 standard.
  • The flexural test results of composite girders employing the shear connectors indicated an approximately 4% increase in horizontal shear strength, reaching 1,300.2 kN, compared with the 1,252.5 kN of specimens using conventional rebar shear connectors. This enhancement was enabled by employing the refined S-DY embedding method rather than the M-DY utilized in the horizontal shear tests, ensuring superior performance over traditional rebar shear connectors. Notably, the DY_F specimens achieved equal or better performance, with 35.1% fewer required connectors than the conventional rebar shear connector specimens, Rebar_F, with a safety factor of 1.2 relative to design standards, indicating excellent performance.
These findings led us to infer that the newly developed separable shear connector facilitates the straightforward replacement of damaged or aged decks without damaging existing girders, simply by detaching the shear connectors to accommodate new deck installations. Moreover, it demonstrated equal or superior shear strength performance compared with traditional rebar shear connectors, affirming its effectiveness and potential as a viable alternative. This capability should be particularly beneficial for removing and replacing aged decks, thereby enhancing the efficiency and sustainability of bridge maintenance practices.

Author Contributions

Conceptualization, D.-S.J.; Methodology and analysis, S.-H.P. and D.-S.J.; Experiments and investigation, J.-W.H. and C.-Y.K.; Writing–original draft preparation, D.-S.J. and S.-H.P.; Writing–review and editing, D.-S.J. and C.-Y.K.; Visualization, D.-S.J. and S.-H.P.; Supervision, C.-Y.K.; All authors have read and agreed to the published version of the manuscript.

Funding

This work was supported by the Korea Agency for Infrastructure Technology Advancement (KAIA) grant funded by the Ministry of Land, Infrastructure, and Transport (Grant No. 22CTAP-C164156-02), and a Korea Basic Science Institute (National Research Facilities and Equipment Center) grant funded by the Ministry of Education (Grant No. 2021R1A6C101B382).

Institutional Review Board Statement

Not applicable.

Informed Consent Statement

Not applicable.

Acknowledgments

This work was supported by the Korea Agency for Infrastructure Technology Advancement (KAIA) grant funded by the Ministry of Land, Infrastructure, and Transport (Grant No. 22CTAP-C164156-02), and a Korea Basic Science Institute (National Research Facilities and Equipment Center) grant funded by the Ministry of Education (Grant No. 2021R1A6C101B382). The authors would like to thank them for their generous support for this research.

Conflicts of Interest

The authors declare no conflicts of interest.

References

  1. ACI Committee. Building code requirements for structural. Concrete (ACI 318-19) and Commentary (ACI 318 R-19); American Concrete Institute (ACI): Farmington Hills, MI 2019. [Google Scholar]
  2. Aashto, L.R.F.D. Bridge Design Specifications, 4th ed.; AASHTO: Washington, DC, USA, 2007. [Google Scholar]
  3. EN 1992-1-1. Eurocode 2: Design of Concrete Structures, Part 1–1: General Rules and Rules for Building; European Committee for Standardization (CEN): Brussels, Belgium, 2004. [Google Scholar]
  4. KDS 24-14-21:2021; Korean Design Standard. Korea Construction Standards Center: Goyang-si, Korea, 2021.
  5. Loov, R.E.; Patnaik, A.K. Horizontal shear strength of composite concrete beams with a rough interface. PCI J. 1994, 39, 48–69. [Google Scholar] [CrossRef]
  6. Kahn, L.F.; Mitchell, A.D. Shear friction tests with high-strength concrete. ACI Struct. J. 2002, 99, 98–103. [Google Scholar]
  7. Menkulasi, F. Horizontal Shear Connectors for Precast Prestressed Bridge Deck Panels; Virginia Polytechnic Institute and State University: USA, 2002. [Google Scholar]
  8. Suh, J.I.; Park, H.G.; Hong, G.H.; Kang, S.M.; Kim, C.G. Evaluation of horizontal shear strength for concrete composite members. J. Korea Concr. Inst. 2016, 28, 407–417. (In Korean) [Google Scholar] [CrossRef]
  9. Kim, M.J.; Lee, G.Y. Calculation of horizontal shear strength in reinforced concrete composite beams. J. Korea Acad.-Ind. Coop. Soc. 2020, 21, 772–781. (In Korean) [Google Scholar]
  10. Chung, C.H.; Shim, C.S.; Kim, I.G.; Park, S.J. Evaluation of the horizontal bond strength at the interface between precast decks and PSC girders. KSCE J. Civ. Environ. Eng. Res. 2004, 24, 1183–1191. (In Korean) [Google Scholar]
  11. Pavlovič, M.S. Resistance of Bolted Shear Connectors in Prefabricated Steel-Concrete Composite Decks. Ph.D. Thesis, University of Belgrade, Republic of Serbia, 2013. [Google Scholar]
  12. Suwaed, A.S.H.; Karavasilis, T.L. Novel demountable shear connector for accelerated disassembly, repair, or replacement of precast steel-concrete composite bridges. J. Bridge Eng. 2017, 22, 04017052. [Google Scholar] [CrossRef]
  13. Yang, F.; Liu, Y.; Jiang, Z.; Xin, H. Shear performance of a novel demountable steel-concrete bolted connector under static push-out tests. Eng. Struct. 2018, 160, 133–146. [Google Scholar] [CrossRef]
  14. Jung, D.S.; Park, S.H.; Im, E. Shear-performance evaluation of PSC composite girder with embedded demountable shear connectors. J. Korean Soc. Adv. Comp. Struc. 2022, 13, 47–54. (In Korean) [Google Scholar] [CrossRef]
  15. Jung, D.S.; Park, S.H. Experimental study on development of embedded demountable shear connector for concrete girder-slab composite bridges. J. Korea Concr. Inst. 2022, 34, 609–619. (In Korean) [Google Scholar] [CrossRef]
Figure 1. Case study on the removal and reconstruction of aged concrete slabs. (a) Cutting aged concrete slab; (b) Cutting rebar shear connectors; (c) Reinstallation of rebar shear connectors; (d) Complete reconstruction of new PC slab.
Figure 1. Case study on the removal and reconstruction of aged concrete slabs. (a) Cutting aged concrete slab; (b) Cutting rebar shear connectors; (c) Reinstallation of rebar shear connectors; (d) Complete reconstruction of new PC slab.
Preprints 120922 g001
Figure 2. Bending-horizontal shear force mechanism of PSC composite girder.
Figure 2. Bending-horizontal shear force mechanism of PSC composite girder.
Preprints 120922 g002
Figure 3. Conceptual diagram of embedded demountable shear connector. (a) Components of DY–shear connector; (b) Girder–slab composition; (c) Separation of girder and slab.
Figure 3. Conceptual diagram of embedded demountable shear connector. (a) Components of DY–shear connector; (b) Girder–slab composition; (c) Separation of girder and slab.
Preprints 120922 g003
Figure 4. Engineering drawing of the shear specimen: (a) Assembly drawing (top: top view, top-right: right side view, bottom-left: left side view, and bottom: front view); (b) Reinforcement diagram (top: top view, top-right: right side view, and bottom: front view)
Figure 4. Engineering drawing of the shear specimen: (a) Assembly drawing (top: top view, top-right: right side view, bottom-left: left side view, and bottom: front view); (b) Reinforcement diagram (top: top view, top-right: right side view, and bottom: front view)
Preprints 120922 g004
Figure 5. Types of shear connector. (a) Rebar; (b) M-DY; (c) S-DY
Figure 5. Types of shear connector. (a) Rebar; (b) M-DY; (c) S-DY
Preprints 120922 g005
Figure 6. Test apparatus.
Figure 6. Test apparatus.
Preprints 120922 g006
Figure 7. Sensor locations (top: steel; bottom: concrete). C indicates the strain gauge attached to the concrete surface, and S represents a strain gauge attached to steel.
Figure 7. Sensor locations (top: steel; bottom: concrete). C indicates the strain gauge attached to the concrete surface, and S represents a strain gauge attached to steel.
Preprints 120922 g007
Figure 8. Load–slip displacement curves. (a) Rebar; (b) M-DY; (c) S-DY).
Figure 8. Load–slip displacement curves. (a) Rebar; (b) M-DY; (c) S-DY).
Preprints 120922 g008
Figure 9. Fracture of test specimens (Left: Rebar; Middle: M-DY; Right: S-DY).
Figure 9. Fracture of test specimens (Left: Rebar; Middle: M-DY; Right: S-DY).
Preprints 120922 g009
Figure 10. Reconstruction simulation (S-DY-s3): (a) Slab composition; (b) Remove shear connector; (c) Fracture (girder); (d) Fracture (slab).
Figure 10. Reconstruction simulation (S-DY-s3): (a) Slab composition; (b) Remove shear connector; (c) Fracture (girder); (d) Fracture (slab).
Preprints 120922 g010
Figure 11. Comparison of horizontal shear strengths.
Figure 11. Comparison of horizontal shear strengths.
Preprints 120922 g011
Figure 12. Figure 12. Bending test specimen drawing for PSC composite girder.
Figure 12. Figure 12. Bending test specimen drawing for PSC composite girder.
Preprints 120922 g012
Figure 13. Bending test setup and linear variable differential transformer (LVDT) installations.
Figure 13. Bending test setup and linear variable differential transformer (LVDT) installations.
Preprints 120922 g013
Figure 14. Crack patterns (top: Rebar_F, middle: DY_F, bottom: DY_H).
Figure 14. Crack patterns (top: Rebar_F, middle: DY_F, bottom: DY_H).
Preprints 120922 g014
Figure 15. Force–vertical deflection curves. (a) Rebar_F; (b) DY_F; (c) DY_H. Added in red to the text above.
Figure 15. Force–vertical deflection curves. (a) Rebar_F; (b) DY_F; (c) DY_H. Added in red to the text above.
Preprints 120922 g015
Figure 16. Force–slip curves. (a) Rebar_F; (b) DY_F; (c) DY_H.
Figure 16. Force–slip curves. (a) Rebar_F; (b) DY_F; (c) DY_H.
Preprints 120922 g016
Table 1. Horizontal shear strength by design codes.
Table 1. Horizontal shear strength by design codes.
Design codes Horizontal shear strength design formula Variable Interfacial roughness Limit value
Smooth Rough
ACI-318
[1]
v n h = c + μ ρ v f y c M P a 0.56 1.8 v n h 3.5 M P a
A v A v , m i n
μ - 0.6
v n = μ ρ v f y μ 0.6 1.0 v n h > 3.5 M P a ,
V n K 1 f c '
  V n K 2
K 1 0.2 0.2
K 2 M P a 5.5 3.3 + 0.08 f c '
AASHTO LRFD
[2]
v n = c + μ ρ v f y + σ n c M P a 0.52 1.65 V n K 1 f c '
V n K 2
μ 0.6 1.0
K 1 0.2 0.25
K 2 M P a 5.52 10.34
EC2
[3]
v R d i = c f c t d + μ ρ n + ρ v f y d μ sin α + cos α c M P a 0.35 0.45 v R d i 0.5 v f c d
v = 0.6 1 f c k / 250
σ n 0.6 f c d
μ 0.6 0.7
KDS
[4]
v d = Φ c μ 1 f c k t + μ 2 f n + Φ 2 μ 2 ρ f y μ 1 0.35 0.45 v d 0.5 Φ c v f c k
μ 2 0.6 0.7
Φ c 0.65 0.65
Φ s 0.90 0.90
Note: v n h = v n = v R d i represents the horizontal shear strength, c represents the interface bond coefficient, μ is the friction coefficient, ρ v is the ratio of the shear connector area ( A v f ) to the concrete contact area ( A c v ) of the shear friction surface, f y is the yield strength of the shear connectors (rebar) traversing the shear friction surface, and f c ' = f c d is the design compressive strength of the concrete. K 1 denotes the concrete strength ratio critical for interface shear resistance, and K 2 represents the interface shear resistance limit. The compressive strength must exceed 16.5 MPa. f c t d is the design tensile strength of the concrete, σ n denotes the stress induced by external loads perpendicular to the contact surface (compression: positive, tension: zero), f y d is the design yield strength of the shear rebar (within specified limits 600 MPa), and f c k is the compressive strength of an individual specimen (12–90 MPa). α is the angle between the shear connectors and the interface, constrained within the range of 45 ° α 90 ° .
Table 2. Test specimens and their dimensions and parameters.
Table 2. Test specimens and their dimensions and parameters.
Specimen Shear Connector
Stud type Diameter (mm) Height (mm) Yield   strength   ( M P a ) Tensile   strength   ( M P a )
Rebar: s1–s3 Rebar 22 150 452.6 578.5
M-DY: s1–s3 DY 22 150 409.9 705.1
*S-DY: s1–s3 DY 22 150 409.9 705.1
*S-DY-s3: specimen for reconstruction simulation
Table 3. Test results for horizontal shear tests.
Table 3. Test results for horizontal shear tests.
Specimen Ultimate
Force (kN)
Slip (mm) Averaged Value Difference Ratio (DY/Rebar)
Initial Maximum Total Ultimate force (kN) Total slip (mm) Ultimate force
(kN)
Total slip
(mm)
Rebar s1 351.7   17.28   391.4 20.71 1.00 1.00
s2 423.2 0.39 21.10 20.71
s3 399.3   32.52  
M-DY s1 345.4 0.61 12.48 11.87 394.1 11.40 1.01 0.55
s2 374.3 0.81 11.74 10.93
s3 462.5   10.51  
S-DY s1 373.5 1.26 16.27 15.01 353.9 14.59 0.90 0.70
s2 342.6 1.35 15.53 14.18
s3 345.7   16.98  
Table 4. Comparison of horizontal shear strengths.
Table 4. Comparison of horizontal shear strengths.
Specimens A s
(mm2)
ρ y f y
(MPa)
Test results Predicted results Shear strength ratio
Ultimate force (kN) Horizontal shear strength, (MPa) Averaged horizontal shear strength, (MPa)
AASHTO LRFD ACI-318 EC2 KDS ①/ ①/ ①/ ①/
Rebar s1 774.2 1.35 351.73 1.36 1.51 1.36 0.56 1.89 1.44 1.11 2.70 0.80 1.05
s2 774.2 1.35 423.17 1.64
s3 774.2 1.35 399.30 1.54
M-DY s1 760.2 1.20 345.43 1.34 1.53 1.27 0.56 1.80 1.36 1.20 2.73 0.85 1.12
s2 760.2 1.20 374.29 1.45
s3 760.2 1.20 462.46 1.79
S-DY s1 760.2 1.20 373.45 1.44 1.37 1.27 0.56 1.80 1.36 1.08 2.44 0.76 1.00
s2 760.2 1.20 342.55 1.32
s3 760.2 1.20 345.74 1.34
Table 5. Specimen and shear connector specifications and parameters.
Table 5. Specimen and shear connector specifications and parameters.
Specimen PSC girder PC slab Shear connector Flexural strength
(kN)
Horizontal
shear strength
(kN)
Design shear strength of interface
(MPa)
Compression strength
(MPa)
Modulus of elasticity
(MPa)
Compression strength
(MPa)
Modulus of elasticity
(MPa)
Cross-
sectional
area
(mm2)
Tensile strength
(MPa)
Quantity Design Nominal Design Nominal
Rebar_F 49 35,100 44 33,980 380 400 74 955 1,085 1,082 1,362 1.711
DY_F 49 35,100 44 33,980 380 569 48 955 1,085 670 905 1.713
DY_H 49 35,100 44 33,980 380 569 20 955 1,085 1,081 1,361 1.061
Table 6. Test results for bending tests.
Table 6. Test results for bending tests.
Specimen Vertical deflection (mm) Slip displacement (mm) Measured ultimate force
(kN)
Flexural
strength
(kN)
Horizontal
shear strength
(kN)
Fracture mode
1/4L 1/2L 3/4L 0 1/4L 1/2L 3/4L L Design Safety factor Design Safety factor
Rebar_F 47.9 94.8 53.3 1.24 1.22 1.66 8.23 8.47 1,252.5 955 1.31 1,081 1.16 Flexural
DY_F 51.3 97.2 51.3 5.34 5.71 0.05 4.33 3.86 1,300.2 955 1.36 1,082 1.20 Flexural
DY_H 66.0 124.4 68.5 9.22 8.93 1.67 15.03 15.07 1,304.5 955 1.36 670 1.94 Flexural & shear
Disclaimer/Publisher’s Note: The statements, opinions and data contained in all publications are solely those of the individual author(s) and contributor(s) and not of MDPI and/or the editor(s). MDPI and/or the editor(s) disclaim responsibility for any injury to people or property resulting from any ideas, methods, instructions or products referred to in the content.
Copyright: This open access article is published under a Creative Commons CC BY 4.0 license, which permit the free download, distribution, and reuse, provided that the author and preprint are cited in any reuse.
Prerpints.org logo

Preprints.org is a free preprint server supported by MDPI in Basel, Switzerland.

Subscribe

Disclaimer

Terms of Use

Privacy Policy

Privacy Settings

© 2026 MDPI (Basel, Switzerland) unless otherwise stated