Preprint
Essay

This version is not peer-reviewed.

Architectural Modulus in Ancient China: The Great Hall of Yanfu Temple in Wuyi County

Submitted:

21 November 2025

Posted:

24 November 2025

You are already at the latest version

Abstract

The Yanfu Temple in Wuyi County is one of the few Yuan Dynasty wooden structures in Jiangnan, which is representative in the history of architecture. Based on the proportionality of each structural parameter of the building, the Yingzao chi (Construction ruler) was calculated to be 315. 48 mm, using the large and small rulers system that has been used since the Tang and Song dynasties. It did not adopt the cai-fen system of the Yingzao Fashi (The Methodology of Official Architecture in the Northern Song Dynasty), but instead used the architectural module system. This modulus is a series modulus, very similar to the modern building modulus.

Keywords: 
;  ;  ;  ;  

1. Overview and Existing Research

Yanfu Temple is located in a valley in Tao Village, Taoxi Town, Wuyi County, Zhejiang Province. The temple is situated from north to south, with the mountain gate, heavenly king's hall, life releasing pool, great hall, Guanyin hall in order of the central axis, and subsidiary buildings on each side. The great hall is the most ancient one, which was rebuilt in the fourth year of the reign of Yuan Yanyou (1317 AD), and is the main building of the temple.
In the 1930s, Mr Liang Sicheng and other gentlemen inspected the temple, leaving mapping sketches, photographs and manuscripts. After the liberation of the temple also experienced several repairs, the temple can be protected, the main hall can be retained. 1996 Yanfu temple listed in the fourth batch of national key cultural relics protection list. 1999 Yanfu temple ushered in the century of major repairs. 2013 zhejiang province institute of ancient architectural design published ‘yuan dynasty wooden Yanfu temple’ (Huang 2013), the book of the century of major repairs of the survey, design, administrative documents, completion reports, drawings, Related research, historical documents are included, all the original data in this paper are derived from this. The current situation of the hall is two eaves. In 2023, Mr Zhang Yaxuan proved that the lower eaves and the secondary columns were added during the restoration in the Tianshun period of the Ming Dynasty (Zhang 2020). This article only discusses the Yuan structure part.

2. Yingzao chi (Construction Ruler)

2.1. Length of a Ruler in the Yuan Dynasty

The Chinese History of Science and Technology, Volume of Weights and Measures is a collection of studies on weights and measures in China through the ages (Lu 2001, 145). He records that there is not a single heirloom Yuan ruler, and he includes some speculations made by various authors based on historical documents, with the data listed in Table 1. The seven ruler lengths span a wide range and are all longer than 300 mm, which means that the Yuan ruler lengths ranged from 306 mm to 412 mm. He also included 15 official seal, according to the official seal system and the actual amount of value, deduced the maximum length of the ruler and the minimum length of the ruler, such as Table 1. average value is about 348. 65 mm. Although he included the views of various parties, the length of the Yuan dynasty is not uniform.
Existing architectural remains of the ruler length is also the development of change, collect some data such as Table 2, according to each structural parameters and proportionality of the relationship can be calculated to create the ruler length. Ningbo Baoguo Temple was rebuilt in the Northern Song Dynasty in the sixth year of Xiangfu (1013), and Wuyi Yanfusi Temple is located in the same south of the Yangtze River, there is an important reference significance, but the difference in the construction of more than three hundred years, Yanfusi Temple hall using the construction ruler is unlikely. Jincheng two immortal temple main hall for the late sung, construction ruler is 299. 39 mm. Lingchuan Xixi Erxian Temple rear hall for the Jin Dynasty. The Tangwang Hall of Dayang Tangdi Temple in Jincheng, Shanxi, is not later than the fourth year of Yuan Zhizheng (1344). In comparison, the length of the construction ruler is a changing value, which varies from era to era and region to region.
The Yuan Dynasty was a vast area with different customs and products. The civil rule of the Mongol Yuan rulers was weak, the official or have unified the whole territory of the metric scale, but each place has a different standard of measurement used for living and building. Do not hesitate to refer to the ruler length of the Ming Dynasty in the Song Dynasty. As Table 1, Song dynasty ruler length 31. 4 cm, in use for 31. 2-31. 6 cm, Ming dynasty Yingzao chi length identified as 32 cm. Yingzao chi was used for construction, and the technique was passed from master to disciple by heart and mouth, so the Yuan dynasty construction ruler should be closer to the Song or Ming dynasty ruler length. Looking at Table 1 and Table 2 in general, the Yingzao chi for this hall is limited to between 287 mm and 356 mm, with a focus on 300 to 320 mm.

2.2. The System of Large and Small Ruler

The system of large and small chi was used in the Tang Dynasty and all subsequent dynasties (Lu 2001, 319). The large chi was the common chi and the small chi was used for rituals and music, astronomy, medicine and other scenarios that required precise calculations. This method of accumulating grains as chi as a theoretical basis was valued by the officials of successive dynasties. Taking the northern grains of millet as the standard, ten grains of millet is a small cun, ten small cun a small chi, 12 small cun is a big chi. The big ruler is the daily ruler, widely used, usually called chi, divided into ten parts, each part is 1 cun (Lu 2001, 319). This measurement is not an isolated case, as in Table 2, there are a large number of applications in ancient architecture. When analysing this hall, attention should also be paid to the system of large and small rulers.

2.3. Column Head Plan and Yingzao chi

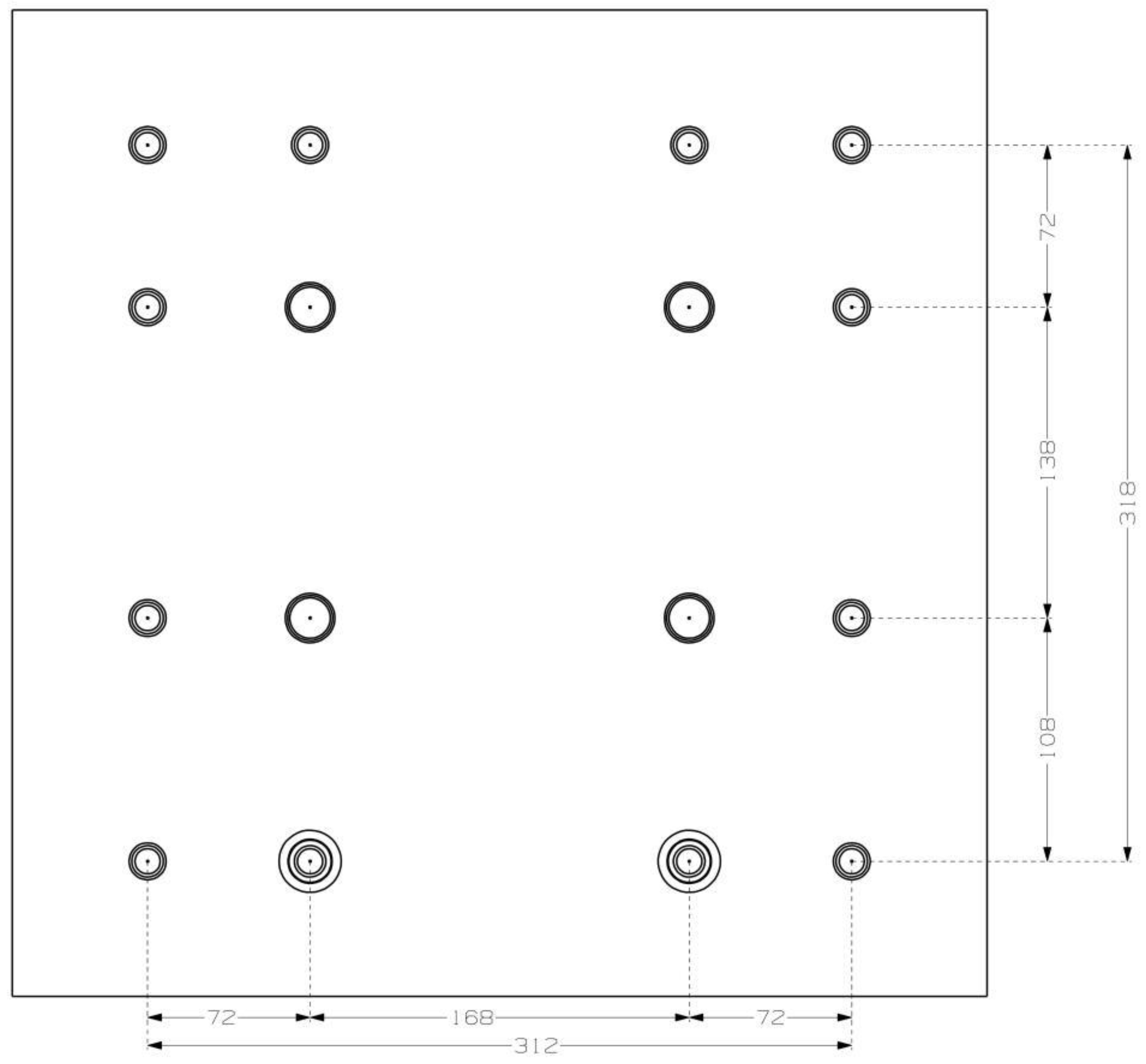
Building services to people, the column network layout determines the main practical space, the subjective habit of people is to take the integer, so the main parameters of the building should try to take the integer. The main parameters of Damuzuo (greater structural carpentry) are listed in Table 3. Tong MianKuo (The sum of all widths of the bays) is 8200mm, Tong Jinshen (The sum of all depths of the bays) is 8340mm and the height is 8525mm. he three are similar and form a series with a difference of about half a chi.
After repeated comparisons and fitting, Yingzao chi is 315. 48 mm. As in Table 3, assuming a Tong MianKuo of 260 cun, Tong Jinshen of 265 cun, and a height of 270 cun, Each bay is 140 cun, 60 cun, 115 cun, 90 cun, and the length of the ruler is calculated respectively, and the average value is both the Yingzao chi. Each parameter can also be converted to a small cun, as shown in Figure 1.

2.4. Architectural Module

Architectural modulus is a basic theory of modern architecture (MOHURD 2013), but it has been used in ancient Chinese buildings for a long time. As shown in Table 2, all of these buildings used architectural modulus. As in Table 3, the main parameter of this hall is not only the 1chi multiple, but also the 0. 4 small cun and 4 small cun multiples. It will be demonstrated below that the other elements were designed with 4 small cun and 0. 4 small cun, which is the series modulus.

3. Cai (Similar to Dimension Lumber) and Puzuo (Bracket Set)

3.1. Cai

Cai data listed in Table 4, converted to small cun, and then rounded to the nearest whole number.
The width of the Cai is 100mm in the text, and the mortise and tenon opening in the drawing is also 100mm. The drawing marked Gong Cai width is 95 mm, about 3. 6 Small cun. The difference is 5mm. Comparison of drawings, mortise and tenon mouth is slightly larger than the width of Cai in line with the rationale, so the Cai width was fitted to 3. 6 Small cun.
Dangcai (single-sized timbers) data in Document 1 are the same in the drawings and transcripts, both are 155 mm, only between the beams and frames is 150 mm single-sized timbers. The standard cai is mainly used for the outer eaves, so the cai is 155 mm as the standard value. The cai is compressed in the height direction, with 155 mm being approximately 5. 896 small cun, and Fit upwards to 6 small cun.
The Qi is 60 mm, directly converted to 2. 282 small cun and fitted towards the larger to 2. 4 small cun. The Zucai (full-sized timbers) is also dimensioned to 8. 4 small cun.

3.2. Dou (Bearing Block)

Dou raw data converted to small cun, and then take the whole number, such as Table 5, such as Figure 2. macroscopic Dou for the size of the two categories. ludou (the cap block) is a large category, used for the head of the column, without distinguishing between the corner column or other column. The small ones are Jiaohu dou (the connection block), Qixin dou (the coordinated bearing block), Sandou (the dispersed block) and Pingpan dou (the flat-plate bearing block), These Dou have slightly different external dimensions.
The dimensions of these dou are all integral multiples of 0. 4 small cun.

3.3. Parameters of Gong (Bracketarm) and Puzuo

The installation of three Dou on Gong is a common combination, which can also be interpreted as a component, with three parameters to focus on. One is the arch length, which is the solid length of the Gong. Second is Xin chang (critical dimension between joint centers), The assembly of Gong and Dou is that the centre point of Dou corresponds to the left, middle and right nodes of Gong, and the distance between the left and right nodes is the Xin chang of Gong. The Xin chang value is calculated by subtracting the width of the bottom of a Dou from the length of the gong. The third is the total width of the assembly, with three with Dou installed on the Gong, the maximum size is the total width of the Dou installed on the Gong. This parameter is obtained by adding the top width of one Dou by Xin chang. Gong data are listed in Table 6, converted to small cun and rounded to the nearest whole number. Based on the assembly relationship between the Dou and the Gong the following results are obtained. As shown in Figure 3, Figure 4 and Figure 5.
The Puzuo has an outside jump of 680 mm, which is approximately 26 small cun. This position is specifically identified in Document as having traces of later maintenance changes (Huang 2013), and based on the traces of the changes, the Puzuo was recovered to have an external jump of 840 mm, which fits to 32 small cun.
The inner jump of the Puzuo is fitted to 36 small cun.
The length of the nidao gong (base-tier transverse arm) is 26. 4 small cun, and the total width of the nidao gong assembly is 28 small cun, which is the widest point of the Puzuo, so the width of the Puzuo is 28 small cun.
The other horizontal gongs are all shorter than the nidao gong. Ling gong (regular arm) is 24 small cun long, Guazi gong (intermediate short bracket arm) is 16 small cun long, and Jiaofu gong (interlocking beam bracket) is 24 small cun long. Mangong (primary axial arm) is located directly above the nidao gong, which is 25. 2 small cun, 1. 2 small cun shorter than the nidao gong.
Puzuo length, width and height are the main parameters of Puzuo, all are 4 small cun integer multiples. The length of other Gong is 4 small cun times, some are not. This is because the Gong is Puzuo parts, is to serve and obey the Puzuo, according to the Puzuo structural needs and dimensions of the needs to set. Of course these parameters are all whole multiples of 0. 4 small cun.

4. Segments of Height

4.1. Column

The columns are fusiform/spindle-shaped, distinct from the straight columns typical of contemporaneous northern architecture. the relevant data for the columns are listed in Table 7. The eave columns are the lowest, ground level to the head of the columns is 4820 mm, fitting to 184 small cuns, exactly 46 times 4 small cuns. The inner columns are higher than the eave columns, which is set by the structural needs of the building.

4.2. Height of Wu Ju (Ridged Purlin) and Puzuo (Bracket Set)

Puzuo height and Wu Ju (ridged purlin) height literature 1 does not have direct data, indirect data projected as Table 8. due to later maintenance repair Ling gong moved inward, can only be based on the structural relationship of the projections. As in (Figure 3 and Figure 4), the layers above the eave column are clearly delineated, with one layer of Ludou, five layers of Zucai, one layer of Timu (cantilevered timbers), and one Tuan (purlin), totalling 58 small cun. As in Figure 4, the height positions of the three Tuan are fixed with a height difference of 16 small cuns, and the height of the liao-yan-fang (eaves purlin) can be deduced from the principle of triangle similarity. So Puzuo is 44 small cun high and Wu Ju is 96 small cun. Both are whole multiples of 4 small cun.

4.3. Computational Modeling of Curved Roof Polylines

As shown in Figure 7 and Figure 8, the roof slope consists of four Jia dao (between adjacent purlins), namely Yan bu, xia-jin bu, shang-jin bu, Ji bu, and the data are shown in Table 9. Some features can be found.
Firstly, the horizontal spacing and Vertical spacing of each Jia dao are all whole small cuns, and most of the slopes are simple whole-number ratios, with some features of the Qing-style ju-jia (roof pitch system in Qing official architecture).
Secondly, Wu Ju 96 small cun, is 8 chi, a whole number. This value is associated with the column height, Puzuo, and the total height of 324 small cun, Tong MianKuo, Tong Jinshen is set uniformly. Apparently the Wu Ju96 small cun was determined first, then the roof slope curve was calculated, not the Qing-style ju-jia.
Thirdly, the slopes of each Jia dao are increasing, but not in equal proportions, nor in equal differences. yan bu and xia-jin bu have similar slopes, and can be seen as a whole. shang-jin bu and Ji bu are not very different, and can be seen as a whole. There are clearly two segments of house slopes, Yan bu and xia-jin bu as one segment, and shang-jin bu and Ji bu as the other. Obviously this is not the method of Yingzao Fashi.
This calculation method starts by dividing the roof slope into two sections, outlining the general shape first, and slightly adjusting each Jia dao within the integer range. notice that the correlation between Yan bu and Puzuo is very strong, and the slope of Yan bu is fixed at 4 to 9. The designer compares Yan bu with Wu Ju, and the overall harmonisation is sufficient. This method has programmed characteristics. Most of the folk halls are three rooms, a few are five rooms, and the scale of the building is usually small, so the designer can meet the different needs of the folk construction by having a fixed set of several styles.

5. Rafters and Profile Parameters

5.1. Rafters

There are no flying rafters in the current state of the hall, only rafters. Document 1 recorded before the overhaul survey, the hall rafters there are offspring change, good and bad phenomenon, rafters have square and round two kinds. The four gable positions retain more than 40 round cedar rafters about 100 mm in diameter, longer than two Jia da, the style of tenon is old and the shape is the same as that of Tianning Temple in Jinhua. Repair presumed to be early Yuan Dynasty rafters. And accordingly the repair design.
The rafter data is shown in Table 10, as in Figure 3 and Figure 4. The rafter data is shown in Table 10, as in Figure 3 and Figure 4. With the head of the post as the fulcrum, the rafter has an outside pick of 78 small cun and an inside out of 36 small cun. If the liao-yan-fang is the fulcrum, the rafter is 46 small cun outside and 68 small cun inside. Therefore no flying rafter should be set in this hall. so that the east-west rafter head distance is 39 chi and the north-south rafter head distance is 39. 5 chi.

5.2. Principal Ridge (Zhengji) and Profile Parameters

As in Table 10, and as in Figure 6, Figure 7, and Figure 9. chu ji (Overhanging eaves) 62 small cun, the length of the Principal Ridge is 292 small cun. As in Figure 5, Corner Beam (Jiao Liang) is 2319. 31 mm flat out from the front side of the stigma, fitting to 90 small cun. As in Figure 9, the distance between the tops of the East and West Corner Beam (Jiao Liang) is 41 chi, and the distance between the tops of the North and South Corner Beam is 41. 5 chi. This is the four boundaries of the building. With the addition of the set of beasts, the actual footprint of this hall should be slightly larger than this.
The ratio of the ridge to the total width of the hall is 292 to 492, or about 0. 593 to 1, which is close to 3 to 5. With the addition of tile, Taoshou (Roof-end Beast), and other elements, the ratio does not change significantly.
As in Table 10, the building parameters are not scale-first to each other. For example, Tong MianKuo, Tong Jinshen, and the height parameter are a series of difference half-feet, close to a square, but not a pure square of exact proportions. The ratio of Principal ridge to total face width is close to 3 to 5, but not the classic ratio of the golden section. The construction of this hall is the architectural modulus first and integer values first, proportionality second.

6. Summary

This great hall has a Yingzao chi of 315. 48 mm, using the ancient Chinese system of large and small chi, each chi being 10 cun, or 12 small cun.
The architectural modulus is used. basic-module is 1 chi, i. e. , 12 small cun, which is the basic design unit. Half a chi, i. e. 6 small cun, is a sub-module, and 4 small cun is also a sub-module, which is used for openings, jia dao channels, various subsections in the height direction, Puzuo, etc. 0. 4 small cun is a sub-module, which is used for Cai, Dou, Gong, etc.
Architectural modulus is a distinctive feature of ancient Chinese architecture, not one that was introduced from the West after 1949, not one that has been developed after Corbusier since modern times. In conclusion, modern people have not surpassed the ancients in the use of architectural modulus.
The Puzuo has an outside jump of 32 small cun and an inside jump of 36 small cun. the total width of the nidao gong assembly is 28 small cun,Puzuo is 28 small cun wide. Puzuo is 44 small cun high. These parameters are the parameters under the coordination of architectural modulus. Yingzao Fashi takes the Cai-Fen System as its starting point,emphasis is placed on the standardisation and universality of Dou and Gong as parts, without focusing on the parameters of Puzuo. The two design ideas are different.
Taking the footprint of the Great Hall at the top of the four Corner Beams, it is 41. 5 chi deep from north to south and 41 chi wide from east to west. The main ridge is 292 small cuns long, a ratio of nearly 3 to 5 to the east-west breadth.
Ju zhe (Roof pitch grading) differs from Yingzao Fashi in that the approximate curve of the roof pitch is determined in two segments, and then adjustments are made to the individual jia dao. This method utilises an inner and outer post structure, with two segments spliced together.

Funding

The authors declare that no funds, grants, or other support were received during the preparation of this manuscript.

Ethical Approval

This article does not contain any studies with human participants performed by any of the authors.

Informed Consent

This article does not contain any studies with human participants performed by any of the authors.

Data Availability

Data sharing is not applicable to this research as no data were generated or analysed.

References

  1. Huang Zi, editor. Yuan Dynasty Timber Architecture: Yanfu Temple. Compiled by Zhejiang Ancient Architecture Design and Research Institute. Beijing: Cultural Relics Press, 2013.
  2. Zhang Yaxuan. "An Analysis of the Architectural Framework of the Main Hall of Yanfu Temple in Wuyi. " Traditional Chinese Architecture and Gardens Technology, no. 2 (2020): 14–21.
  3. Lu Jiaxi, general editor. A History of Science and Technology in China: Volume on Measures and Weights. By Qiu Guangming et al. Beijing: Science Press, 2001.
  4. Wang Guixiang. Ten Books by Contemporary Chinese Architectural Historians: Wang Guixiang's Selected Essays on Chinese Architectural History. Shenyang: Liaoning Fine Arts Publishing House, 2013.
  5. Zhang Shiqing. Survey Analysis and Fundamental Research on the Main Hall of Baoguo Temple in Ningbo. Nanjing: Southeast University Press, 2012.
  6. Xu Yitao, et al. Architectural Archaeology Research of the Ji King Temple in Wanrong, Shanxi. Nanjing: Southeast University Press, 2016.
  7. Shanxi Zhongde Ancient Architecture Planning and Design Institute Co. , Ltd. Completion Report on the Restoration Project of Erxian Temple in Jincheng. Taiyuan: Beiyue Literature and Art Publishing House, 2019.
  8. Li Huizhi, Zhao Shuguang, and Zheng Linyou. "The Zhenze Erxian Temple in Xixi, Lingchuan, Shanxi. " Cultural Relics Quarterly, no. 2 (1998): 4-13, 15-30.
  9. Liu Chang, Zhang Rong, and Liu Yu. "Analysis of Architectural Historical Traces of the Rear Hall of Xixi Erxian Temple. " In Architectural History, vol. 11, edited by Wang Guixiang, 119-34. Beijing: Tsinghua University Press, 2008.
  10. Liang Sicheng and Liu Dunzhen. "Survey Report on Ancient Architecture in Datong. " Bulletin of the Society for Research in Chinese Architecture 3-4 (1934): 1-70.
  11. Shanxi Zhongde Ancient Architecture Planning and Design Institute Co. , Ltd. Completion Report on the Restoration Project of Tangdi Temple in Dayang. Taiyuan: Beiyue Literature and Art Publishing House, 2019.
  12. Ministry of Housing and Urban-Rural Development of the People's Republic of China (MOHURD). *GB/T 50002-2013: Standard for Modular Coordination of Buildings*. Beijing: China Architecture & Building Press, 2013.
Figure 1. Floor plan (unit: small cun).
Figure 1. Floor plan (unit: small cun).
Preprints 186154 g001
Figure 2. various kinds of Dou (unit: small cun).
Figure 2. various kinds of Dou (unit: small cun).
Preprints 186154 g002
Figure 3. Bujian Puzuo (unit: small cun).
Figure 3. Bujian Puzuo (unit: small cun).
Preprints 186154 g003
Figure 4. Fore column top Puzuo (unit: small cun).
Figure 4. Fore column top Puzuo (unit: small cun).
Preprints 186154 g004
Figure 5. corner top Puzuo (unit: small cun).
Figure 5. corner top Puzuo (unit: small cun).
Preprints 186154 g005
Figure 6. front view (unit: small cun).
Figure 6. front view (unit: small cun).
Preprints 186154 g006
Figure 7. side view (unit: small cun).
Figure 7. side view (unit: small cun).
Preprints 186154 g007
Figure 8. ZeWu view (unit: small cun).
Figure 8. ZeWu view (unit: small cun).
Preprints 186154 g008
Figure 9. plan view (unit: small cun).
Figure 9. plan view (unit: small cun).
Preprints 186154 g009
Table 1. Length data of ruler.
Table 1. Length data of ruler.
dynasty Length ( mm ) according to
Estimated length of ruler in Yuan Dynasty 307. 2 Wu Chengluo
306 Chen Mengjia
374 Zeng Wuxiu
383. 5 Wen Renjun
371、395、412. 5 Guo Zhengzhong
275 Guo Zhengzhong
340 Yuan Mingsen
Calculated according to the official seal 338 Minimum value
356 Maximum value
348. 65 Estimated mean value
Ruler of the Ming Dynasty 317. 93 Zhu Zaiyu
319. 04 39 complete Ming banknotes in the collection of the Chinese History Museum
318 Zhu Zaiyu
320 Ming Jiajing chi, handed down through the generations
318 Early Ming shipwreck
320 Based on the above information
Ruler of the Song Dynasty 312-316 According to historical records and the research findings of previous scholars
Table 2. Usage of ruler length and architectural modulus from Tang Dynasty to Yuan Dynasty1.
Table 2. Usage of ruler length and architectural modulus from Tang Dynasty to Yuan Dynasty1.
serial number building dynasty length of ruler length of small cun vintages Architectural modulus remark
1 Hualin Temple Hall late Five Dynasties and early Song dynasty (960-1279) 299. 51mm 24. 9594mm 964 A. D. 1 chi is the base modulus, half a foot is a sub-modulus, and 0. 4 small cun is also a sub-modulus (Wang 2013)
2 Ningbo Baoguo Temple Hall the Northern Song Dynasty 287mm Not used 1013 A. D. Basic modulus 1 chi (Zhang 2012)
3 Shanxi Wanrong Jikwang Temple Hall the Northern Song Dynasty 314mm Not used 1023 A. D. Basic modulus 1 chi, expanded modulus 4 chi, 4 cun and 0. 4 cun as sub-modulus ( (Xu et al. 2016)
4 The main hall of Jincheng Erxian Temple the Northern Song Dynasty 299. 39mm 24. 95mm 1097 A. D. -1117 A. D. Basic modulus 1 chi, 4 small cun and 0. 4 small cun as sub-moduli,expanded modulus 3 chi (Shanxi Zhongde 2019)
5 Xixi Erxian Temple Rear Hall Jin Dynasty 297. 54mm 24. 71mm 1165 A. D. Basic modulus 1 chi, 4 small cun and 0. 4 small cun as sub-moduli ( (Li, Zhao, and Zheng 1998, 10)(Liu, Zhang, and Liu 2008, 125)
6 Haihui Hall of Huayan Temple Jin Dynasty 296. 313mm 24. 69mm Jin Dynasty Basic modulus 1 chi, 4 small cun and 0. 4 small cun as sub-moduli (Liang and Liu 1934, 45)
7 Shanxi Jincheng Dayang Tang Di Temple Tang Wang Hall Yuan or Mongol dynasty 316mm 26. 33mm 1344 A. D. Basic modulus 1 chi, 4 small cun and 0. 4 small cun as sub-moduli (Shanxi Zhongde 2019a)
Table 3. Main parameter projections Yingzao chi (Construction ruler).
Table 3. Main parameter projections Yingzao chi (Construction ruler).
Calculate Yingzao chi Verification of the length of the 315. 48 mm chi fitted value
mm Assuming a cun. Calculate the length of the chi convert to cun similarity ratio cun small cun 4 small cun multiplier 0. 4 small cun multiplier
Tong MianKuo 8200 260 315. 385 259. 921 100. 03% 260 312 78 780
Tong Jinshen 8340 265 314. 717 264. 359 100. 24% 265 318 79. 5 795
Central bay (facade width) 4380 140 312. 857 138. 836 100. 84% 140 168 42 420
Secondary bay (facade) 1910 60 318. 333 60. 543 99. 10% 60 72 18 180
Central bay (depth) 3560 115 309. 565 112. 844 101. 91% 115 138 34. 5 345
Front secondary bay (depth) 2870 90 318. 889 90. 972 98. 93% 90 108 27 270
Rear secondary bay (depth) 1910 60 318. 333 60. 543 99. 10% 60 72 18 180
Total height of the Damuzuo 8525 270 315. 741 270. 223 99. 92% 270 324 81 810
mean value 315. 48
Table 4. Cai (Similar to dimension lumber) of the hall.
Table 4. Cai (Similar to dimension lumber) of the hall.
The chi: 315. 48mm
Original numbe Fitting number
mm Converted to cun Converted to Small cun Small cun cun 0. 4 small cun multiplier similarity ratio
Cai of the text record. Dangcai 155 4. 913 5. 896 6 5 15 101. 77%
width of Cai 100 3. 170 3. 804 3. 6 3 9 94. 64%
Qi 60 1. 902 2. 282 2. 4 2 6 105. 16%
Zucai 215 6. 815 8. 178 8. 4 7 21 102. 71%
Cai under the Jituan (ridged purlin) Dangcai 155 4. 913 5. 896 6 5 15 101. 77%
Qi 60 1. 902 2. 282 2. 4 2 6 105. 16%
Zucai 215 6. 815 8. 178 8. 4 7 21 102. 71%
Cai for other beam nodes Dangcai 150 4. 755 5. 706 6 5 15 105. 16%
Qi 60 1. 902 2. 282 2. 4 2 6 105. 16%
Zucai 210 6. 657 7. 988 8. 4 7 21 105. 16%
Gong Width 95 3. 011 3. 614 3. 6 3 9 99. 63%
Gong Zucai 215 6. 815 8. 178 8. 4 7 21 102. 71%
Gong Dangcai 155 4. 913 5. 896 6 5 15 101. 77%
Dou mortise and tenon opening 100 3. 170 3. 804 3. 6 3 9 94. 64%
Tuan (Purlin)
and Rafter
Diameter of Tuan 230 7. 290 8. 749 8. 8 7. 333 22 100. 59%
Timu 90 2. 853 3. 423 3. 2 2. 667 8 93. 48%
Diameter of rafters 100 3. 170 3. 804 4 3. 333 10 105. 16%
Table 5. Dou.
Table 5. Dou.
The chi: 315. 48mm
Ludou (the cap block) Upper width Lower width Upper depth Lower depth Er ping Dou-qi Qi Total height
Raw number mm 290 230 290 230 80 35 70 105 185
Converted to cun 9. 192 7. 290 9. 192 7. 290 2. 536 1. 109 2. 219 3. 328 5. 864
Converted to Small cun 11. 031 8. 749 11. 031 8. 749 3. 043 1. 331 2. 663 3. 994 7. 037
fitted value Small cun 11. 2 8. 8 11. 2 8. 8 3. 2 1. 2 2. 8 4 7. 2
0. 4 small cun multiplier 28 22 28 22 8 3 7 10 18
cun 9. 333 7. 333 9. 333 7. 333 2. 667 1 2. 333 3. 333 6. 000
similarity ratio 101. 53% 100. 59% 101. 53% 100. 59% 105. 16% 90. 14% 105. 16% 100. 15% 102. 32%
Jiaohu dou Upper width Lower width Upper depth Lower depth Er ping Dou-qi Qi Total height
Raw number mm 195 155 160 120 40 20 40 60 100
Converted to cun 6. 181 4. 913 5. 072 3. 804 1. 268 0. 634 1. 268 1. 902 3. 170
Converted to Small cun 7. 417 5. 896 6. 086 4. 564 1. 521 0. 761 1. 521 2. 282 3. 804
fitted value Small cun 7. 6 6 6 4. 4 1. 6 0. 8 1. 6 2. 4 4
0. 4 small cun multiplier 19 15 15 11 4 2 4 6 10
cun 6. 333 5 5. 000 3. 667 1. 333 0. 667 1. 333 2. 000 3. 333
similarity ratio 102. 46% 101. 77% 98. 59% 96. 40% 105. 16% 105. 16% 105. 16% 105. 16% 105. 16%
Qixin Dou Upper width Lower width Upper depth Lower depth Er ping Dou-qi Qi Total height
Raw number mm 150 110 160 120 35 25 35 60 95
Converted to cun 4. 755 3. 487 5. 072 3. 804 1. 109 0. 792 1. 109 1. 902 3. 011
Converted to Small cun 5. 706 4. 184 6. 086 4. 564 1. 331 0. 951 1. 331 2. 282 3. 614
fitted value Small cun 5. 6 4 6 4. 4 1. 6 0. 8 1. 6 2. 4 3. 6
0. 4 small cun multiplier 14 10 15 11 4 2 4 6 9
cun 4. 667 3. 333 5. 000 3. 667 1. 333 0. 667 1. 333 2. 000 3. 000
similarity ratio 98. 15% 95. 60% 98. 59% 96. 40% 120. 18% 84. 13% 120. 18% 105. 16% 99. 63%
Sandou Upper width Lower width Upper depth Lower depth Er ping Dou-qi Qi Total height
Raw number mm 135 95 160 120 35 25 35 60 95
Converted to cun 4. 279 3. 011 5. 072 3. 804 1. 109 0. 792 1. 109 1. 902 3. 011
Converted to Small cun 5. 135 3. 614 6. 086 4. 564 1. 331 0. 951 1. 331 2. 282 3. 614
fitted value Small cun 5. 2 3. 6 6 4. 4 1. 6 0. 8 1. 6 2. 4 4
0. 4 small cun multiplier 13 9 15 11 4 2 4 6 10
cun 4. 333 3 5. 000 3. 667 1. 333 0. 667 1. 333 2. 000 3. 333
similarity ratio 101. 27% 99. 63% 98. 59% 96. 40% 120. 18% 84. 13% 120. 18% 105. 16% 110. 69%
Pingpan dou Upper width Lower width Upper depth Lower depth Er ping Dou-qi Qi Total height
Raw number mm 160 120 160 120 25 35 60 60
Converted to cun 5. 072 3. 804 5. 072 3. 804 0. 792 1. 109 1. 902 1. 902
Converted to Small cun 6. 086 4. 564 6. 086 4. 564 0. 951 1. 331 2. 282 2. 282
fitted value Small cun 6 4. 4 6 4. 4 0. 8 1. 6 2. 4 2. 4
0. 4 small cun multiplier 15 11 15 11 2 4 6 6
cun 5. 000 3. 667 5. 000 3. 667 0. 667 1. 333 2. 000 2. 000
similarity ratio 98. 59% 96. 40% 98. 59% 96. 40% 84. 13% 120. 18% 105. 16% 105. 16%
Table 6. Gong.
Table 6. Gong.
The chi: 315. 48mm
Original numbe Fitting number Lower width
mm Converted to cun Converted to Small cun cun Small cun 0. 4 small cun multiplier similarity ratio Small cun
Hua-gong 498 15. 785 18. 943 15. 667 18. 8 47 99. 25% 4. 4
The inner half-length of the second Hua-gong 378 11. 982 14. 378 12 14. 4 36 100. 15% 4. 4/2
nidao gong 686 21. 745 26. 094 22 26. 4 66 101. 17% 3. 6
Ling gong 620 19. 653 23. 583 20 24 60 101. 77% 3. 6
Guazi gong 420 13. 313 15. 976 13. 333 16 40 100. 15% 3. 6
Mangong 660 20. 921 25. 105 21 25. 2 63 100. 38% 3. 6
Jiaofu gong 626 19. 843 23. 811 20 24 60 100. 79% 3. 6
Inward first jump length 470 14. 898 17. 878 15 18 45 100. 69%
Inward second jump length 480 15. 215 18. 258 15 18 45 98. 59%
total internal jump 950 30. 113 36. 135 30 36 90 99. 63%
second outward jump 420 13. 313 15. 976 13. 333 16 40 100. 15%
Total external jumps (status quo) 680 21. 554 25. 865 21. 667 26 65 100. 52%
Total outside jump (recovery) 840 26. 626 31. 951 26. 667 32 80 100. 15%
Table 7. Columns.
Table 7. Columns.
The chi: 315. 48mm
Original numbe Fitting number
mm Converted to cun Converted to Small cun cun Small cun 0. 4 small cun multiplier similarity ratio
Net height of eave columns 4650 147. 394 176. 873 148. 333 178 445 100. 64%
Rear Inner column height 6390 202. 548 243. 058 202. 5 243 607. 5 99. 98%
Front Inner column height 6690 212. 058 254. 469 211. 667 254 635 99. 82%
Inner column diameter max 517 16. 388 19. 665 16. 333 19. 6 49 99. 67%
Inner column base diameter 457 14. 486 17. 383 14. 667 17. 6 44 101. 25%
Inner column head diameter 312 9. 890 11. 868 10 12 30 101. 12%
Thickness of the Ordinary Plinth Stone 150 4. 755 5. 706 5 6 15 105. 16%
ground level to the head of the columns 4820 152. 783 183. 340 153. 333 184 460 100. 36%
Table 8. Jia dao and Wu Ju (ridged purlin).
Table 8. Jia dao and Wu Ju (ridged purlin).
The chi: 315. 48mm
Original numbe Fitting number Remarks
mm Converted to cun Converted to Small cun cun Small cun 0. 4 small cun multiplier similarity ratio
high degree Column head to lower end of liao-yan-fang 1005 31. 856 38. 227 31. 667 38 95 99. 40% Status quo
Inferior cortex of liao-yan-fang to upper of the ridge 2700 85. 584 102. 701 85 102 255 99. 32% Status quo
eave columns 4820 152. 783 183. 340 153. 333 184 460 100. 36% Physical object
Column head to liao-yan-fang up 36. 667 44 110 Reasoning
Wu Ju 80 96 240 Reasoning
total height 8525 270. 223 324. 268 270 324 810 99. 92% Physical object
High of Jia dao Ji bu 810 25. 675 30. 810 25. 000 30 75 97. 37% Physical object
shang-jin bu 530 16. 800 20. 160 16. 667 20 50 99. 21%
xia-jin bu 420 13. 313 15. 976 13. 333 16 40 100. 15%
Inner half of Yanbu 430 13. 630 16. 356 13. 333 16 40 97. 82%
Outer half of Yanbu 11. 667 14 35 Reasoning
Levelling of Jia dao Ji bu 1300 41. 207 49. 448 42. 500 51 127. 5 103. 14%
shang-jin bu 960 30. 430 36. 516 30. 000 36 90 98. 59%
xia-jin bu 960 30. 430 36. 516 30. 000 36 90 98. 59%
Inner half of Yanbu 950 30. 113 36. 135 30. 000 36 90 99. 63%
outside jump of Puzuo 840 26. 626 31. 951 26. 667 32 80 100. 15%
Yan bu 1790 56. 739 68. 087 56. 667 68 170 99. 87%
Tong Jinshen 8340 264. 359 317. 231 265 318 795 100. 24%
total horizontal length 10020 317. 611 381. 134 318. 333 382 955 100. 23%
Table 9. Slope of Jia dao.
Table 9. Slope of Jia dao.
Unit: Small cun
Horizontal length Vertical Height slope Proximity ratio Similar rate Remarks
Jia dao Ji bu 51 30 0. 5882 10/17 100. 00%
shang-jin bu 36 20 0. 5556 5/9 100. 00% simple whole-number ratios
xia-jin bu 36 16 0. 4444 4/9 100. 00%
Yanbu 68 30 0. 4412 4/9 99. 26%
dividing the roof slope into two sections Ji bu+shang-jin bu 87 50 0. 5747 4/7 100. 57% simple whole-number ratios
xia-jin bu+Yanbu 104 46 0. 4423 4/9 99. 52%
Using liao-yan-fang as a benchmark Yanbu 68 30 0. 4412 4/9 99. 26% simple whole-number ratios
xia-jin bu 104 46 0. 4423 4/9 99. 52%
shang-jin bu 140 66 0. 4714 33/70 100. 00%
Ji bu 191 96 0. 5026 1/2 100. 52%
Table 10. External Parameters.
Table 10. External Parameters.
The chi: 315. 48mm
Original numbe Fitting number
mm Converted to cun Converted to Small cun cun Small cun 0. 4 small cun multiplier similarity ratio
Tong MianKuo 8200 259. 921 311. 906 260 312 780 100. 03%
Central bay (facade width) 4380 138. 836 166. 603 140 168 420 100. 84%
chu ji (Overhanging eaves) 1650 52. 301 62. 762 51. 667 62 155 98. 79%
Principal ridge (Zhengji) 7680 243. 439 292. 126 243. 333 292 730 99. 96%
Head of rafter to centre of column 2020 64. 029 76. 835 65 78 195 101. 52%
east-west rafter head distance 12240 387. 980 465. 576 390 468 1170 100. 52%
north-south rafter head distance 12380 392. 418 470. 901 395 474 1185 100. 66%
Corner Beam is flat out at a 45 degree angle from the column head 3280 103. 969 124. 762 106. 066 127. 279 102. 02%
Corner Beam flat out from the column head 2319. 310 73. 517 88. 220 75 90 225 102. 02%
East-West Corner Beam Headspace 12838. 620 406. 955 488. 346 410 492 1230 100. 75%
Tong Jinshen 8340 264. 359 317. 231 265 318 795 100. 24%
North-South Corner Beam Headspace 12978. 62 411. 393 493. 671 415 498 1245 100. 88%
total height 8520 270. 065 324. 078 270 324 810 99. 98%
Disclaimer/Publisher’s Note: The statements, opinions and data contained in all publications are solely those of the individual author(s) and contributor(s) and not of MDPI and/or the editor(s). MDPI and/or the editor(s) disclaim responsibility for any injury to people or property resulting from any ideas, methods, instructions or products referred to in the content.
Copyright: This open access article is published under a Creative Commons CC BY 4.0 license, which permit the free download, distribution, and reuse, provided that the author and preprint are cited in any reuse.
Prerpints.org logo

Preprints.org is a free preprint server supported by MDPI in Basel, Switzerland.

Subscribe

Disclaimer

Terms of Use

Privacy Policy

Privacy Settings

© 2026 MDPI (Basel, Switzerland) unless otherwise stated