Submitted:
20 September 2024
Posted:
20 September 2024
You are already at the latest version
Abstract

Keywords:
1. Introduction
1.1. Historical Evolution of Mosques
- Avoiding cutting off rows by excessive number of columns or walls and eliminating view restrictions [15] (pp. 7) and [6] (pp. 13554).It is confirmed by Hadiths of the Prophet (PBUH) as follows: “…Whoever joins up a row, he will be joined to Allah; and whoever cuts off a row, he will be cut off from Allah”[31] (pp. Hadith 101).
- Use plan forms allowing longer rows, especially the first row [15] (pp. 7). This is due to the virtue of the first row which is confirmed by Hadiths of the Prophet (PBUH) such as follows: “If people came to know the blessing of calling Adhan and the standing in the first row, they could do nothing but would draw lots to secure these privileges” [31] (pp. Hadith 93).
- Using the recognizable form as a mosque. Incorporating symbolic features into new mosque designs maintains cultural continuity and fosters a sense of Islamic identity within communities. Fethi [29] (pp. 54 & 60) introduced these symbolic features as minarets, domes, arches, vaults, and decorative elements. They hold deep symbolic meaning rooted in Islamic tradition and contribute to the aesthetic harmony of mosque architecture. By respecting tradition and honoring past generations, new mosque designs can create a spiritually conducive atmosphere while also embracing environmentally sustainable practices.
1.2. Contemporary Mosques
- a)
- Simplified geometric shapes: Modern architecture often features basic geometric forms like rectangles, squares, and circles. Emphasizing simplicity and abstraction, this style is epitomized by Mies van der Rohe’s slogan “Less is more” [34]. It rejects traditional aesthetics in favor of innovative creativity, focusing on simplicity, abstraction, and rational solutions to location, purpose, and technological challenges [35].
- b)
- c)
- Emphasis on function over form: Modern architecture prioritizes functionality, designing buildings to serve specific purposes. This approach centers on human usability, encapsulated by L. Sullivan’s slogan “Form follows function” [34].
- d)
- Minimalist design: Modern architecture features a minimalist aesthetic with clean lines, simple surfaces, and no ornamentation [36]. It prioritizes simplicity, pure material colors, and natural textures for decoration. This approach, which is epitomized by Adolf Loos’ slogan “Decoration is a crime”, reflects the Chicago school’s use of cladding for decoration [34].
- e)
- Open floor plans: Modern buildings often feature open floor plans with large, flexible areas for various activities. This style, characterized by the release of external walls from load-bearing functions, allows for a ‘free plan’ where interior walls can be arranged as needed [35] (pp. 13).
- f)
- Emphasis on natural light: Modern buildings often make use of natural light, with large windows and skylights that provide daylight and reduce the need for artificial lighting [35] (pp. 8).
- g)
- Flat roofs: The adoption of flat roofs became a feature of modern architecture, driven by a desire to align architectural form with evolving needs, materials, and industrial techniques [36].
- h)
- Extroverted building: Modern buildings became extroverted, featuring open floor plans and large external windows to align with the extrovert paradigm of modern capital society [37].
2. Materials and Methods
- Data collection: A data-sheet was developed for field surveys to gather qualitative, quantitative, and graphic data from 23 selected contemporary mosques constructed within the last three decades, predominantly in Sulaymaniyah. The collected data encompassed information such as location, construction date, architect, geometric properties, floor plans, and photographs, which were subsequently refined and organized.
- Based on the previous studies, relevant indicators of modern architectural style for contemporary mosques in Sulaymaniyah were identified. The identified indicators that can be involved in the study are simplified geometric shapes, use of new technology, minimalism, open floor plans, emphasis on natural light, flat roofs, and extroverted design. Then, they were weighted based on the opinion of experts in architecture to gauge the degree of modernity in the selected mosques.
-
Based on Quran, Hadith of Prophet Mohammed (PBOH), and previous studies, key mosque design objectives and requirements were identified in order to be involved in the study. These objectives were specifically aligned with the Sunni Madhab (Shafi’i), reflecting the dominant religious practice in the region. The followings are the objectives and requirements of mosque design that might be affected by modern architecture style:
- Avoiding cutting off rows by numerous columns or walls and eliminating view restrictions (expanding the naves)
- The use of plan forms that allow for longer rows especially the first row (rectangular shape musalla with long Qibla wall)
- Providing a quiet environment for concentration, reverence, and piety during prayer (Tranquility)
- Avoiding over-decoration that may interrupt prayers (Reducing Embellishments)
- Using the recognizable form as a mosque (Using symbolic mosque elements which are dome, minaret, sahn, arcade, mihrab, minbar, calligraphy, water features, gateway, mosaics and artworks). Then, they were weighted based on opinion of experts in Islamic architecture to ascertain the degree of symbolism in the examined mosques.
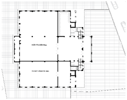
- Graphical analysis was used to determine the modernity degree of the mosques based on key indicators of modern architectural style. Specific tools, methods, and equations were employed for each indicator, using checklists for components and geometric calculations where needed. Numerical values were converted to indices using statistical equations to simplify and condense the data, aiding in comparisons and trend identification. Then, the achieved design objectives in the selected mosques were also calculated as numerical indicators and converted to indices. An example of this graphical analysis is illustrated with the Rayyan mosque (Figure 2).
R = AMG / AM
Y = AM / N
Z = LQ / D
IEI = ((No. of back entrances - No. of front & side entrances) + 4) / 6
- 5.
- Pearson Correlation Coefficient was used to assess the correlation between mosque design objectives and the impact of modern architecture indicators. The coefficient ranges from -1 (perfect negative correlation) to 1 (perfect positive correlation), with 0 indicating no correlation. The significance level (alpha) is set at 0.1. A p-value less than 0.1 indicates statistical significance, suggesting the null hypothesis can be rejected. A p-value greater than 0.1 indicates no statistical significance, so the null hypothesis is not rejected. The alpha is set at 0.1 due to the limited sample size, as smaller samples are less likely to represent the whole group accurately.
Case Study
- Contemporary design reflecting modern architectural styles.
- Built within the last three decades (1993-2023).
- Designed by an architect or architectural firm.
- Constructed under the supervision of an engineer.
- Building area between 300m² to 3,000m².
- Musalla area between 150m² to 1,500m².
3. Results and Discussions
4. Conclusions
Appendix A
| No | Mosque Name | IM | INE | IMP | ISE | IT | IRE | Exterior Photo | Interior Photo | Floor Plan |
| 1 | Imam Bukhari Mosque | 0.32 | 0.07 | 0.42 | 0.65 | 0.72 | 0.19 | ![]() |
![]() |
![]() |
| 2 | Zanko Mosque | 0.33 | 0.07 | 0.85 | 0.80 | 0.86 | 0.25 | ![]() |
![]() |
![]() |
| 3 | Ahmed Haji Ali Mosque | 0.33 | 0.35 | 0.47 | 0.95 | 0.99 | 0.19 | ![]() |
![]() |
![]() |
| 4 | Haji Mhamadi Kollak | 0.34 | 0.35 | 0.02 | 0.87 | 0.60 | 0.38 | ![]() |
![]() |
![]() |
| 5 | Sardar Rabati Mosque | 0.35 | 0.24 | 0.19 | 0.87 | 0.47 | 0.06 | ![]() |
![]() |
![]() |
| 6 | Sheikh Tayib Qaiwani Mosque | 0.36 | 0.68 | 0.48 | 0.74 | 0.88 | 0.19 | ![]() |
![]() |
![]() |
| 7 | Othmani Sarraf | 0.37 | 0.03 | 1.00 | 0.59 | 1.00 | 0.44 | ![]() |
![]() |
![]() |
| 8 | Barlut Mosque | 0.40 | 0.96 | 0.09 | 0.57 | 0.92 | 0.31 | ![]() |
![]() |
![]() |
| 9 | Mala Salih Zirgwezi | 0.41 | 0.51 | 0.52 | 0.87 | 0.84 | 0.38 | ![]() |
![]() |
|
| 10 | Qaiwan Mosque | 0.41 | 0.57 | 0.48 | 0.65 | 0.98 | 0.50 | ![]() |
![]() |
![]() |
| 11 | Hijrat | 0.43 | 0.02 | 0.50 | 0.48 | 0.82 | 0.75 | ![]() |
![]() |
![]() |
| 12 | Qazi Muhamed Mosque | 0.43 | 0.03 | 0.36 | 0.59 | 0.73 | 0.94 | ![]() |
![]() |
![]() |
| 13 | Abubakir Musanif | 0.43 | 0.11 | 0.42 | 0.74 | 0.71 | 0.13 | ![]() |
![]() |
![]() |
| 14 | Sheikh-Abdulaqadir Gailani Mosque | 0.47 | 0.08 | 0.53 | 0.54 | 0.94 | 0.31 | ![]() |
![]() |
![]() |
| 15 | Sharbazher Mosque | 0.47 | 0.01 | 0.34 | 0.81 | 0.71 | 0.31 | ![]() |
![]() |
![]() |
| 16 | Rayyan Mosque | 0.48 | 0.05 | 0.32 | 0.80 | 0.76 | 0.50 | ![]() |
![]() |
![]() |
| 17 | Kurdistan | 0.49 | 0.05 | 0.35 | 0.65 | 0.76 | 0.69 | ![]() |
![]() |
![]() |
| 18 | Dar Alsalam | 0.49 | 0.00 | 0.08 | 0.87 | 0.80 | 0.13 | ![]() |
![]() |
![]() |
| 19 | Hussainiya | 0.49 | 0.02 | 0.00 | 0.87 | 0.47 | 0.38 | ![]() |
![]() |
![]() |
| 20 | Sayid Nizameddin Mosque | 0.51 | 0.05 | 0.96 | 0.62 | 0.94 | 0.63 | ![]() |
![]() |
![]() |
| 21 | Ali Naji Mosque | 0.54 | 0.31 | 0.15 | 0.52 | 0.90 | 0.63 | ![]() |
![]() |
![]() |
| 22 | University of Sulaimani Mosque | 0.57 | 0.04 | 0.35 | 0.36 | 0.90 | 1.00 | ![]() |
![]() |
|
| 23 | Dayk Mosque | 0.59 | 0.03 | 0.36 | 0.54 | 0.72 | 1.00 | ![]() |
![]() |
![]() |
References
- AL-Ammar, A. A., & AL-Atabey, M. S. (2022). The effect of technology on achieving contemporary levels in the space of Arab Islamic architecture “Mosques is a case study”. 27(1), 68-102. Retrieved from https://jpd.uobaghdad.edu.iq/index.php/jpd/article/view/339/248.
- Toorabally, M. F., Sieng, C. H., Norman, H. F., & Razalli, Z. B. (2016). Impact of Modern Technologies on Islamic Architecture in Malaysia and Middle East. Nova Journal of Engineering and Applied Sciences, 5(1), 1-22. [CrossRef]
- Niknam, M., Rezaei, S., & Zehtaban, M. H. (2020). Study of the Impact of Contemporary Architecture on Islamic Motifs (or Geometric Patterns) in Mosques. International Journal of Engineering and Technology (IJET), 12(5), 569-576. [CrossRef]
- Ra’ouf, Z. H., & Al-Muqram, A. M. (2017, November). Factors affected trends of Contemporary Mosques Architecture. Journal of Engineering, 23(11), 1-29. [CrossRef]
- Al Tal, R. S. (2016). The Impact of Modern Architectural Trends on the Mosque Form. The Jordanian Journal of the Arts, 9(2), 97-106.
- Hoteit, A. (2015). Contemporary architectural trends and their impact on the symbolic and spiritual function of the mosque. International Journal of Current Research, 7(3), 13547-13558. Retrieved 06 01, 2022, from https://www.academia.edu/11782905/Contemporary_architectural_trends_and_their_impact_on_the_symbolic_and_spiritual_function_of_the_mosque?from=cover_page.
- Mahdavinejad, M. (2015). Mosque Design Patterns in Contemporary Architecture. Journal of Researches in Islamic Architecture, 2(4), 1-15.
- Hamzehnejad, M., & Amirabadi Farahani, M. (2021). An Analysis of the Originality of Contemporary Mosques in the Islamic World. Naqshejahan- Basic studies and New Technologies of Architecture and Planning, 10(4), 305-316.
- Awad, J. (2021). The current trends in mosque architecture in the northern cities of the United Arab Emirates (UAE). Archnet-IJAR, 15(3), 854-871. [CrossRef]
- Mahmoud, S., & Abobakr, A.-S. (2021). Modern Trends in Mosques Architecture. 5th Annual Memaryat International Conference: Masjid Architecture: Form and Meaning, (pp. 1-5). Jeddah.
- Al-Bukhari, I. N., Alsabban, R. F., & Shehata, A. M. (2020). Characterization Framework of Contemporary Mosques in Islamic Cities. Journal of Engineering, Computing and Architecture, 10(1).
- Alkhaled, Z. (2019). Contemporary Mosques Conventional and Innovative Approach in Mosque design at Turkey. Journal of Design Studio, 1(1), 37-41.
- Alhefnawy, M., & Istanbouli, M. J. (2016). Contemporary Mosques Between Form and Content A Comparative Analysis of the Italian Practice. Proceedings of The First International Conference on Mosque Architecture, (pp. 373-400). Dammam.
- Toman, A. R. (2015). The Evolution of Interior Elements of the Contemporary Mosque, Compared with the Mosque of the Messenger of Allah (PBUH), and their Impact on the Design Phase: Riyadh City as a Case Study. Journal of King Abdulaziz University-Environmental Design Sciences, 9(1), 35-68. Retrieved 8 19, 2021, from https://marz.kau.edu.sa/Files/320/Researches/68057_39563.pdf.
- Asfour, O. S. (2018). Mosque Architecture between the Past and the Present: A Critical Review. The Digital Platform for Islamic Arts and Architecture, 1-11. Retrieved 09 16, 2022, from http://isaa.aaciaegypt.com/xmlui/handle/123456789/2002.
- Mustafa, F. A., & Rashid, S. J. (2019). Studying the Human Scale and Proportionality of Mosque Buildings Some Selected Case Studies in Erbil City. Journal of Islamic Architecture, 5(3), 129-136. [CrossRef]
- Abdulhamid, N. J., Qadir, V. S., & Ali, A. S. (2016). Evaluation of the Prayer Hall Proportions for Masjids in Erbil City: The Masjids Built between “1980-1989” and “2000-2015” as Case Study. ZANCO Journal of Pure and Applied Sciences, 28(2), 449-461.
- Mustafa, F. A., & Ismael, Z. K. (2019). A Typological Study of the Historical Mosques in Erbil City. Sulaimani Journal for Engineering Sciences, 6(3), 11-28. [CrossRef]
- Qaradaghi, A. M., & Qadir, V. S. (2015). The Influence of Society’s Cultural Aspects on Mosques’ Architectural Symbolism: The Mosques Built Between “1970-1990” in Erbil city as Case study. Sulaimania Journal for Engineering Sciences, 2(2), 13-26. [CrossRef]
- Sadiq, C. J. (2014). The impact of architectural Conservation acts in the sustainability of buildings - The Great Mosque in Dohuk as a case study. Sulaimani Journal for Engineering Sciences, 1(2), 9-22. [CrossRef]
- Qaradaghi, A. M. (2011). The Effect of the Natural and Cultural Environments Factors on the Architectural and Planning Characteristics of Sulaymaniyah Mosques. Journal of Planner and Development, 16(1), 1-18.
- Hillenbrand, R. (2000). Islamic Architecture: Form, Function and Meaning. Edinburgh: Edinburgh University Press.
- Imamuddin, A. H., Hassan, S. A., & Sarkar, D. (1985). Community Mosque - A Symbol of Society. In R. Powell (Ed.), Exploring Architecture in Islamic Culture 2 (pp. 60-69). Geneva: Concept Media Pte Ltd., Singapore.
- Mohamad Rasdi, M. T. (2007). Mosque Architecture in Malaysia: Classification of Styles and Possible Influence. Journal Alam Bina, 9(3), 1-37. Retrieved 05 01, 2022, from http://eprints.utm.my/id/eprint/1780/.
- Yeomans, R. (2006). The Art and Architecture in Islamic Cairo (1st ed.). (E. Hawker, & A. Hines, Eds.) Reading: Garnet Publishing Limited.
- Behrens-Abouseif, D. (1998). Islamic Architecture In Cairo: An Introduction. Cairo: The American University in Cairo Press. [CrossRef]
- Freely, J. (2011). A History of Ottoman Architecture. Southampton, Boston: Wit Press.
- Ahmed, S. (2016). Mosque Architecture or Architecture of Mosque-A New Notions of Bengal During the Musli Rule. Journal of Islamic Architecture, 4(1), 1-13. [CrossRef]
- Fethi, I. (1985). The Mosque Today. In S. Cantacuzino (Ed.), Architecture in Continuity (pp. 53-63). New York: Aperture. Retrieved from https://www.archnet.org/publications/3721.
- Saniei, M., & Delavar, A. (2012). Communicational Role of Mosques Architecture. Asian Social Science, 8(3), 137-141. [CrossRef]
- An-Nawawi, Y. i. (n.d.). The Book of Virtues. Retrieved from Sunnah.com: https://sunnah.com/riyadussalihin/8.
- Itani, T. (2012). Quran English Translation: Clear, Pure, Easy to Read Modern English. Beirut. Retrieved December 4, 2023, from https://m.clearquran.com/downloads/quran-english-translation-clearquran-edition-allah.pdf.
- Al-Asqalani, A.-H. I. (n.d.). The Book of Prayer. Retrieved from Sunnah.com: https://sunnah.com/bulugh/2.
- Tandon, M., & Bano, F. (2023, June). Comparative Critical Analysis of Modern Architectural Styles. Indian Journal of Natural Sciences, 14(78), 57095-57106. Retrieved 2023, from https://www.researchgate.net/publication/372236160_Comparative_Critical_Analysis_of_Modern_Architectural_Styles.
- Tobolczyk, M. (2021). Contemporary Architecture: The Genesis and Characteristics of Leading Trends. Cambridge: Cambridge Scholars Publishing.
- Urbanik, J., & Tomaszewicz, A. (2014). Flat Roof - Advantage or Disadvantage of Modern Movement Buildings. 9th International Conference on Structural Analysis of Historical Constructions. Mexico City. Retrieved from https://www.researchgate.net/publication/343294962_Flat_Roof_-_Advantage_or_Disadvantage_of_Modern_Movement_Buildings.
- Hache, J. (2022). Introvert Architecture. M. Arch Thesis, Ryerson University, Toronto. Retrieved from https://issuu.com/jackhache/docs/02r_hachejackthesis2022.
- Reed, M. S., Ferré, M., Martin-Ortega, J., Blanche, R., Lawford-Rolfe, R., Dallimer, M., & Holden, J. (2021, May). Evaluating impact from research: A methodological framework. Research Policy, 50(4), 1-14. [CrossRef]













![]() |
![]() |
![]() |
![]() |
![]() |
Disclaimer/Publisher’s Note: The statements, opinions and data contained in all publications are solely those of the individual author(s) and contributor(s) and not of MDPI and/or the editor(s). MDPI and/or the editor(s) disclaim responsibility for any injury to people or property resulting from any ideas, methods, instructions or products referred to in the content. |
© 2024 by the authors. Licensee MDPI, Basel, Switzerland. This article is an open access article distributed under the terms and conditions of the Creative Commons Attribution (CC BY) license (http://creativecommons.org/licenses/by/4.0/).








































































