Preprint
Article

This version is not peer-reviewed.

Analyzing Traditional Building Materials: A Case Study on Repair Practices in Konuralp, Düzce-Türkiye

A peer-reviewed article of this preprint also exists.

Submitted:

31 July 2024

Posted:

02 August 2024

You are already at the latest version

Abstract
Some wrong decisions and faulty practices applied during the repair and restoration of traditional buildings cause more damage to the structures due to the materials used in the repair. In this study, brick, mortar, plaster, and wood samples were taken from one registered building in the Konuralp neighborhood of Düzce Province, which has survived to the present day by preserving its original structural features and reflecting the characteristics of traditional housing. Texture, chemical and petrographic analyses were carried out on the samples. In line with these analyses, a scientific basis was created for selecting material properties in the repair and reuse processes of traditional buildings, and suggestions are made for the analysis of materials specific to traditional buildings in Konuralp.
Keywords: 
;  ;  ;  ;  

1. Introduction

Cultural heritage symbolizes the continuity of the elements of a culture that make up a society. The transfer of cultural heritage, which cannot be renewed or reproduced, to future generations is a social responsibility. Architectural heritage includes all buildings and building groups that need to be protected according to holistic conservation legislation, with various scales and unique values [1].
Our traditional buildings, which are part of our cultural architectural heritage and have value, were built in different parts of Anatolia with varying construction systems and material properties. Despite conservation approaches, structural damages to traditional buildings over time and repairs made with inappropriate methods and materials have caused problems. For this reason, our traditional cultural heritage, which cannot be reproduced, is struggling to exist in every corner of Anatolia. However, its sustainability can be ensured through transformation and appropriate conservation policies.
It is important to prevent damages that may occur in buildings due to incorrect material selection in conservation and repair, to determine the chemical, physical, and mechanical properties of the original materials of the building, and to ensure structural and cultural continuity by producing the material to be used in repair according to the results of the analysis [2]. Arslan et al. (2015) examined an ancient theater and the registered buildings around it within the boundaries of the Düzce Konuralp Çiftepinarlar neighborhood, which is within the boundaries of a Grade I archaeological protected area. They concluded that the historical texture around the theater has preserved its existence in the street and ground texture. However, new constructions built using reinforced concrete have had a negative impact on the wooden frame–half-timber construction technique, which is the general characteristic of the settlement [3]. Tuna (2014) presented a holistic conservation approach within the framework of the Düzce Konuralp archaeological park, integrated with the existing protected area of the surrounding buildings in a social, cultural, and commercial environment [4].
Various studies have been carried out to define the properties of traditional and historical building materials and to contribute to the reproduction of these materials. Karabulut (2018) documented the compatibility of some building materials with the standards in light of the scientific data by applying physical, mechanical, and chemical analyses to samples of interior plaster, exterior plaster, and stone from traditional houses in the Trabzon Akçaabat Orta neighborhood in the Eastern Black Sea Region [5]. Koç (2019) investigated the system and material properties of the buildings of a settlement to document the structural features of the Bursa Gölyazi Region. Physical, mechanical, and chemical analyses were performed on brick, mortar, wood, and stone samples taken from the selected buildings, and comparative results of the samples were shared [6].
While new building materials are produced by determining the structural properties of materials, studies that have enabled the production of materials by using additives compatible with raw materials have also been carried out. Acting with this understanding, Çağlar (2018) aimed to improve the properties of a blended brick used as exterior wall-filling material in Kastamonu traditional houses, which were slated for demolition. As a result of the study, it was determined that a boron waste additive can be used in the production of blended bricks [7]. Şahin (2017) conducted comprehensive analyses of brick, mortar, and plaster samples of buildings from different periods to determine the characterization of the bricks used in the construction of the 19th century Bab-i Seraskeri Hospital (Istanbul University Faculty of Political Sciences), together with its restoration and intervention in different periods. The test results concluded that the samples used in different periods showed different physical and mechanical properties, and their mineralogical structures differed [8]. In another study conducted by Sayin (2016) on mortar, plaster, and wood materials belonging to the same building, chemical and mineralogical analyses were performed. The wood samples were identified via petrographic analysis. Protein–oil activity tests and water-soluble salts of mortars and plasters were analyzed. The acid loss, ignition loss, petrographic analyses, and binder–aggregate definitions and contents were determined, and recommendations were made for materials to be used in the repair [9]. In the study conducted by Akbulut Ekşi (2006) on investigating the compatibility of lime mortars used in the rehabilitation of historical buildings, with mortars created using original materials in the building, recommendations were given for the selection of mortars to use two different aggregate types, silica-based sand and brick crumb, and to use materials with pozzolanic properties, such as lime, silica fume, fly ash, slag, and brick dust, as binders [10]. Gür (2019) investigated the feasibility of producing pozzolan-added hydraulic lime-based mortar for repair in historical buildings. It was concluded that the samples produced gave different results in different pozzolan types, and the repair mortars produced showed similar physical properties to the original building materials [11]. In one study, Ozgunler and Ozgunler (2011) investigated the usability of traditional lime-based mortars by reproducing them with local materials to be used in the repair of historical buildings. A repair mortar with added pozzolan was produced, and it was concluded that its properties were similar to those of the original mortars [12].
In the present study, material samples were taken from the traditional building belonging to the plot numbered 1766 on Kaleler Street in the Konuralp neighborhood of Düzce Province, which has survived to the present day by preserving its original structural features. Chemical and petrographic analyses were carried out on the samples, and the data obtained can be used to guide the selection of material properties for the repair and reuse processes of buildings and can contribute to the scientific framework.

2. Materials and Methods

2.1. Material

The building on the plot numbered 1766 in the Konuralp neighborhood of Düzce is located within the boundaries of an area declared a Grade 2 archaeological site by the Kocaeli Regional Board for the Protection of Cultural Assets, dated 13 March 2013 and numbered 889. The building on the plot in the Çifte Pinarlar location of Konuralp is registered as a Group 2 cultural asset by the same board, dated 30 September 2015 and numbered 2221. A visual of the location of the plot in question is shown in Figure 1.

2.1.1. Building with Plot Number 1766

The Konuralp Central Mosque is located to the southeast of the building, and the Prusias ad Hypium Ancient Theater is located to the northeast. The house, consisting of two floors, the ground floor and the first floor, was built with a wooden roof system, and wood was used as the filling material. Adobe was used as the filling mortar between the timbers. Paint was applied over mud plaster on the interior and exterior walls. A general view and a bird’s eye view of the building and its site plan are given in Figure 2.

2.1.2. Samples Taken from Plot 1766

The general structure of the building consists of wooden filling between wooden frames. Filling mortar was used as the binder in the parts built with filling wood. Filling mortar between timbers was taken from the eastern façade of the building, exterior plaster from the northern façade, and interior plaster from the interior. The samples taken are shown in Figure 3.
In traditional Turkish houses, there are often areas called loaders/built-in wardrobes next to the stoves, which are usually located in the rooms. These built-in wardrobes were included in planning during construction. Samples were taken from the building to determine the type of wood used in the wardrobe of one of the rooms. The stone base of the building is not high enough, which caused the floor covering to be built too close to the ground, and in some places, the floor coverings have collapsed and rotted. A floor covering sample was taken from one room of the building to determine its type. The wood samples are shown in Figure 4.
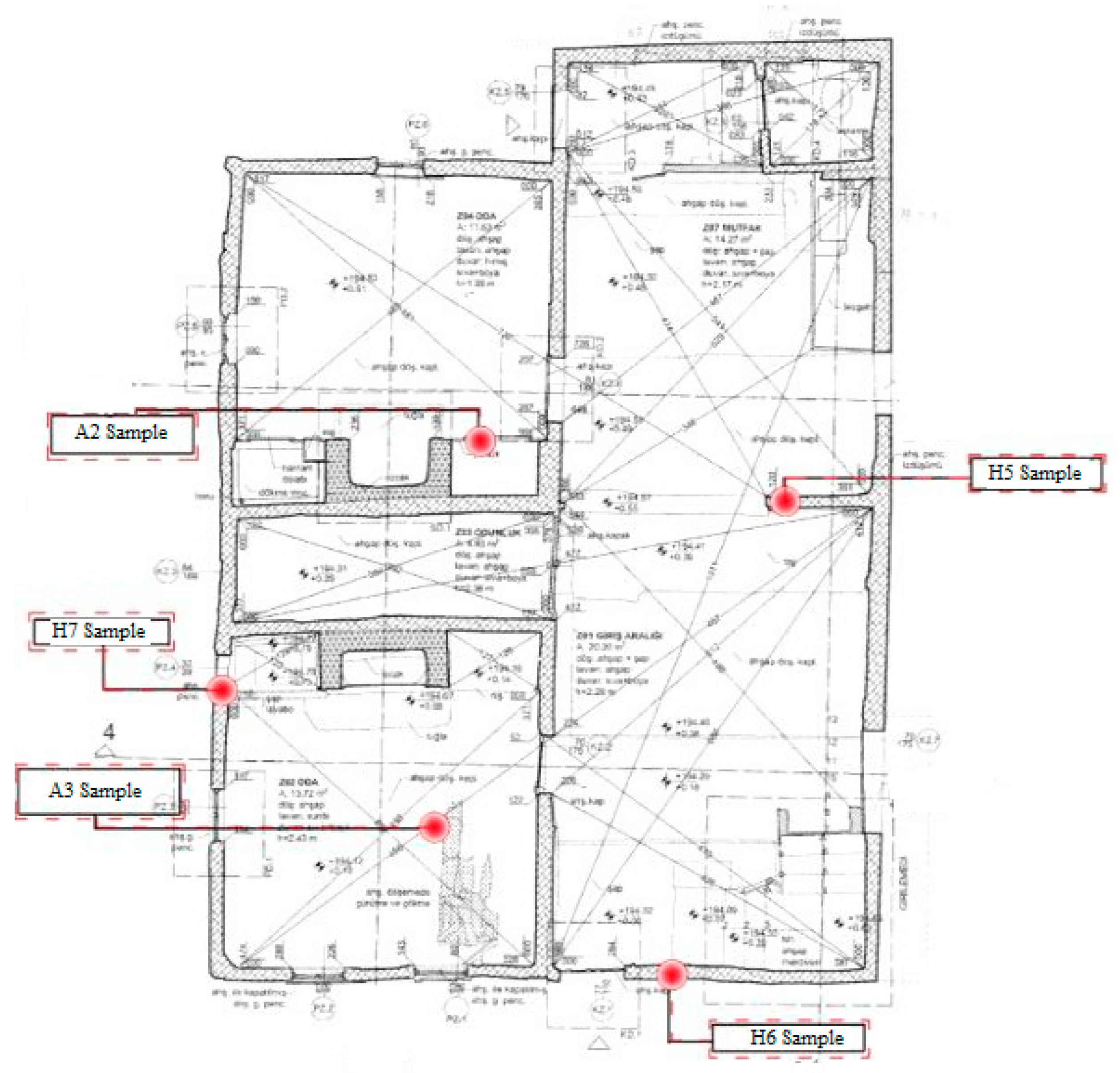
In order to proceed systematically during the sample collection and to record the locations of the samples taken, survey drawings of the building obtained from the Düzce Municipality [13] were used. Figure 5 shows the ground floor sampling sheets.
The descriptions and coding systems of the samples taken from the structure and the list showing the structure to which they belong are given in Table 1.

2.2. Method

Mortar, interior plaster, exterior plaster, and wood samples were taken from the registered buildings located in the Konuralp Neighborhood in Düzce-Türkiye. Within the scope of the analysis, acid loss, ignition loss, sieve analysis (with 5000 μ, 2500 μ, 1000 μ, 500 μ, 250 μ, 125 μ, and 63 μ sieves), protein–oil tests, and salt tests were performed on the mortar and plaster samples. Petrographic analysis of the samples, of which thin and thick sections were prepared, was performed with a stereo microscope and a polarizing microscope to identify the aggregates and minerals and determine their textural properties. Macroscopic and microscopic examinations of the materials for petrographic analysis were carried out in accordance with the TS EN 12407 [14] and TS EN 12440 [15] standards. Section preparation for the petrographic examination of the samples was carried out using the METKON GEOFORM section preparation device. Stereomicroscope imaging was performed with a Nikon SMZ 800 microscope and a TOUPCAM E3ISPM20000KPA camera integrated into the microscope. Polarizing microscope imaging was performed with a Nikon Eclipse Ci-POL microscope and an Imaging Source DFK NME33UX265 camera integrated into the microscope. Sample preparation for the wood species determination was carried out with LEICA SM 2400 microtome, and imaging was performed with the Zen/Zencore program using a Carl Zeiss AxioscopeA1 microscope and a Carl Zeiss Microimaging Axiocam HRC camera integrated into the microscope. Chemical, petrographic, and SEM-EDS (EDX) analyses of the mortars and plasters and species identification analyses of the wood materials were performed in the Restoration and Conservation Laboratory according to in-house methods as specified by the Istanbul Metropolitan Municipality, Department of Cultural Assets, Directorate of Conservation Implementation and Inspection (KUDEB, 2009) [16]. The physical tests of the brick samples were performed at the Materials Laboratory of the Civil Engineering Department of Düzce University.

3. Findings and Discussion

3.1. Chemical Analysis

Ignition loss, acid loss, sieve analysis after acid loss, salt tests, and protein–oil tests were performed on mortar and plaster samples taken from both buildings. The ignition and acid loss results are given in Table 2 and Table 3, respectively, and the sieve analysis results are presented in Figure 6.
The weight losses at 105 °C ranged from 2.56% to 3.04%. The results show that all samples contained a small amount of moisture. When the weight losses at 550 °C were analyzed, it was determined that the samples contained relative water and organic additives in the range of 5.13% to 5.53%. According to the ignition loss at 1050 °C, it was determined that the amount of CaCO3 in the H6 mortar was due to the hydrated reinforcement in the soil mortar.
When the acid loss and sieve analysis results were analyzed, the binder–aggregate ratios of samples H5 and H7 belonging to the building numbered 1766 were determined to be 1:6–7; the ratio of sample H6 was 1:5.
The results of the analysis of the water-soluble salts and the conductivity measurements of the mortars and plasters, as well as the results of the protein and fat tests, are given in Table 4. As a result of the salt tests performed on the mortars and plasters, no serious salinization problem was determined, but a small amount of chlorine was detected in sample H5. While the conductivity values of the samples and salt tests were similar, it is thought that the conductivity value of sample H6 may have been due to another salt whose conductivity value was not determined. When the protein and oil test results were analyzed, no oil was determined in any of the mortar and plaster samples, while the presence of protein was detected in all samples. The presence of protein in the samples refers to organic additives, such as egg whites, to improve the properties of the mortar and strengthen its binding properties. Such additives reduce the brittle structure of the mortar and increase its plasticity [17].

3.2. Petrographic Analysis

Thick and Thin Section Analyses

Sample H5, taken from the ground floor interior partition wall of the building numbered 1766, was a brown-colored, weak plaster sample with abundant fibers, and its binder was determined to be 5–10% hydrated lime-reinforced abundant clay soil. Approximately 3–5% of the sample aggregates were ash, 3–5% were carbonated rock fragments, and all the remaining aggregates were abundant clay soil formed by the decomposition of potassium-based feldspars. The minerals were mainly quartz, feldspar, and small amounts of mica and amphibole. It was determined that 8–10 kg of fiber was used per cubic meter of mortar. Stereomicroscope and polarizing microscope images of the sample are shown in Figure 7.
Sample H6, taken from the ground floor east façade of the building numbered 1766, was a brown-colored, weakly structured exterior plaster sample with abundant fibers and white masses, and its binder was determined to be 15–20% hydrated lime-reinforced abundant clay soil. Approximately 3–5% of the sample aggregates were ash, 3–5% were limestone and marble fragments, and 1–2% were brick crumb particles in the mortar content as impurities, and all the remaining aggregates were abundant clay soil of terrestrial origin formed as a result of the decomposition of potassium-based feldspars. The minerals were mainly quartz, feldspar, and a small amount of mica. It was determined that 2–2.5 kg of fiber was used per cubic meter of mortar. Stereomicroscope and polarizing microscope images of the sample are shown in Figure 8.
Sample H7, taken from the ground floor south façade of the building numbered 1766, was a brown-colored, dispersed mortar sample containing sand aggregates, white masses and a small number of fibers, and its binder was determined to be 10–15% hydrated lime-reinforced abundant clay soil. Approximately 5–8% of the sample aggregates were ash, 2–3% were carbonated rock particles, and the remaining aggregates were all terrestrial abundant clay soil formed as a result of the decomposition of potassium-based feldspars. The minerals were mainly quartz, feldspar, and a small amount of amphibole. Fiber fragments were detected in the sample. Stereomicroscope and polarizing microscope images of the sample are given in Figure 9.

3.3. SEM-EDS (EDX) Analyses

Mortar Analysis

With SEM-EDX analysis, SEM images were taken from the binder parts of the mortar samples, and EDX analyses were performed on the marked areas of these images. The SEM images and EDX analysis elements and oxide ratios of samples H5, H6, and H7 are shown in Figure 10.
As shown in Figure 9, the binder of the H5 plaster mortar sample was calcium carbonate of lime origin at about 5–10%, and 90–95% was abundant clay soil of terrestrial origin formed by the decomposition of potassium-based feldspars. The sample contained 57.37% silicon from clay and lesser amounts of aluminum, iron, calcium, potassium, magnesium, sodium, and titanium. The binder of the H6 plaster mortar sample was calcium carbonate originating from lime in the range of approximately 8–10%, and 90–92% was abundant clay soil of terrestrial origin consisting of decomposition of potassium-based feldspars. The sample was determined to contain 57.67% silicon from clay and aluminum, iron, calcium, potassium, magnesium, sodium, and titanium in smaller amounts than this element. The binder of the H7 filling mortar sample was calcium carbonate of lime origin in the range of approximately 10–15%, and 85% was abundant clay soil of terrestrial origin formed by the decomposition of potassium-based feldspars. The sample contained 53.85% silicon from clay and smaller amounts of aluminum, calcium, iron, potassium, magnesium, titanium, and sodium.
According to the results of the SEM-EDX analysis, mortars H3, H5, H6, and H7 had very high silica content due to the high clay content.

3.4. Species Analysis of Wood

The cross-sectional properties of sample A2, a fungal-damaged wood sample with a white paint layer from the cabinet part of building numbered 1766, were examined (Figure 11). It was observed that the annual ring boundaries were clear, the transition from spring wood to summer wood was rapid, and resin channels were present in its structure. In the radial section characteristics, it was observed that the marginal passages on the radial walls of the longitudinal tracheids were single-row, the medullary rays were heterogeneous, and the tracheid cell walls were coarsely toothed. It was also observed that the meeting place passages were of a large window type. In the tangential section characteristics, it was determined that the medullary rays were mostly 1–12 cells high. As a result of the macroscopic and microscopic examinations, the genus of the A2 sample taken from the cabinet joinery was determined to be yellow pine (Pinus sylvestris L.).
The cross-sectional properties of sample A3, a wood sample taken from the floor covering of building 1766, which has no paint layer and has been damaged by fungus and insects, were examined (Figure 12). It was observed that the annual ring boundaries were clear, the transition from spring wood to summer wood was rapid, and resin channels were present in its structure. In the radial section characteristics, it was observed that the marginal passages on the radial walls of the longitudinal tracheid cells were single-row, the medullary rays were heterogeneous, and the walls of the tracheids were coarsely toothed. It was also observed that the meeting place passages were of a large window type. In the tangential section characteristics, it was determined that the medullary rays were mostly 1–12 cells high. As a result of macroscopic and microscopic examinations, the species of the A3 sample taken from the pavement was determined to be yellow pine (Pinus sylvestris L.).

4. Conclusions and Recommendations

Chemical, mechanical, and petrographic analyses of the materials taken from traditional houses in Konuralp, which have survived to the present day by preserving their original structural features, are presented below.
We examined mortar samples taken from the building numbered 1766 and determined that samples H5 and H7 were approximately 10–15% and sample H6 was 15–20% clay adobe mortar of terrestrial origin containing lime reinforcement and ash, carbonated rock fragments, and brick fragments in the aggregates. The aggregate–binder ratios of the samples were 1:6–7 in samples H5 and H7, while this ratio was around 1:5 in sample H6.
According to the SEM-EDX results for the mortar samples taken from the building numbered 1766, it was determined that the binder parts of the mortars numbered H5, H6, and H7 contained high amounts of silicon originating from clay and smaller amounts of aluminum, iron, calcium, potassium, magnesium, sodium, and titanium in various ratios.
When the protein and fat test results were analyzed, no fat was determined in any of the mortar and plaster samples, while a small amount of protein was determined in all samples. This indicates that organic additives were used to create mortars and plasters.
The wood species of the floor covering and cabinet joinery samples from the building numbered 1766 were determined to be yellow pine (Pinus sylvestris L.). It is predicted that the same type of wood can be used as a wood species specific to the region during the repair phase.
As a result of these analyses, it will be possible to ensure that the materials used in the conservation and repair of the buildings show properties similar to those of the original materials. In line with this understanding, there is a cultural responsibility to adopt a multidisciplinary approach and work with experts in the field of improving and reusing buildings.

Author Contributions

Conceptualization, Özlem Sallı Bideci., and Büşra Sabuncu.; methodology,Özlem Sallı Bideci.; software, Büşra Sabuncu.; validation, Özlem Sallı Bideci., and Büşra Sabuncu.; formal analysis, Özlem Sallı Bideci., and Büşra Sabuncu.; investigation, Büşra Sabuncu.; resources, Büşra Sabuncu.; data curation, Özlem Sallı Bideci.; writing—original draft preparation, Özlem Sallı Bideci., and Büşra Sabuncu.; writing—review and editing, Özlem Sallı Bideci., and Büşra Sabuncu.; visualization, Büşra Sabuncu.; supervision, Özlem Sallı Bideci. All authors have read and agreed to the published version of the manuscript.

Funding

This research received no funding.

Acknowledgments

This study was produced from the thesis titled "The importance of material analysis in the reuse and repair of traditional houses: The case of Düzce-Konuralp", written at Düzce University, Institute of Science, Department of Architecture.

Conflicts of Interest

The authors declare that there is no conflict of interest.

References

  1. ICOMOS. Turkey’s Architectural Heritage Protection Declaration; International Council on Monuments and Sites Turkish National Committee, Istanbul, Türkiye, 2013, (http://www.icomos.org.tr/Dosyalar/ICOMOSTR_tr0784192001542192602.pdf).
  2. Sabuncu, B.; Sallı Bideci, Ö. An Overview Of Engineering Properties Of Bricks And Mortars Used In Historical Buildings. In Proceedings of the Seljuk 6th International Conference on Applied Science, Konya, Türkiye; 2022; pp. 156–167, ISBN 978-605-71767-9-0. [Google Scholar]
  3. Arslan, H.; Gökçen, D.; Tanriverdi Kaya, A. Spatial Analysis of Konuralp Ancient Theater 1st Degree Archaeological Site; Düzce’de Tarih, Kültür ve Sanat; Gaye Publishing: Bursa, Türkiye, 2015; pp. 246–253. [Google Scholar]
  4. Tuna, A. Archaeological Parks in the Scope of Sustainable Ancient Cities; The Case of Duzce-Konuralp. Ph.D. Thesis, Ankara University, Institute of Science and Technology, Ankara, Türkiye, 2014. [Google Scholar]
  5. Karabulut, B.B. The Examination of Historical Akcaabat Ortamahalle Houses in Terms of Construction System and Construction Materials with the Purpose of the Sustainability of Cultural Heritage. Master’s Thesis, Istanbul Technical University Institute of Science and Technology, Istanbul, Turkey, 2018. [Google Scholar]
  6. Koç, K. Documentation and İnvestigation of Constructional Characteristics Belong to Bursa Gölyazi Region. Master’s Thesis, Istanbul Technical University Institute of Science and Technology, Istanbul, Türkiye, 2019. [Google Scholar]
  7. Çağlar, A. Experimental Research on İmprovement with Boron Waste Additive of Properties of Blend Brick Used in Traditional Kastamonu Houses. Ph.D. Thesis, Selcuk University, Institute of Science and Technology, Konya, Türkiye, 2018. [Google Scholar]
  8. Şahin, G. The Characterization of Bricks Used in the Construction of Bab-I Seraskeri Hospital (IU Faculty of Political Sciences) and Proposals for Their Conservation. Master’s Thesis, Istanbul Technical University Institute of Science and Technology, Istanbul, Türkiye, 2017. [Google Scholar]
  9. Sayin, B. Tarihi yiğma yapilarin malzeme özelliklerinin belirlenmesi ve uygulama önerileri. Dicle Univ. Eng. Fac.-Eng. J. 2016, 70, 387–398. [Google Scholar]
  10. Akbulut Ekşi, D. A Proposal Fort He Selection of Mortars for Use in the Repair of Historical Buildings. Ph.D. Thesis, Yildiz Technical University, Institute of Science and Technology, Istanbul, Türkiye, 2006. [Google Scholar]
  11. Gür, D. A Study on Hydraulic Lime Mortars with Pozzolan Addition for Historic Masonry Repairs. Master’s Thesis, Istanbul Technical University Institute of Science and Technology, Istanbul, Türkiye, 2019. [Google Scholar]
  12. Ozgunler, M.; Ozgunler Acun, S. A research on Karamursel region volcanic tuff as a pozzolanic additive in repair moprtars used for historical buildings. Sci. Res. Essays 2011, 6, 641–647. [Google Scholar]
  13. Düzce Municipality Directorate of Urban Planning, Parcel 1766 survey report, Düzce: Düzce Municipality; 2022.
  14. TS EN 12407; Natural Stone Test Methods-Petrographic Examination. Turkish Standards Instituion: Ankara, Türkiye, 2019.
  15. TS EN 12440; Natural sone-Denomination Criteria. Turkish Standards Instituion: Ankara, Türkiye, 2010.
  16. İ.B.B. KUDEB. Restorasyon ve Konservasyon Laboratuvarlari Kitabi; Şan Publishing: Istanbul, Türkiye, 2009. [Google Scholar]
  17. Özgen, Ö. Horasan Harci Üzerine Deneysel Çalişmalar. Master's Thesis, Ministry of Culture and Tourism of the Republic of Türkiye, Directorate of Surveying and Monuments, Istanbul, Türkiye, 2012. (https://docplayer.biz.tr/5997501-Horasan-harci-uzerine-deneysel-calismalar.html).
Figure 1. A visual of the location of the plot in question.
Figure 1. A visual of the location of the plot in question.
Preprints 113925 g001
Figure 2. A general view and a bird’s eye view of the building.
Figure 2. A general view and a bird’s eye view of the building.
Preprints 113925 g002
Figure 3. Mortar and plaster samples of building number 1766: (a) interior plaster number H5, (b) exterior plaster number H6, and (c) filling mortar number H7.
Figure 3. Mortar and plaster samples of building number 1766: (a) interior plaster number H5, (b) exterior plaster number H6, and (c) filling mortar number H7.
Preprints 113925 g003
Figure 4. Images of wood samples: (a) cabinet joinery and (b) floor covering.
Figure 4. Images of wood samples: (a) cabinet joinery and (b) floor covering.
Preprints 113925 g004
Figure 5. Plot 1766, ground floor sampling numbers on the blueprint.
Figure 5. Plot 1766, ground floor sampling numbers on the blueprint.
Preprints 113925 g005
Figure 6. Grain size distribution of aggregates.
Figure 6. Grain size distribution of aggregates.
Preprints 113925 g006
Figure 7. (a) Stereomicroscope and (b) polarizing microscope images of sample H5.
Figure 7. (a) Stereomicroscope and (b) polarizing microscope images of sample H5.
Preprints 113925 g007
Figure 8. (a) Stereomicroscope and (b) polarizing microscope images of sample H6.
Figure 8. (a) Stereomicroscope and (b) polarizing microscope images of sample H6.
Preprints 113925 g008
Figure 9. (a) Stereomicroscope and (b) polarizing microscope images of sample H7.
Figure 9. (a) Stereomicroscope and (b) polarizing microscope images of sample H7.
Preprints 113925 g009
Figure 10. SEM images and EDX analysis element and oxide ratios of (a) H5, (b) H6, and (c) H7 samples.
Figure 10. SEM images and EDX analysis element and oxide ratios of (a) H5, (b) H6, and (c) H7 samples.
Preprints 113925 g010
Figure 11. Thin section images of A2 sample.
Figure 11. Thin section images of A2 sample.
Preprints 113925 g011
Figure 12. Thin section images of A3 sample.
Figure 12. Thin section images of A3 sample.
Preprints 113925 g012
Table 1. Sample Codes and Structures.
Table 1. Sample Codes and Structures.
Sample Code Type Building
H5 Interior plaster Plot 1766
A2 Wood cabinet joinery
A3 Wood floor covering
H6 Exterior plaster
H7 Filling mortar
Table 2. Ignition loss analysis results of mortars and plasters.
Table 2. Ignition loss analysis results of mortars and plasters.
Ignition Loss (%)
Samples Code Moisture 105 °C Relative Water/Organic Addition 550 °C CaCO3 1050 °C
H5 (Interior plaster) 3.04 5.13 9.73
H6 (Exterior plaster) 2.56 5.26 19.55
H7 (Filling mortar) 2.66 5.53 10.60
Table 3. Acid loss analysis results of mortars and plasters.
Table 3. Acid loss analysis results of mortars and plasters.
Acid Loss (%)
Sample Code Loss Remainder
H5 (Interior plaster) 14.02 85.98
H6 (Exterior plaster) 22.90 77.10
H7 (Filling mortar) 12.07 87.93
Table 4. Mortar and plaster water-soluble salts analysis and conductivity measurement.
Table 4. Mortar and plaster water-soluble salts analysis and conductivity measurement.
Salt Test Protein–Oil Test
No Chlorine (Cl) Sulphate (SO42−) Carbonate(CO32−) Nitrate (NO3) Conductivity (µS) % Salt Amount Protein Oil
H5 + 158 1,00 +
H6 264 +
H7 168 +
Disclaimer/Publisher’s Note: The statements, opinions and data contained in all publications are solely those of the individual author(s) and contributor(s) and not of MDPI and/or the editor(s). MDPI and/or the editor(s) disclaim responsibility for any injury to people or property resulting from any ideas, methods, instructions or products referred to in the content.
Copyright: This open access article is published under a Creative Commons CC BY 4.0 license, which permit the free download, distribution, and reuse, provided that the author and preprint are cited in any reuse.
Prerpints.org logo

Preprints.org is a free preprint server supported by MDPI in Basel, Switzerland.

Subscribe

Disclaimer

Terms of Use

Privacy Policy

Privacy Settings

© 2026 MDPI (Basel, Switzerland) unless otherwise stated