Preprint
Article

This version is not peer-reviewed.

BIM Manager Role in the Integration and Coordination of Multidisciplinary Projects

A peer-reviewed article of this preprint also exists.

Submitted:

18 July 2023

Posted:

19 July 2023

You are already at the latest version

Abstract
Building Information Modelling (BIM) methodology have been optimizing the construction activity in all sectors: multidisciplinary designs development; construction planning and monitoring; building management and maintenance. A BIM environment aggregates several disciplines and different skillsets and in order to control and improve the quality of a BIM project, a BIM manager is required. The BIM manager has the responsibility to coordinate all tasks involved in a building design and associated activities usually workout over the project documents. The professional can access to various discipline models, located in a shared board, and request for amendments if inconsistencies are detected. The present study issue is illustrated with three building cases were distinct specific projects, disciplines and tasks were elaborated: collaboration between disciplines (architecture, structures and construction); structural analyses and reinforcement details; quantity take-off of materials and cost estimation; construction scheduling and simulation. Although there are limitations in the implementation of BIM methodology in all sectors and stages, within the construction industry, BIM have been bringing an important improvement in the quality of a building design, reflected in the quality of the final product. BIM methodology is a current demand in the construction industry supported on advanced technology and in an adequate management of projects, were the BIM manager has an important role.
Keywords: 
;  ;  ;  ;  ;  ;  

1. Introduction

Building Information Modeling (BIM) is a methodology demanded to support the design process and all building phases. Currently, it has been implemented in a wild range of infrastructures, making a positive difference in a global construction industry. A BIM platform can be considered as a useful resource for multidisciplinary coordination, extending the BIM three-dimension (3D) modelling scope, into the construction planning and after, in the operation and maintenance stages. The BIM practice is applied as a part of the hand-over of the construction building from the contractors to the owners. The main boost is the capacity of improving collaboration among all professionals involved in the project, construction and occupation of a building. During this interdisciplinary procedure, in order to archive all design data and to support the elaboration of a large set of tasks, several complementary data must be created and inserted in the centralized BIM model [1].
A BIM model is a 3D digital representation of a building and it is generated and updated along the entire life cycle of the infrastructure. In it, a BIM manger is required to guaranty the confidence, accuracy and completeness of the data of the final project solution. With the integration and the collaboration of several experts in a building design, the role of a BIM manager has emerged as a necessary adjunct professional, in the coordination of BIM-enabled projects [2]. Approaches for data exchanges in BIM collaboration environments, has been of particular interest namely the scope of incremental version control, the investigations related to object and the production of models. Capturing and representing structured, highly interconnected design information of built facilities has been subject to extensive investigations over the past decade [3,4]. The application of affiliated techniques can range from routing problems in complex networks to data fusion problems, and dependency representations in load-bearing systems.
What does a BIM manager do? The professional is responsible for the BIM strategy and its execution, acting as the guardian of the model created, developed, consulted and delivered in a complete building context, including design, construction and operation [5]. In the interdisciplinary coordination work, the manager is able to open all project model files, archived in native or Industry Foundation Classes (IFC) formats, to establish an updated and complete global centralized model.
The role of a manager can be developed in project offices, building enterprises and construction contractors. It can be seen currently as a challenge start-up activity that is focused on the offsite production of projects. The BIM environment practice needs to be supported in roles and responsibilities of BIM specialists that must be well defined across BIM users, following best practice guidance [6], as frequently there is a lack of definition of client-side roles in BIM process [7]. One of the commonly recurrent purposes established in BIM guides and standards, concerns to achieve a higher degree of project collaboration [8]. A BIM manager is required, in particular, in buildings of an important volume and complexity:
  • to incentive the collaboration at work and to control responsibility given to each professional involved;
  • to guaranty the correction of the amount and quality of the information, included in each BIM model phase, and transferred between tasks, requiring the control of the performance of distinct data exchange steps;
  • to coordinate all designs and the distinct mandatory activities (conflict detection, cost estimation or energetic simulation);
  • to verify the Level of Design / Development / Detail (LOD) of the BIM model in a transfer operation, concerning the volume and type of data required in each step.
The current LOD classification of BIM models concerns the overall state of type, quantity and quality of the information inserted in the centralized model, at each particular stage along the development of the complete project. This concept includes not only graphical objects, but also the data associated with the objects. LOD was first introduced by the American Institute of Architects (AIA) in 2008 when it defined five different levels of development to define the detailing levels in a BIM model. The AIA organization defined all the parameters and details associated with a digital model accessible for everyone at various stages of the design process.
Various standards and guidelines have been defined on national and international levels to structure the workflows of collaborative design projects in the construction industry. The available standards describe mostly the process-related aspects and promote BIM-based collaboration using a federate discipline model, including multi components and tasks. Each domain work predominantly in independent way of the distinct disciplines on their respective component of the centralized model. By employing a Common Data Environment (CDE), interdisciplinary coordination can be performed by combining the available discipline models into a coordination model. From a technical point of view, this combination step of all discipline components of the model is realized by merely superimposing the elements contained in the individual discipline models. The present study concerns the coordination and integration aspects in a BIM manger perspective:
  • Problem statement: Over the complete BIM model, the manager should be able to verify the existence of conflicts and the detection of eventual inconsistencies, and then proceed to warn the responsible of the identified problem. The aspect related to the management of the global project and the applications and functionalities provided for support this work, is not yet widely disseminated in the scope of the construction business. Knowing BIM does not know engineering and vise-versa, and as so, a BIM manger is required to connect both knowledge, improving the quality of the final product.
  • Scope of the paper: The main objective is to report distinct cases associated with activities that the manager must care. The identification of the of type of works and the respective reasonability were carryed-out along the presentation of the concrete situations. The most relevant responsibility were identified.
  • Methodology and contribution: A first research work was made, focused on the relevance and the current intervention of the BIM manager as a new job in a BIM project environment. The case studies pointed distinct relevant aspect of interest to be disseminate among BIM professional and construction enterprises. The study and the principal final remarks contributes positively to a better knowledge of the BIM manager work.
The present study presents building cases were distinct specific projects and several tasks were developed, namely, conflict detection, structural analyses, cost estimation and construction scheduling. All activities were worked-out from BIM models created in construction planning and structural analyses contexts. The study demonstrates the large domain of BIM applications and the relevance of the BIM manager professional to improve quality and agility in multidisciplinary projects.

2. BIM manager requirements

The BIM manager is a professional with a background in engineering construction or architecture design with experience in collaborative work development, concerning design or construction coordination, and with knowledge at the forefront of the digital technology field [9]. This activity is an innovative and dynamic business that operates in an industry niche that has grown substantially lately. The ascent of the BIM application has attracted a new perspective of various competencies and responsibilities required of the role. Currently the engineer and architectural companies have been accepting the relevance of the BIM manager role [10]. This professional is involved in the management and delivery of client’s information requirements on construction projects, having an important role of a significant relevance to the business:
  • Coordinates the BIM design procedure, the technical authoring, the data verification and validation, the clash detection analyses and the delivery of asset data from project inception to completion;
  • Collaborates with internal and external stakeholders, organizing and chairing all necessary meetings and information reviews, either remotely or at design team meetings, and define the digital information requirements of thee all BIM project [11];
  • Leads the team involved in the project when working in a multi discipline environment [12];
  • Provides the project models and data auditing between steps, and verify the quality control, and assess adherence to standards of all received deliverables throughout the lifecycle of buildings [13];
  • Works closely with the design manager to support successful delivery of the digital aspects of the project from conception to completion and supports the management of software packages including advising on when to upgrade to new versions and the need for software customization [14];
  • Demonstrates current experience with BIM platforms and a great understanding of project processes, data workflows, contractual obligations and use of BIM software [15].
In a collaborative process, developed in the context of a company that admits multiple specialties and activities, the project is controlled and shared through Revit's Project Browser functionality. Each performed component or task is referred to as a view of the global model. The distinct design views must be properly organized, specifying whether the view refers to imported Computer-Aided Design (CAD) drawings, or data supported by the model, namely, tables of materials or components, or drawing sheets properly composed with cuts, views and captions, constituting updatable dynamic components. The manager shills must englobe an agile handling of this kind of functionalities available in BIM software.
The BIM manager works on the quality of the project base in the completeness of the model. To achieve the required design value the professional must align communication between all agents with regard to the flow of information, dates and delivery files. Previously all accords has to be contracted between the parties and the priorities that were set out [16]. The expert, in general, does not model or design, but has an important role in the strategic definition and management of the BIM implementation plan, a document previously established and associated to each new project [17]. This plan presents guidelines and criteria for implementing information modeling in a given enterprise. It determines, for example, the model applications, the responsibilities in all parts of the project during its development, the milestones and deliveries, the coordination rules and BIM software, the LOD required in each transfer step and the required plugins or extensions that will be adopted.
In the last decades, there has been a construction technologic evolution and BIM managers are in high demand. The main skills necessary for the BIM manger function, involved in innovative and major schemes across the built environment, can be listed as requirements and desired competencies:
  • Knowledge of BIM software - The professional should know the systems available in the market for different disciplines and uses, but not being necessary an expert or a qualified programmer. This includes architectural and structural design procedure and software used (from Autodesk, Graphisoft and Bently houses), knowledge about hydraulic and electrical installations, software most applied in construction planning and simulation (MSProject and Navisworks), manage visualization and rendering capacities of the most used software, familiarity with conflict detection software (Solibry) and with collaborative platforms (OpenBIM). The manager must have knowledge about what extensions (Reinforcement) or plugins (Dynamo) were planned to be used in each project delivery step and how to manage the model to extract quantities of objects or distinct type of material, supporting decisions concerning deadlines, quality and specific details discussion with the experts of each area. The manager must have also knowledge about the interoperability level between different developers' systems and know how to work with IFC formats [18,19];
  • Experience in building project and strategic vision – A relevant experience in projects and technical knowledge is required. BIM manager must have an adequate competence to actively participate in strategic definitions, and attention to identify errors in the model that can gain greater proportions in a complex project, later in the construction phase [20]. In the traditional process, the warning of problems is often done through emails with details evidenced about the digital drawings and added comments to indicate which problem requires resolution. The organization BuildingSmart, developed the BIM Collaboration Format (BCF) which allow the communication of errors in a simpler and effective way [4]. The information that is archived in this format are the coordinates of the place where this problem was found, the user's display parameters and the intended comments, related to the error (the inconsistency description, the deadline for correction, the person responsible for changing it, the type of priority, ...). This is a type of warning procedure that can be used by the BIM manager when supervising the growing of a global model of a multidisciplinary project. The manager must be able to lead with BIM delivery of large complex projects, an adequate experience across a number of sectors at all design stages and a good understanding of buildings design;
  • Modelling and attention to detail - The BIM model is a virtual construction and the quality of the model must be approved by the manager, and for that he/she must know how a building must be designed and executed. All information contained in the model must be coherent and organized, avoiding posterior problems, errors or omissions in the construction-working place. The BIM model allows teams to see the project virtually before it is built, which can help to identify mistakes and inconsistences in an early design stage, and support the ability to create sustainable buildings. The BIM manager get to learn about new software and the most recent technologic achievements, that can help the companies to improve the way to do better business [21];
  • Communication and integration capability – The work of a BIM manager requires to go across many disciplines and companies and, as a project coordinator, must easily communicate with different interlocutors, as the client and all members of the project team, respecting different views and expertise. Although some professionals have more experience in construction, BIM is still in a global process of maturity, and so many BIM concepts, practices and patterns are still being implemented. Therefore, it is required an understand between traditional professionals and BIM handlers;
  • Responsibility in delivery and coordination – The BIM manager must ensure a high-quality service and provide the best technical solution and digital deliverables for the client, through all stages of the project, construction and operation. The primary responsibility is to manage and coordinate BIM standards implementation and enforcement on all related BIM projects, file documents and digital models. The manager, working alongside with the project director, follows the production and the control of a BIM project, planning and deliveries, through all stages, fully supporting the BIM teams assigned to it.

3. Materials and Methods

As a methodology, the upper preliminary text introduces the recognition that the development of BIM projects and associated tasks requires the intervention of a professional with knowledge in BIM, with the function of delivering, with correctness and responsibility, the global model within the various stages in which the transfer of data is required. In the next items, the BIM manager action was worked out from three study cases, in order to illustrate the type of intervention and the relevance of this BIM expert, within the elaboration of multidisciplinary projects (Figure 1):
  • Design collaboration: On the first case, an initial architectural project was defined followed by the elaboration of a reinforced concrete structural solution. In collaboration with the architectural office, changes to the architectural design were studied, with direct implication in the structural solution. A BIM manager, established at the beginning of the process, supported the control of the two-way routing between the architecture and structures. Subsequently, during the structural analyses, which is processed in the structural software and after the required transfer of the reinforcement detailing, to the modelling software, the BIM manager carried out the quality control of the information that is transferred between both software, and evaluate the degree of interoperability;
  • Interoperability in structural design: A preliminary structural solution was generated using Revit, and a first inconsistency verification was made. The transfer of the structural model between Revit (Autodesk) and Robot (Autodesk) and after, a more complete model, was transferred again to Revit (Autodesk), in order to centralize all data, was supported in a BIM manager work. Supervised by the BIM manager, the conflict detection, construction planning simulation and the take-off of materials, were performed over the complete structural model. An exercise, concerning the detection of inconsistency and emission of warnings were also considered, as well a reference to the Virtual Reality technology that have been improving BIM performance in construction design;
  • Multi-disciplinary project: Beginning with the generation of the architect and structure projects, represented in a 3D BIM model, other disciplines were developed. The BIM manager controlled the transfer of the first model (architecture) to experts of water supply and electrical installation. After, a conflict detection analyses was realized, forcing to do some adjustments to the initial solutions of those disciplines. In addition, other necessary discipline projects were also performed, related with the excavation and frameworks.
The parametric BIM model supports a great level of integration, communication and collaboration. The BIM manager must establish, at the beginning of all process, a BIM Execution Plan (BEP) a document that define how a BIM project must be developed and delivered among all experts involved. The manager uses the Google Drive platform to store the files and to aggregate the team of experts. The platform allows supporting to handle the type of access permitted by each discipline responsible. These aspects are also reported in the text, after the presentation of the study cases.
In summary, the main contributions to be presented in this paper are:
  • Pointing the main requirements, function and activity related with the performance of a BIM manager in multidisciplinary projects;
  • Evidencing the type of collaboration and coordination required in several mandatory steps identified along the elaboration of academic cases projects;
  • The 3 study cases were selected to illustrate 3 distinct aspects: the communication architecture/structure; the transfer Revit/Robot/Revit and the interoperability degree analyses; a building project including several disciplines requiring overlapping and integration;
  • The manager importance is identified in each model transfer and combination of disciplines, reveling important remarks useful for a global BIM community.

4. Case studies

The selected illustrative examples of building-cases demonstrate clearly the complexity in organizing and coordinating multidisciplinary projects. Several situations of collaboration between disciplines were made, the interoperability capacity was evaluated and some corrective solutions were performed, the clash detection analyses was verified followed by adequate adjustments and, after, drawings and tables of quantities were obtained over the centralized BIM model. The BIM manager controls all the processes where data transfer is necessary, contributing to the correctness of the model that is created, handled and increased with new disciplines or phases, resulting in a better final project. The BIM manager action is pointed in each case.

4.1. Collaboration between architecture and structures

Following the progress of the dynamic process established between architectural and structural offices, a single-family house, located in the archipelago of Azores, Portugal, was selected [22,23]. The process of creating the architecture design admitted several alternative options, providing an interesting illustration of how BIM model constitutes an adequate work-base and understanding of coordination between the activities of the architect and the structural engineer. The BIM manager coordinates all delivery processes, made in both transfer directions, following all steps of the model growing and admitting several changes along its progression. The experts involved, using BIM software, and controlled by the manager, easily follow the adaptation studies applied over both disciplines.
An architectural initial BIM model was first created. After a first suited structural component was defined confined to the architectural constrains. To initialize the architectural model, a set of technical drawing were inserted in the modeling software Revit (Autodesk) serving as the base of working (Figure 2).
Then, using the same software, a first structural solution was modeled (Figure 3). Both models were defined one over the other, helping the structural engineered to choose an adequate solution.
Along the process, distinct adjustments to the architecture was made followed by a new suited structural model (Figure 4). In all adjustments, the BIM manger coordinated the delivery of the architectural and structural models between the respective professionals. The collaboration establish between the experts, in architecture and structure, was greatly improved, when compared to a paper-based design, as the communication was supported in a BIM model.

4.1.1. Structural analyses

To performed the structural analyses, the geometry consistence of the analytical connections was first verified in Revit and after in Robot (Autodesk). BIM manager control the options for transferring the correct material and proprieties and updating elements like foundations. The first selected options were Send model and Update model, and later to transfer the results obtained in the structural analysis to Revit, the option Update model and results, was selected. In Robot the loads and combination of loads were applied and the structural analyses was realized (Figure 5). For the determination of the seismic action, using the analysis mode parameter, the modal value was first changed to seismic, allowing the selection of the most relevant vibration modes for the seismic analysis, that are associated to a higher percentage of mass participation.
Also supervised by the BIM manger, other transfer process was realized. The calculated reinforcements for each structural component were transferred to the initial software, the Revit, in order to complete the initial structural model. In this step, the interoperability capacity in the way Robot/Revit was evaluated. The interoperability capacity between both software was analyzed. Several inconsistencies were detect and the required adjustments were performed [23]. The interoperability level in a structural design is currently still a limitation. So, it was found that the information transferred in Robot/Revit direction still presents several flaws. All the problems were corrected in order to obtain an accurate and complete structural model. In it, the BIM manager coordinates all process. For that, knowledge about the structural software available and the interoperability level capacity of the systems used, is required as BIM manager skills.

4.1.2. Technical drawings

After, and conducted by the BIM manager, distinct complementary task were extracted from the final structural BIM model. The required drawings and the tables of quantities of concrete and reinforcements bars were obtain automatically. The technical drawings are generated as cuts applied over the 3D model presenting an elementary aspect. Then, some annotative adjustments were made (Figure 6).
Although the modeling process was relatively simple, the generation of structural drawings, which effectively correspond to cuts applied over the 3D model, is more complex and time-consuming, in order to achieve an aspect similar to that is normally required in a paper-based project. However, the great advantage in relation to the paper drawings is that they can are dynamic, and as so when the 3D model admits design adjustments, all drawing became automatically updated.
The development of traditional drawings requires some work and mastery of handling the distinct functionalities of the systems. Revit allows the recourse to advanced functionalities, that can be developed as Dynamo script, concerning the insertion of annotation associated to drawings. Creating specific features, using the Revit plugin Dynamo, requires a high experience in graphical programming.

4.2. Structural interoperability

The 2nd study case in a building with several elevated levels, situated in Lisbon, Portugal [24,25]. Initially, a first Revit model of the established structural solution was created (Figure 7).

4.2.1. Structural analyses

In Revit, the analytical structural model is checked, in order to guaranty the correct consistencies of the finite elements nodes connection. After it was transferred to Robot and the structural analyses was performed (Figure 8). Again, a BIM manager was the responsible to control the efficiency of the BIM model transfer. After, the complete structural model, that includes the reinforcements of each structural elements (slabs, columns, beams and walls), was transferred to Revit.
The BIM model is composed of a set of parametric objects, the most important concept of the methodology. This fact allows the user to extract several type of information from the model. In addition, it allows the professionals to enhance a high level of communication and collaboration within the project team, including the BIM manager.

4.2.2. Construction planning and budget estimation

The generated complete structural BIM model presents an organized and centralized database covering all concrete components and the reinforcements bars calculated for each structural element. From the structural model, some task were carried out (Figure 9): Conflict detection (Navisworks); preparation of technical drawings (Revit); definition of construction planning (Microsoft Project) and generation of animated simulation (Navisworks); obtaining take-off of several materials (Revit) base of the budget estimation.
Figure 9. Conflict detection results (a), technical drawing (b), construction simulation (c) and table of concrete volume and costs (d)
Figure 9. Conflict detection results (a), technical drawing (b), construction simulation (c) and table of concrete volume and costs (d)
Preprints 79836 g009

4.3. Multidisciplinary project

The 3rd selected building case is composed by two elevated floors and two semi-basements. The house is located in a tourist bathing area near a lake, in Santarem district, Portugal [26,27]. In this case, the final model is formed by several disciplines (Figure 10): architecture, structures, water net supply and electrical installation. All components of the centralized BIM model were defined using Revit software and the parametric objects available in the libraries concerning each discipline.

4.3.1. Overlapping disciplines

All disciplines were created using an overlapped strategy where the architectural and structural components of the model can be visualized, along with conception of the water and electrical projects. A conflict analyses detection was performed, using the Navisworks (Autodesk) system, looking for errors or inconsistencies not previously identified.
The Revit model was transferred to the Navisworks software, using the native Revit format. In the detection analysis, some inconsistencies were found. Namely, between the water supply net and the architecture and the structural components of the BIM model (Figure 11a). This type of analyses, made in an early stage of the BIM model generation, constitutes a positive improvement in the quality of the final product. In this case, the excavation work was also modelled (Figure 11a) as well the framework component, used to form the structural elements (Figure 11c).

4.3.1. Construction simulation

The construction planning of the structural component was defined using the Microsoft Project software. After, the BIM model and the planning file were transferred to the Navisworks system. In it the construction activity schedule was linked, in a time liner, to the construction sets of elements (Figure 12). This system allows also programming a virtual presentation in an animated simulation presentation (Figure 13).

5. Coordination and collaboration

The BIM model enhances a high level of communication and collaboration, as it can support the overlapping of distinct disciplines and an easy access to the database of each component. A BIM model that encompasses all the required disciplines (architecture, structures and service networks), presents an organized and centralized database. The model database represents an adequate working base support to the BIM manager work.
The created structural BIM model, required in each building case, is composed of the physical and analytical structural solution and of all the 3D reinforcements inserted in each structural element. In addition, Revit enables the attachment of labels, images and tables obtained from the model, or transferred from the Robot. These project elements were aggregated, as independent directories, to the BIM project, in order to allow its consult when required in a later stage. The different structural analysis diagrams, performed in the Robot, were placed in a view named “Analysis”. This organization should be first included in the project BEP guidelines. Therefore, the experts know where to place each view and what kind of data consult can do. In the process, the role of the manager is again essential.
The ability to centralize information is very useful in a project revision process, as the model database can be easily consulted, giving a sustained knowledge for an eventual optimization decision concerning architectural, structural or construction requirements.

5.1. BIM Execution Plan

A BIM Execution Plan (BEP) is a document that outlines how a BIM project should be executed, managed and delivered, conducted partially by the project manager. It is an essential tool for ensuring that all stakeholders are on the same direction work, from the start of the project and that every experts understands their roles and responsibilities. The BIM manager must coordinate the responsibilities and type of contribution.
If the information archived in a Revit model is outdated, the system issues a warning stating after each transfer, identifying the errors or omissions. After the overlapping of all disciplines and the elaboration of the required tasks, the global centralized model is composed of all components and all specific views that were considered. The manager shall ask each partner for a responsible verification of its component. The final model should not present any kind of inconsistency, errors, inaccuracies or omissions.

5.2. Dynamic extension files

A collaborative platform, organized by folders, allocate the results of each expert work in specific places or views of the global model, that can be achieved using common shared document. The CADKEY Dynamic Extension file (CDE) is a common shared document. In it, the online Google Drive platform can store the CDE files, allowing to add the team member responsible to each discipline or task. The folders in the BIM model, should be organized as shown in the Figure 14:
  • In the place working on it (WIP) folder, each team member stores the files concerning the project in a progress stage. The files archived in WIP folder has not yet been verified and authorized to be moved to the next stage;
  • As soon as the model is approved by the expert in charge, it is transferred to the shared folder, which will have all the shared files of the various disciplines to be coordinated;
  • The published folder, is used to support the review and coordination stages that must be first carried out, before it is ready to be worked in a final step;
  • The archive folder, follow the history of the various editable models created along the project development, avoiding that no information is lost.

5.3. BIM collaboration format

The BIM Collaboration Format (BCF) file stores the model in progress, in a virtual platform, and allows the interaction between several stakeholders. When a problem is detect, by the BIM manager and after fixed by the discipline responsible, the communication between experts can be based in the generation and delivering of a BCF file.
When the file is opening it a BIM software, it is possible to read the text information about the inconsistency found, and display the parameters and the position were the problem was detected. This functionality allows to better understanding the issue situation, and the possibility to make immediately the necessary change in the model. As an example, an error caused by the transfer of reinforcement bars, was detected in the second study case. Figure 15 presents the type of communication established between the manager and the structural engineer. The detected problem can be automatically synchronized with the virtual platform in use.

5.4. VR technology and QR code

In BIM, the virtual reality (VR) technology has been enhancing the benefits of the methodology, with a great applicability in architecture, construction planning and maintenance. The VR software allows immersive experiences when the user navigates through the interior and the exterior of the models. The main advantage in linking BIM/VR is being inside a realistic environment. This functionally transmits an adequate understanding of the project, being possible to make a virtual inspection, and observing the eventual inconsistencies in a real scale. Inside the structural model, BIM/VR allows the engineer to better communicate with other collaborates and to the owner (Figure 9a).The EnscapeTM is VR Revit extension that can be used to performed VR experiences. It easily supports the detection of eventual physical collisions between elements, and allows a direct adjustment made in Revit.
A quick response (QR) code is a type of two dimensional (2D) bar code that is used to provide easy access to online information, through the digital camera on a smartphone or tablet. In this case, it was attached to the global model allowing user to access to a selected information, concerning the project (Figure 9b).

6. Discussion

Productivity in the construction industry is currently a hotly debated topic. Companies in this sector are constantly adapting their workflow in order to reduce time and costs in the development of their activity. The technological advances associated with the BIM methodology have been presenting benefits in the productivity and quality of the construction. The present study aimed to analyze the benefits and limitation of applying the BIM methodology in the execution of structural designs and construction plans, as well as the action of the BIM manager along the development of in each project.
The benefits are essentially focused on aspects related to the correct operation, speed and simplicity in the execution of some processes:
  • The ability to effectuate a bidirectional transfer information between software, finding that the model transfer from Revit to Robot is quite reliable and in the inverse direction the efficiency is reduced;
  • In Robot, the structural analyses and reinforcements detailing have shown very satisfactory results and after transposing the model in the direction Robot/Revit the completeness of the final structural model is easily achieved using the Revit extension, Reinforcement;
  • The 3D BIM modeling process, when compared to the traditional paper-base method, allows to easily performing eventual changes to the distinct components, supporting an adequate collaboration among the team involved.
In addition, a reflection about the BIM manager function is presented and its important need is illustrated over real cases:
  • The multidisciplinary design developed around a building, requires be following, controlling and supervising by a professional with knowledge in BIM strategy and in complex projects;
  • The structural design requires collaboration between the architect and the engineer and the transfer of BIM model in both ways, Revit/Robot/Revit. Over the structural model several tasks can be elaborated: inserting of all reinforcement inside the structural elements, obtaining tables of the materials quantities (volume of concrete and length of bars by diameter type) and the simulation of the construction process;
  • In the construction context, the selected case, involved the generation of four disciplines, the clash detection analyses, the materials quantity take-off elaborated over the final model and the definition of the construction simulation. In all cases, the relevance of the BIM manger was evidenced;

6. Conclusions

The described study cases presents some complexity of the projects composed of several disciplines and requiring the development of several task, using frequently distinct software. The role of the BIM manger is mainly the coordination of steps and the control in the authorization of the collaboration of each expert:
  • The distinct cases illustrated the relevance and the necessity of a BIM manger professional;
  • Its function is associated to the coordinator of the project, but some knowledge inherent to BIM concept and software use, should be detailed attended by the manager in all BIM process;
  • It is a new job that should be incorporated within the technical team of the construction enterprises, in an interdisciplinary BIM users context;
  • As currently, the projects are developed in a global way, connection distinct companies, and several countries, the BIM manager professional is highly recommended;
  • The BIM manager can work on line using Google Drive platform and several sharing files and places, supporting the coordination of a global project.
When follow-up each case study, it was demonstrated that a BIM manager is useful to coordinate each task and to give responsibility to distinct experts. However, there is a strong consume of time in coordinating the various models. The centralized model has a high capacity for integration, supporting collaboration, communication between experts and, therefore, projects with a higher quality can be achieved.

Author Contributions

Conceptualization, A.S. and A.G.; methodology, A.S. and A.G.; software, G.A.; validation, A.S.; formal analysis, A.G.; investigation, A.S. and G.A.; resources, G.A.; data curation, A.S. and A.G.; writing—original draft preparation, A.S.; writing—review and editing, A.S.; visualization, A.G.; supervision, A.G.; project administration, A.S. and A,G,; funding acquisition, A.S. and A.G.. All authors have read and agreed to the published version of the manuscript.

Funding

The authors are grateful for the Foundation for Science and Technology's support through funding UIDB/04625/2020 from the research unit CERIS, Civil Engineering Research and Innovation for Sustainability, University of Lisbon, Lisbon, Portugal.

Conflicts of Interest

The authors declare no conflict of interest.

References

  1. Sampaio, A.Z. Professional training course in BIM contributing to the dissemination of the methodology in the Construction industry, In Building Information Modelling (BIM): Industry Trends, Benefits and Challenges, 1st ed.; Editor, Julie W. Daniels, Nova Science Publishers, 2023, ch. 4, https://novapublishers.com/shop/building-information-modelling-bim-industry-trends-benefits-andchallenges/.
  2. Hosseini, M.R.; Martek, I., Papadonikolak, E.; Sheikhkhoshkar, M.; Banihashemi, S.; Arashpour, M., Viability of the BIM manager enduring as a distinct role: Association rule mining of job advertisements article, J Constr Eng M, 2018, https://www.researchgate.net/publication/326111425.
  3. Kolbeck, L.; Vilgertshofer, S.; Abualdenien, J.; Borrmann, A. Graph rewriting techniques in engineering design, Front. Built Environment, 844 7 (2022) 1–19. 845. [CrossRef]
  4. Voss, C.; Petzold, F.; Rudolph, S. Graph transformation in engineering design: an overview of the last decade, Artificial Intelligence for Engineering Design, Analysis and Manufacturing 37 (2023). [CrossRef]
  5. Davies, K.; Wilkinson, S.; McMeel, D, A review of specialist role definitions in BIM guides and standards. J. Inf. Technol. Constr (ITcon), Vol. 22, pp. 185-203, 2017, http://www.itcon.org/2017/10.
  6. AIA. Guide, instructions and commentary to the 2013, AIA digital practice documents. The American Institute of Architects, 2013. https://www.aiacontracts.org/resources/69541-guide-instructions-and-commentary-to-the-2013-aia-digital-practice-documents.
  7. BuildingSMART Finland. Common BIM requirement 2012, Series 11: Management of a BIM project. 2012, http://www.en.buildingsmart.kotisivukone.com/3.
  8. Baoping, C., BIM and its effects on the project managers, In Proceedings of the 8th International Conference on Innovation & Management, Kitakyushu, Japan, November 30-December 2, 2011, https://www.pucsp.br/icim/ingles/downloads/papers_2011/ part_4/part_4_proc_71.pdf.
  9. Deegan, K.; Mathews, M. BIM: Building Information Management (not Modelling), Technological University Dublin, Dublin School of Architecture 2017, https://arrow.tudublin.ie/cgi/ viewcontent.cgi?article=1036&context=bescharcon.
  10. Habib, U.E.; Nasir, A.R.; Ullah, F.; Qayyum, S.; Thaheem, M.J., BIM roles and responsibilities in developing countries: A dedicated matrix for design-bid-build projects. Buildings, 12, 2022.
  11. Malik, Q.; Nasir, A.R.; Muhammad, R.; Thaheem, M.J.; Ullah, F.; Khan, K.A.; Hassan, M.U., BIMp-Chart—A global decision support system for measuring BIM implementation level in construction organizations. Sustain, 13, 9270, 2021. [CrossRef]
  12. Sampaio, A.Z.; Pinto, A.M.; Gomes, A.M.; Sanchez-Lite, A., Generation of a HBIM library regarding a palace of the 19th century in Lisbon, Appl. Sci.. vol. 11, 2021. [CrossRef]
  13. Bradley, A.; Li, H.; Lark, R.; Dunn, S., BIM for infrastructure: an overall review and constructor perspective. Autom. Constr. Vol. 71, pp. 139–152, 2016. [CrossRef]
  14. Sampaio, A.Z.; Gomes, N.R.; Gomes, A.M.; Sanchez-Lite, A. Multi-project in an integrated BIM model: clash detection and construction planning, J. Softw. Eng. Appl. vol. 15 (10), pp. 345 - 358, 2022. [CrossRef]
  15. Jacobsson, M.; Merschbrock, C., BIM coordinators: a review. Eng. Constr. Archit. Manag. vol. 25, pp. 989–1008, 2018. [CrossRef]
  16. Takim, R.; Harris, M.; Nawawi, A.H., Building Information Modeling (BIM): a new paradigm for quality of life within Architectural, Engineering and Construction (AEC) Industry. Procedia-Soc. Behav. Sci., vol. 101, pp. 23–32, 2013. [CrossRef]
  17. Oraee, M.; Hosseini, M.R.; Edwards, D.J.; Li, H.; Papadonikolaki, E.; Cao, D., Collaboration barriers in BIM-based construction networks: a conceptual model, Int. J. Proj. Manag., vol, 37 (6), pp. 839–854, 2019. [CrossRef]
  18. Sampaio, A.Z., Maturity of BIM Implementation in the Construction Industry: governmental policies, Int. J. Eng. Technol., vol. 69 (7), pp. 92-100, 2021. [CrossRef]
  19. Justo, A.; Lamas, D.; Sanchez-Rodrıguez, A.; Soilan, M.; Riveiro, B. Generating IFC-compliant models and structural graphs of truss bridges from dense point clouds, Automation in Construction, 149 (2023) 104786.
  20. Chuang, T.-Y.; Yang, M.-J., Change component identification of BIM models for facility management based on time-variant BIMs or point clouds, Automation in Construction 147 (2023) 104731. [CrossRef]
  21. Sampaio, A. Z.; Gomes, A.M., BIM interoperability in structural design, C. Eng., vol. 2(1), pp. 174-192, 2021. [CrossRef]
  22. Sequeira, P., Structural design in a BIM environment: technological advances in information transfer. Master’s Thesis, Department of Civil Engineering, University of Lisbon, Lisbon, Portugal, 2022.
  23. Sampaio, A.Z.; Sequeira, P.; Gomes, A.M.; Sanchez-Lite, A., BIM methodology in structural design: A practical case of collaboration, coordination, and integration, Buildings, vol. 13(1), 31, 2023. [CrossRef]
  24. Azevedo, G., Implementation of the BIM methodology in the project of structures: adaptation of procedures and information management, MSc dissertation, Department of Civil Engineering, University of Lisbon, Lisbon, Portugal, 2022.
  25. Gomes, A.M.; Sampaio, A.Z.; Azevedo, G.; Sanchez-Lite, A., BIM in structural project: interoperability analyses and data management, Appl. Sci.. vol. 12(17), 2023. [CrossRef]
  26. Fernandes, V.E., The capacity analyses of BIM technology in the generation of 4D models, Master’s Thesis, Department of Civil Engineering, University of Lisbon, Lisbon, Portugal, 2021.
  27. Sampaio, A.Z.; Fernandes, V.; Gomes, A.M.; Sanchez-Lite, A., Coordination of multidisciplinary BIM projects: modelling, quantification and simulation, In Proceedings of 9th Conference Ibero-American in Applied Computation, Lisbon, Portugal, 2022, https://ciaca-conf.org/pt/.
Figure 1. Study cases and type of BIM manager actions.
Figure 1. Study cases and type of BIM manager actions.
Preprints 79836 g001
Figure 2. Architectural technical drawings.
Figure 2. Architectural technical drawings.
Preprints 79836 g002
Figure 3. The initial BIM structural model.
Figure 3. The initial BIM structural model.
Preprints 79836 g003
Figure 4. BIM structural model with changes applied.
Figure 4. BIM structural model with changes applied.
Preprints 79836 g004
Figure 5. Results of the structural analyses worked out in Robot.
Figure 5. Results of the structural analyses worked out in Robot.
Preprints 79836 g005
Figure 6. Technical drawing before (a) and after (b) the application of annotative changes.
Figure 6. Technical drawing before (a) and after (b) the application of annotative changes.
Preprints 79836 g006
Figure 7. Sequence of the modelling process of the structural model made in Revit.
Figure 7. Sequence of the modelling process of the structural model made in Revit.
Preprints 79836 g007
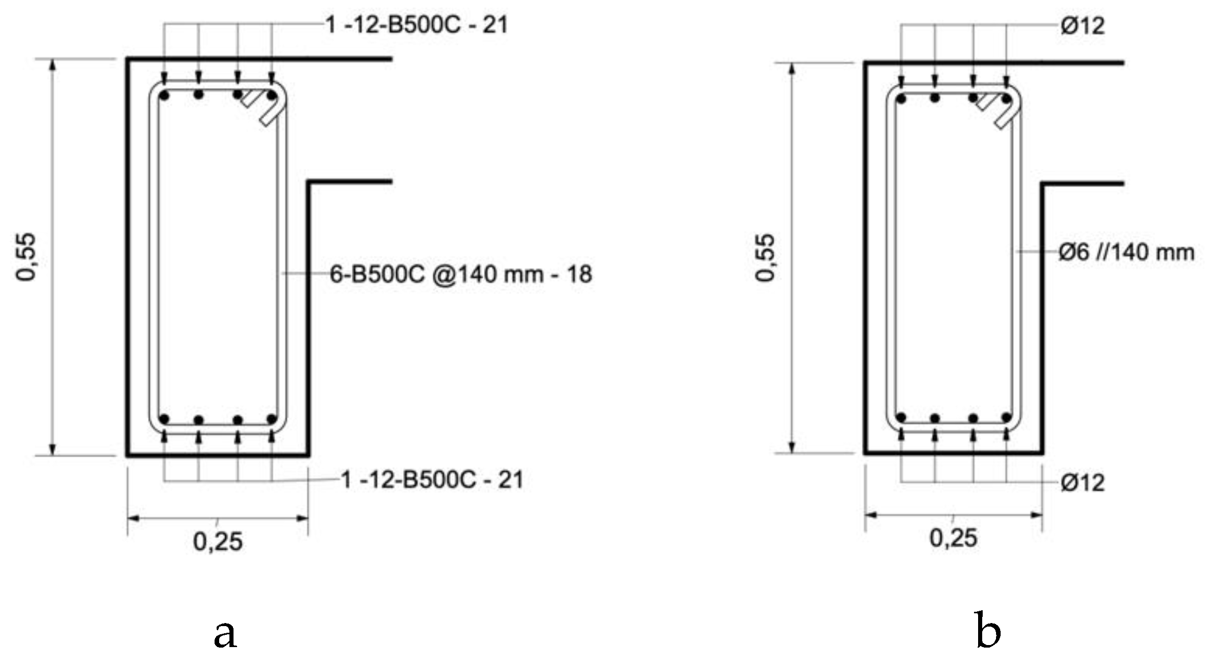
Figure 8. Structural analyses (slabs deflection, a), performed in Robot, and the reinforcement (foundation, b, and beam, c), detailed in Revit.
Figure 8. Structural analyses (slabs deflection, a), performed in Robot, and the reinforcement (foundation, b, and beam, c), detailed in Revit.
Preprints 79836 g008
Figure 10. Components of the 3D BIM model: architecture (a), structures (b), water supply net (c) and electrical installation (d).
Figure 10. Components of the 3D BIM model: architecture (a), structures (b), water supply net (c) and electrical installation (d).
Preprints 79836 g010
Figure 11. Collision detection (a), excavation work (b) and framework made in wood (c).
Figure 11. Collision detection (a), excavation work (b) and framework made in wood (c).
Preprints 79836 g011
Figure 12. Schedule of the construction activity linked to component sets in a time liner.
Figure 12. Schedule of the construction activity linked to component sets in a time liner.
Preprints 79836 g012
Figure 13. Sequence of the construction process elaborated using the Navisworks software.
Figure 13. Sequence of the construction process elaborated using the Navisworks software.
Preprints 79836 g013
Figure 14. Organization of a CDE file.
Figure 14. Organization of a CDE file.
Preprints 79836 g014
Figure 15. Generation of a BCF file and communication to the expert responsible.
Figure 15. Generation of a BCF file and communication to the expert responsible.
Preprints 79836 g015
Figure 9. Immersive route inside the BIM model (a) and the created QR code (b)
Figure 9. Immersive route inside the BIM model (a) and the created QR code (b)
Preprints 79836 g016
Disclaimer/Publisher’s Note: The statements, opinions and data contained in all publications are solely those of the individual author(s) and contributor(s) and not of MDPI and/or the editor(s). MDPI and/or the editor(s) disclaim responsibility for any injury to people or property resulting from any ideas, methods, instructions or products referred to in the content.
Copyright: This open access article is published under a Creative Commons CC BY 4.0 license, which permit the free download, distribution, and reuse, provided that the author and preprint are cited in any reuse.
Prerpints.org logo

Preprints.org is a free preprint server supported by MDPI in Basel, Switzerland.

Subscribe

Disclaimer

Terms of Use

Privacy Policy

Privacy Settings

© 2025 MDPI (Basel, Switzerland) unless otherwise stated