Submitted:
01 June 2023
Posted:
02 June 2023
You are already at the latest version
Abstract
Keywords:
1. Introduction
Research Significance
2. Theoretical Background
2.1. Surface Infiltration
2.1.1. Water Percolation
2.1.2. Capillarity
2.1.3. Condensation
2.1.4. Leaks
2.1.5. Drainage System Failures
2.2. Surface Waterproofing Techniques
2.2.1. Waterproofing with Asphalt Membrane
2.2.2. Waterproofing with Polymers
2.2.3. Waterproofing with Polymeric Mortar
2.2.4. Waterproofing with Special Paints
3. Materials and Methods
3.1. Selecting the State-Of-The-Art Bibliography
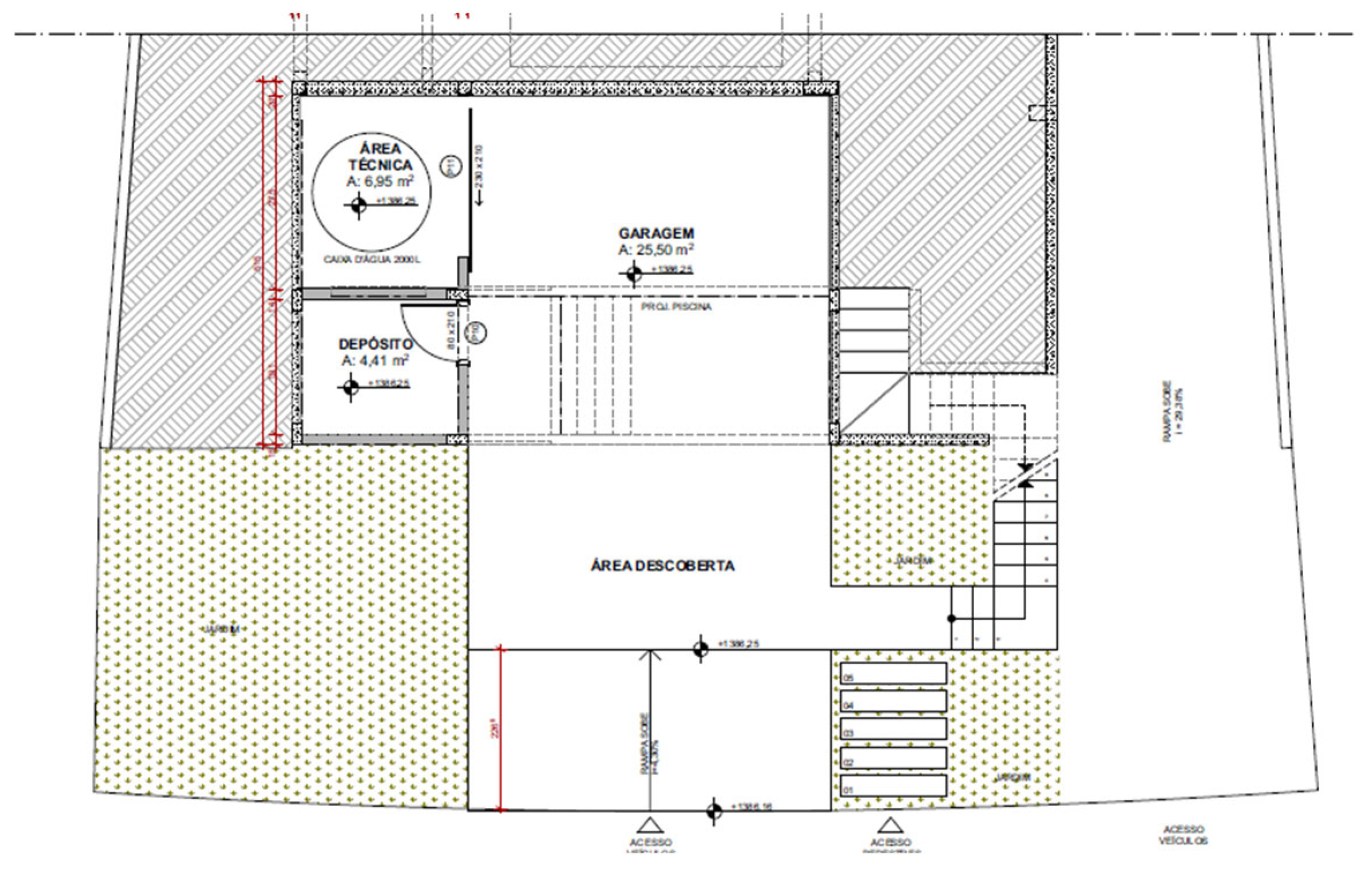
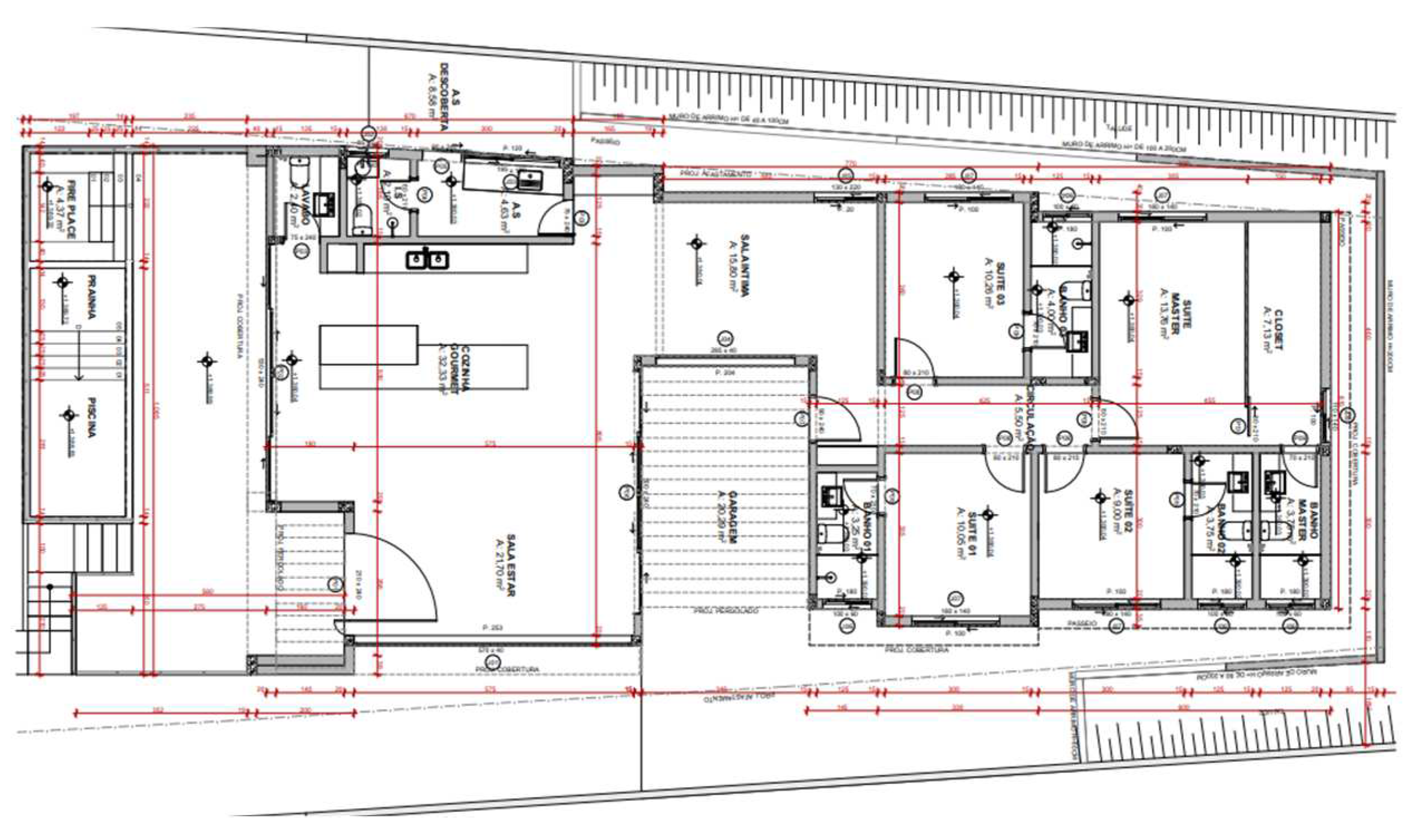
3.2. Case Study
4. Results and Discussions
4.1. The State-Of-The-Art
4.2. Case Study
4.2.1. Floors and External Areas
4.2.2. Slab and Water Tank
4.2.3. Bathrooms
4.2.4. Pool, Fireplace, and Deck
5. Conclusions
- (i)
- The main mechanisms of water infiltration into surfaces in construction are percolation, capillarity, condensation, leaks, and drainage system failures. These mechanisms can cause damage to structures, such as humidity, stains, mold, deterioration, and corrosion, compromising the integrity and durability of buildings.
- (ii)
- Surface waterproofing techniques are widely used in civil construction to avoid problems caused by water infiltration, such as corrosion, humidity, and detachment of coatings. Among the available techniques are the application of asphalt blankets, polymers, polymeric mortars, and special paints. Waterproofing with asphalt blankets is one of the most used due to its high efficiency and durability.
- (iii)
- State-of-the-art has shown, among several aspects, that (a) different sealing methods can significantly reduce the rate of air leakage in construction joints, depending on the sealing material used; (b) the correct execution of waterproofing, with appropriate materials and qualified professionals, can avoid future inconveniences and high maintenance costs; (c) the implementation of proper design, installation, inspection, and maintenance techniques can significantly reduce waterproofing failure rates and repair costs; (d) concrete admixtures can be used to improve the water tightness of construction without compromising the mechanical properties of the material; (e) the proper choice of waterproofing materials, along with the skill of labor in the application, is critical to ensure the proper performance of these materials in buildings.
- (iv)
- The case study described the methods and materials used to waterproof different areas of the residence. Specifically, it was shown that (a) for waterproofing the floors and external areas, a 150-micron canvas, thicker than the common canvas, was used, along with EPS sheets to avoid the capillarity phenomenon; (b) the slab and the water tank were waterproofed with the use of aluminized asphalt blanket due to its high waterproofing capacity; (c) in the bathrooms, a polymeric mortar was used as the waterproofing method due to its ease of application and low cost, with the subsequent laying of ceramic tiles; (d) the waterproofing of the pool, fireplace, and deck was done with the use of polyethylene asphalt blanket, due to its flexibility, resistance, and durability, and later these surfaces were coated with porcelain tiles or ceramic tiles. Thus, the importance of choosing the appropriate method for each environment was highlighted, aiming to prevent damage caused by water infiltration.
5.1. Future Research Directions
- (i)
- Investigate the importance of labor skills and training in adequately applying sealing materials and their relationship to the overall performance of building waterproofing.
- (ii)
- Conduct experimental studies to evaluate the performance of different admixtures that can be added to concrete to improve its waterproofing, considering mechanical properties, resistance to water penetration, and crack sealing ability.
- (iii)
- Investigate the environmental, economic, and performance impacts of different waterproofing options available on the market, considering factors such as global warming, consumption of energy resources, life cycle cost, and durability.
Author Contributions
Funding
Institutional Review Board Statement
Informed Consent Statement
Data Availability Statement
Acknowledgments
Conflicts of Interest
References
- Belous, D. A. C.; Souza, L. C. Estudo de caso de manifestação patológica do tipo fissuras e trincas com a impermeabilização como forma de tratamento na laje de uma escola, na região de Joinville/SC. Bachelor’s Thesis, Sociedade Educacional de Santa Catarina, Joinville, 2022.
- Yazigi, W. A. Técnica de edificar. Revisada e atualizada. 10.ed. São Paulo: Pini, SIDUSCON-SP, 2009, p. 517.
- Lopes. Como o bolor e a umidade em sua casa afetam seu corpo e podem prejudicar sua saúde. Redação Lopes, 2018. Available in: https://www.lopes.com.br/blog/na-minha-vida/estilo-de-vida/como-o-bolor-e-a-umidade-em-sua-casa-afetam-seu-corpo-e-podem-prejudicar-sua-saude. Accessed in: May 6, 2023.
- Pereira, F. S. Impermeabilização de lajes de cobertura com manta asfáltica. Revista Científica Semana Acadêmica, 2018, n. 000148.
- Apolinário, M. S. Danos causados por falhas na impermeabilização da infraestrutura de edificações térreas residenciais privativas unifamiliares com área até oitenta metros quadrados. Revista Especialize On Line, São Paulo, 2013, n. 4, p. 1-14.
- Costa, E. U.; Pinto, J. R.; Miranda, M. L. Procedimento visando a diminuição de manifestações patológicas no sistema de impermeabilização em lajes de cobertura expostas com mantas asfálticas. Bachelor’s Thesis, IDD Institute, São Paulo, 2012.
- Machado, K. M.; Alencar, E. A. B. Levantamento de patologías causadas por umidade nas edificações da cidade de Manaus – AM. Bachelor’s Thesis, Centro Universitário do Norte, Manaus, 2019.
- Rigui, G. V. Estudos dos sistemas de impermeabilização: patologias, prevenções e correções – Análise de casos. Master’s Thesis, Federal University of Santa Maria, Santa Maria, 2009.
- Queruz, F. Contribuição para identificação dos principais agentes e mecanismos de degradação em edificações em Vila Belga. Master’s Thesis, Federal University of Santa Maria, Santa Maria, 2007.
- Campos, L. S.; Soares, T. A. Processo de escolha de um sistema de impermeabilização para a laje de um estacionamento. Bachelor’s Thesis, Technological Institute of Caratinga, Caratinga, 2015.
- Thomaz, E. Trincas em Edifícios: Causas, Prevenção e Recuperação. In: Trincas em edifícios: causas, prevenção e recuperação. 2. ed. São Paulo: Oficina de Textos, 2020. p. 1-34.
- Grachev, A. Waterproofing methods comparison in Russia and Finland. Bachelor’s Thesis, Hämeenlinna University Centre, Keinusaari, 2021.
- Santana, B. V.; Aleixo, I. V. Avaliação da absorção por capilaridade de argamassas para revestimento com diferentes aditivos impermeabilizantes. Relatório final de pesquisa de Iniciação Científica, Faculdade de Tecnologia e Ciências Sociais Aplicadas, Brasília, 2017.
- Peixoto, V. F.; Torres, M. I.; Guimarães, A. S. Humidade Ascensional. 1. ed. Porto: FEUP, 2008.
- Siqueira, V. Impermeabilização em obras de construção civil. Bachelor’s Thesis, University of Southern Santa Catarina, Palhoça, 2018.
- Martins, F. S. Estudo das manifestações patológicas pós-ocupação relacionadas à impermeabilização da cobertura do Centro Pedagógico Paulo Freire – Cidade Universitária Dom Delgado – UFMA. Bachelor’s Thesis, Federal University of Maranhão, São Luís, 2018.
- Salomão, M. F. Estudo da umidade ascendente em painéis de alvenaria de blocos cerâmicos. Master’s Thesis, Federal University of Uberlândia, Uberlândia, 2012.
- Silva, F. L.; Oliveira, M. P. S. L. Manifestações patológicas causadas pela ausência ou falha de impermeabilização. Revista Científica Multidisciplinar Núcleo do Conhecimento, 2018, Year 03, Ed. 11, Vol. 01, pp. 76-95.
- Scheidegger, G. M. Impermeabilização de edificações: mantas asfálticas e argamassas poliméricas. Revista Científica Multidisciplinar Núcleo do Conhecimento, 2019, v. 4, p. 126-151.
- Aecweb. Como impermeabilizar com mantas asfálticas? Assista ao passo a passo. 2019. Available in: https://www.aecweb.com.br/revista/materias/como-impermeabilizar-com-mantas-asfalticas-assista-ao-passo-a-passo/18482. Accessed in: April 27, 2023.
- Associação Brasileira De Normas Técnicas. NBR 9574: Execução de impermeabilização. ABNT, Rio de Janeiro, 2010a.
- Associação Brasileira De Normas Técnicas. NBR 9575: Impermeabilização – Seleção e projeto. ABNT, Rio de Janeiro, 2010b.
- Associação Brasileira De Normas Técnicas. NBR 9952: Manta asfáltica para impermeabilização. ABNT, Rio de Janeiro, 2014.
- Associação Brasileira De Normas Técnicas. NBR 9685 – Mantas asfálticas com armadura para impermeabilização – Especificação. ABNT, Rio de Janeiro, 2011.
- Aecweb. Conheça os principais tipos de selantes para impermeabilização. 2020. Available in: https://www.aecweb.com.br/revista/materias/conheca-os-principais-tipos-de-selantes-para-impermeabilizacao/20264. Accessed in: 28 April, 2023.
- Fibersals. Tudo sobre impermeabilização com poliuretano. 2021. Available in: https://fibersals.com.br/blog/impermeabilizacao-com-poliuretano/. Accessed in: 26 April, 2023.
- Lee, H. L. The handbook of dielectric analysis and cure monitoring. Boston, MA, Lambient Technology LLC, v. 156, 2014.
- Fibersals. Tudo sobre impermeabilização com argamassa polimérica. 2020a. Available in: https://fibersals.com.br/blog/impermeabilizacao-com-argamassa-polimerica/. Accessed in: 26 April, 2023.
- Moreira, A. A. A.; Vermelho, L. C.; Zani, M. C. Estudo da Argamassa Polimérica de Assentamento de Blocos e Tijolos Segundo Aspectos Técnicos, Econômicos, Mercadológicos e de Clima Organizacional. Espacios, 2017, v. 38, n. 53, p. 14-29.
- Fibersals. Impermeabilização com resina epóxi. 2020b. Available in: https://fibersals.com.br/blog/impermeabilizacao-com-resina-epoxi/. Accessed in: 26 April, 2023.
- Superfície, E. Tinta Epóxi, o que é e qual sua aplicação? 2020. Available in: https://engenhariadesuperficie.com.br/piso-epoxi/tinta-epoxi-o-que-e-e-qual-sua-aplicacao/. Accessed in: 28 April, 2023.
- Ensslin, L.; Ensslin, S. R.; Lacerda, R. D. O.; Tasca, J. E. ProKnow-C, knowledge development process-constructivist. Processo técnico com patente de registro pendente junto ao INPI, 2010. Brasil, v. 10, n. 4, p. 2015.
- Resende, H. F.; Reis, E. D.; Fernandes, F. M.; Rodrigues, L. A.; Ângelo, F. A. Uso de resíduos de construção e demolição como agregado reciclado no concreto: Uma breve revisão de literatura. Revista Principia-Divulgação Científica e Tecnológica do IFPB, 2022, Early View.
- Reis, E. D.; Resende, H. F.; Ludvig, P.; De Azevedo, R. C.; Poggiali, F. S. J.; Bezerra. Bonding of Steel Bars in Concrete with the Addition of Carbon Nanotubes: A Systematic Review of the Literature. Buildings, 2022, v. 12, n. 10, p. 1626. [CrossRef]
- Gomes, H. C.; Reis, E. D.; Azevedo, R. C. D.; Rodrigues, C. D. S.; Poggiali, F. S. J. Carbonation of Aggregates from Construction and Demolition Waste Applied to Concrete: A Review. Buildings, 2023, v. 13, n. 4, p. 1097. [CrossRef]
- Reis, E. D.; Borges, L. A.; Camargos, J. S. F.; Gatuingt, F.; Poggiali, F. S. J.; Bezerra, A. C. S. A systematic review on the engineering properties of concrete with carbon nanotubes. Journal of the Brazilian Society of Mechanical Sciences and Engineering, 2023, v. 45, n. 4, p. 205. [CrossRef]
- Alev, Ü.; Antsov, P.; Kalamees, T. Air leakage of concrete floor and foundation junctions. Energy Procedia, 2015, v. 78, p. 2046-2051. [CrossRef]
- Figueredo, V. S.; Rinaldi, V. S.; Abi-Ackel, E. Impermeabilização com manta asfáltica de uma laje plana de cobertura. Construindo, 2017, v. 9, n. 3, p. 62-72.
- Pinto, J. B.; Aguiar, L. E. A. Sistema de impermeabilização com manta asfáltica e manta líquida em lajes de coberturas. Projectus, 2017, v. 1, n. 3, p. 141-151.
- Sriravindrarajah, R.; Tran, E. Waterproofing practices in Australia for building construction. In: 4th International Conference on Rehabilitation and Maintenance in Civil Engineering. EDP Sciences, 2018.
- Coppola, L.; Coffetti, D.; Crotti, E. Innovative carboxylic acid waterproofing admixture for self-sealing watertight concretes. Construction and Building Materials, 2018, v. 171, p. 817-824. [CrossRef]
- Gonçalves, M.; Silvestre, J. D.; de Brito, J.; Gomes, R. Environmental and economic comparison of the life cycle of waterproofing solutions for flat roofs. Journal of Building Engineering, 2019, v. 24, p. 100710. [CrossRef]
- Ribeiro, A. C. R. G.; Azevedo, F. G.; Ferreira, F. G. D.; De Azevedo Filho, R. D. Impermeabilização a base de polímero acrílico: estudo de caso no tratamento de infiltração da laje de cobertura. Revista Eletrônica da Estácio Recife, 2019, v. 5, n. 2.
- Ksit, B; Plich, B. Liquid plastic films as a solution in terms of tightness problems and roofs aesthetics improvement–review. Budownictwo i Architektura, 2019, v. 18, n. 4.
- Pinto, D. E. B.; Firmino, B. C. C.; Dos Santos, M. C.; Carvalho, W. B. D. R. C.; De Oliveira, L. C. S.; Farias, R. E. Infiltration: The disease of the structure. ITEGAM-JETIA, 2020, v. 6, n. 24, p. 53-57. [CrossRef]
- Pettersson, K.; Maggiolo, D.; Sasic, S.; Johansson, P.; Sasic-Kalagasidis, A. On the impact of porous media microstructure on rainfall infiltration of thin homogeneous green roof growth substrates. Journal of Hydrology, 2020, v. 582, p. 124286. [CrossRef]
- Van Linden, S.; Van Den Bossche, N. Airtightness of sealed building joints: Comparison of performance before and after artificial ageing. Building and Environment, 2020, v. 180, p. 107010. [CrossRef]
- Neves, J.; Garcia, D.; Santana, V.; Lopes, C.; Mendes, J. Desenvolvimento de um guia de reparos para diferentes tipos de patologia relativos à umidade nas edificações. In: XVI Congreso Latinoamericano de Patología de la Construcción, 2021.
- Silva, F. G. S.; Coelho, V. A. Pathological manifestations due to infiltration in garage floors–Case study in Salvador-BA. In: XVI International Conference on Pathology and Constructions Rehabilitation, 2021.
- Reis, E. D.; Leite, T. A.; Magalhães, J. C.; Barbosa, L. D. A.; Leandro, W. S.; Da Costa, A. C.; ...; Fideliz, F. V. Pathologies caused by infiltration in a long-stay institution for the elderly: A case study. RECIMA21 - Revista Científica Multidisciplinar, 2021, v. 2, n. 7, p. e27532-e27532.
- Heinlein, U; Thienel, K; Freimann, T. Pre-applied bonded waterproofing membranes: A review of the history and state-of-the-art in Europe and North America. Construction and Building Materials, 2021, v. 296, p. 123751. [CrossRef]
- Maj, M.; Ubysz, A. The reasons for the loss of polyurea coatings adhesion to the concrete substrate in chemically aggressive water tanks. Engineering Failure Analysis, 2022, v. 142, p. 106774. [CrossRef]












| Stage | Description | Details | Articles |
|---|---|---|---|
| 1 | Preliminary research | · Definition of databases: Science Direct, Scopus, and Google Acadêmico. · Time frame: 2015 to 2022. · Keywords: (1) Waterproofing, sealing, or impermeabilization; (2) Blanket, coating, or covering; (3) Slab or floor; (4) Roof; (5) Infiltration or seepage; (6) Pathology or condition. · Keyword combinations: (a) 1+2+3; (b) 1+2+4; (c)1+2+5; (d) 1+4+5; (e) 3+5+6; (f) 4+5+6; (g) 2+3+5. · Database filters: title, abstract and keywords. |
447 |
| 2 | Extraction of articles from the databases | · Type of work: full papers published in journals or conferences | 250 |
| 4 | Elimination of duplicates | · Exclusion of articles published in more than one database | 232 |
| 5 | Alignment by title | · Articles with a title aligned with the research topic | 45 |
| 6 | Alignment by abstract | · Articles with the abstract fully aligned with the research topic | 26 |
| 7 | Full-text retrieval | · Manuscripts made available in full by the databases | 26 |
| 8 | Full alignment | · Articles fully aligned with the research theme | 17 |
| Reference | Title | Journal/Conference | Year |
|---|---|---|---|
| Alev et al. [37] | Air leakage of concrete floor and foundation junctions | Energy Procedia | 2015 |
| Figueiredo et al. [38] | Impermeabilização com manta asfáltica de uma laje plana de cobertura | Construindo | 2017 |
| Pinto and Aguiar [39] | Sistema de impermeabilização com manta asfáltica e manta líquida em lajes de coberturas | Projectus | 2017 |
| Sriravindrarajah and Tran [40] | Waterproofing practices in Australia for building construction | 4th International Conference on Rehabilitation and Maintenance in Civil Engineering | 2018 |
| Coppola et al. [41] | Innovative carboxylic acid waterproofing admixture for self-sealing watertight concretes | Construction and Building Materials | 2018 |
| Gonçalves et al. [42] | Environmental and economic comparison of the life cycle of waterproofing solutions for flat roofs | Journal of Building Engineering | 2019 |
| Ribeiro et al. [43] | Impermeabilização a base de polímero acrílico: estudo de caso no tratamento de infiltração da laje de cobertura | Revista Eletrônica da Estácio Recife | 2019 |
| Ksit and Plich [44] | Liquid plastic films as a solution in terms of tightness problems and roofs aesthetics improvement–review | Budownictwo i Architektura | 2019 |
| Scheidegger [19] | Impermeabilização de edificações: mantas asfálticas e argamassas poliméricas | Revista Científica Multidisciplinar Núcleo do Conhecimento | 2019 |
| Pinto et al. [45] | Infiltration: The disease of the structure | ITEGAM-JETIA | 2020 |
| Pettersson et al. [46] | On the impact of porous media microstructure on rainfall infiltration of thin homogeneous green roof growth substrates | Journal of Hydrology | 2020 |
| Van Linden and Van Den Bossche [47] | Airtightness of sealed building joints: Comparison of performance before and after artificial ageing | Building and Environment | 2020 |
| Neves et al. [48] | Desenvolvimento de um guia de reparos para diferentes tipos de patologia relativos à umidade nas edificações | XVI Congreso Latinoamericano de Patología de la Construcción | 2021 |
| Silva and Coelho [49] | Pathological manifestations due to infiltration in garage floors–Case study in Salvador-BA | XVI International Conference on Pathology and Constructions Rehabilitation | 2021 |
| Reis et al. [50] | Pathologies caused by infiltration in a long-stay institution for the elderly: A case study | RECIMA21-Revista Científica Multidisciplinar | 2021 |
| Heinlein et al. [51] | Pre-applied bonded waterproofing membranes: A review of the history and state-of-the-art in Europe and North America | Construction and Building Materials | 2021 |
| Maj and Ubysz [52] | The reasons for the loss of polyurea coatings adhesion to the concrete substrate in chemically aggressive water tanks | Engineering Failure Analysis | 2022 |
Disclaimer/Publisher’s Note: The statements, opinions and data contained in all publications are solely those of the individual author(s) and contributor(s) and not of MDPI and/or the editor(s). MDPI and/or the editor(s) disclaim responsibility for any injury to people or property resulting from any ideas, methods, instructions or products referred to in the content. |
© 2023 by the authors. Licensee MDPI, Basel, Switzerland. This article is an open access article distributed under the terms and conditions of the Creative Commons Attribution (CC BY) license (http://creativecommons.org/licenses/by/4.0/).
